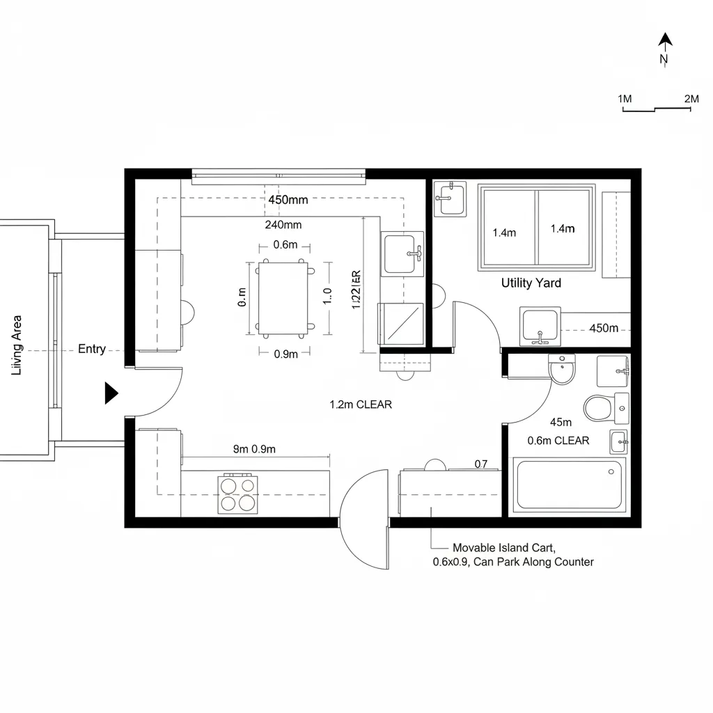
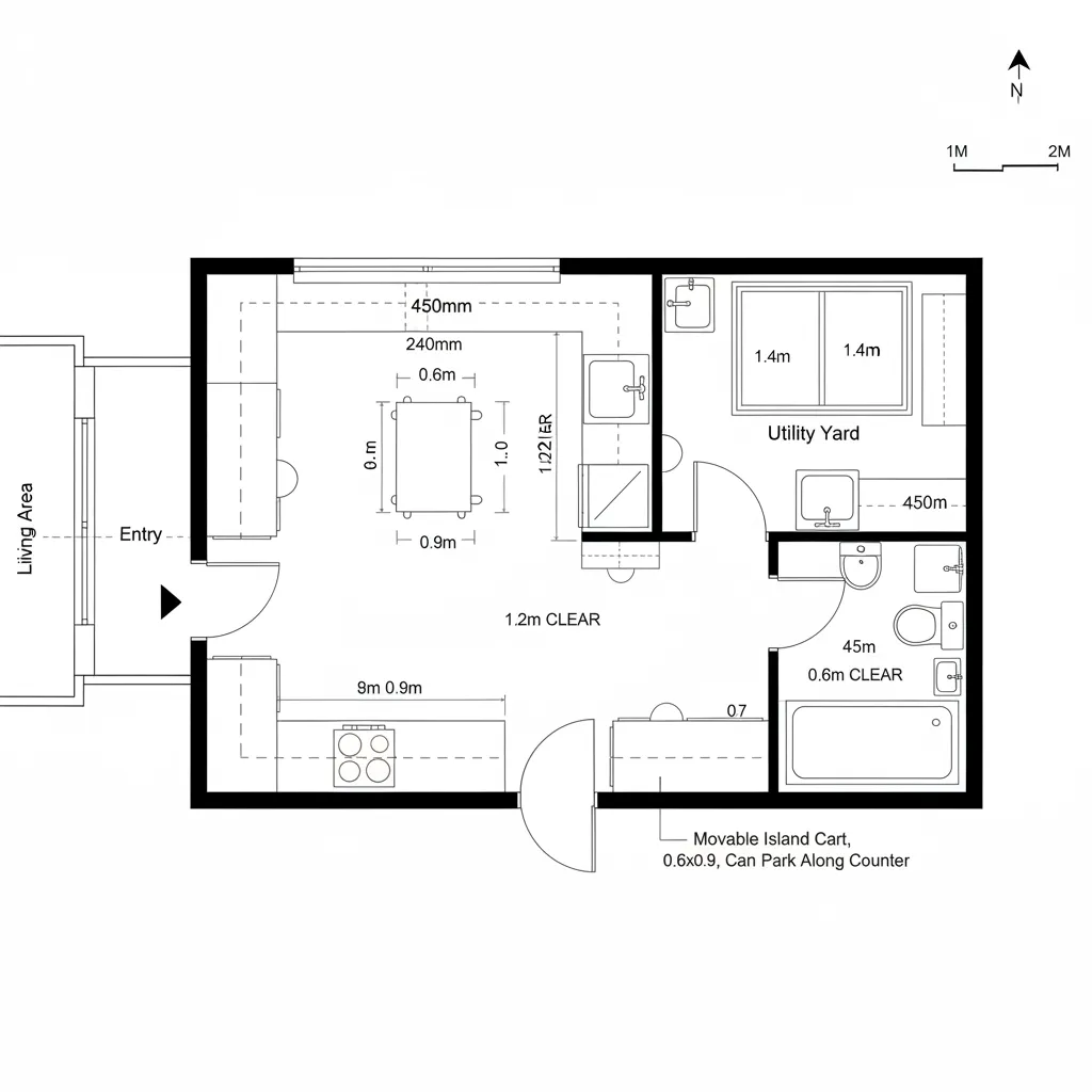
3-Room BTO, Written Like a Future Interface: A compact Singapore flat tuned for tomorrow’s rituals and today’s constraintsEchelon Field ArchitectDec 10, 2025Table of ContentsHybrid Axis: Living Core + Convertible RoomQuiet Spine: Bedroom Pair with Acoustic ThresholdsService Triangle: Kitchen, Bath, Utility AlignedFinal TakeawayTable of ContentsHybrid Axis Living Core + Convertible RoomQuiet Spine Bedroom Pair with Acoustic ThresholdsService Triangle Kitchen, Bath, Utility AlignedFinal TakeawayFree floor plannerEasily turn your PDF floor plans into 3D with AI-generated home layouts.Convert Now – Free & InstantFuture living leans on clarity, and current homes break under clutter, commute fatigue, and noise. I design in that pressure zone where tomorrow’s rituals meet today’s limitations—because the 3 room bto floor plan is already a prototype of a leaner life. Industry data keeps echoing it: AIA’s Home Design Trends Survey shows continued demand for flexible, multi-use spaces—proof that adaptability isn’t a luxury, it’s survival. The future has been inching closer, and I’ve been seeing its outline for years—mapped in quiet corridors and calibrated nodes like a spatial reasoning toolkit.Hybrid Axis: Living Core + Convertible RoomDesign Logic: A central living core with a sliding partition gives the second room dual roles—daytime studio, night guest suite—because future cycles are hybrid and bandwidth-hungry.Flow: Entry → storage wall → living core → pocketed partition → flexible room → balcony; a program sequence that minimizes branch conflicts.Sightlines: Long diagonal from entry to window creates a clear UI; partial reveals keep privacy while signaling depth and hierarchy.Storage: Full-height cache along entry and a low media bench; overhead modules in the flexible room to buffer seasonal data (linens, gear).Furniture Fit: 700–750 mm dining, 1.8 m sofa, fold-down desk; all scaled to the API limits of narrow spans and door clearances.Verdict: This layout anticipates mixed-use living; in five years, the sliding partition reads like a toggle between focus and hospitality.save pinQuiet Spine: Bedroom Pair with Acoustic ThresholdsDesign Logic: Two compact bedrooms grouped on a quiet spine reduce cognitive noise; future families need calm nodes for sleep, study, and care work.Flow: Living → buffered corridor → shared bath → master → secondary; a clean pipeline that separates public and private threads.Sightlines: Sight stops at the corridor turn; glazed transoms borrow light without leaking context, like dimmed notifications.Storage: Built-in wardrobes as vertical caches, under-bed drawers as cold storage; predictable slots prevent fragmentation.Furniture Fit: Queen bed 1.6 m in master, 1.2 m in secondary; narrow desks (450–500 mm) align to wall outlets and cable paths.Verdict: The spine holds routine steady; five years on, it sustains remote work and caregiving without bandwidth drops.save pinService Triangle: Kitchen, Bath, Utility AlignedDesign Logic: Align wet zones to a compact service triangle; the future rewards maintenance efficiency and adaptable tasks like micro-meal prep and laundry cycles.Flow: Entry → galley kitchen → utility yard → bath; short, repeatable loops that reduce time costs and error rates.Sightlines: Controlled opacity at the kitchen—peripheral views to the living keep the UI responsive without visual noise.Storage: Deep base cabinets (600 mm), vertical pantry (450 mm), stackable utility shelves; hierarchy of hot vs. cold caches for daily vs. weekly use.Furniture Fit: 900 mm counter height, 1.2 m aisle in galley; movable island cart as a micro-API for prep, serve, and store.Verdict: Service aligned equals labor light; in five years, this triangle adapts to compact appliances and low-water routines with grace.save pinFinal TakeawayThe 3 room bto floor plan is not small—it’s intentional, a lean interface for evolving rituals. With flexible rooms, quiet spines, and aligned service nodes, compact living becomes a system that keeps pace with future work and family patterns. Long-tail needs—like a convertible home office and resilient storage—are embedded, not appended. In my experience, the smartest homes of the future won’t be larger—only more intentional.Convert Now – Free & InstantPlease check with customer service before testing new feature.Free floor plannerEasily turn your PDF floor plans into 3D with AI-generated home layouts.Convert Now – Free & Instant