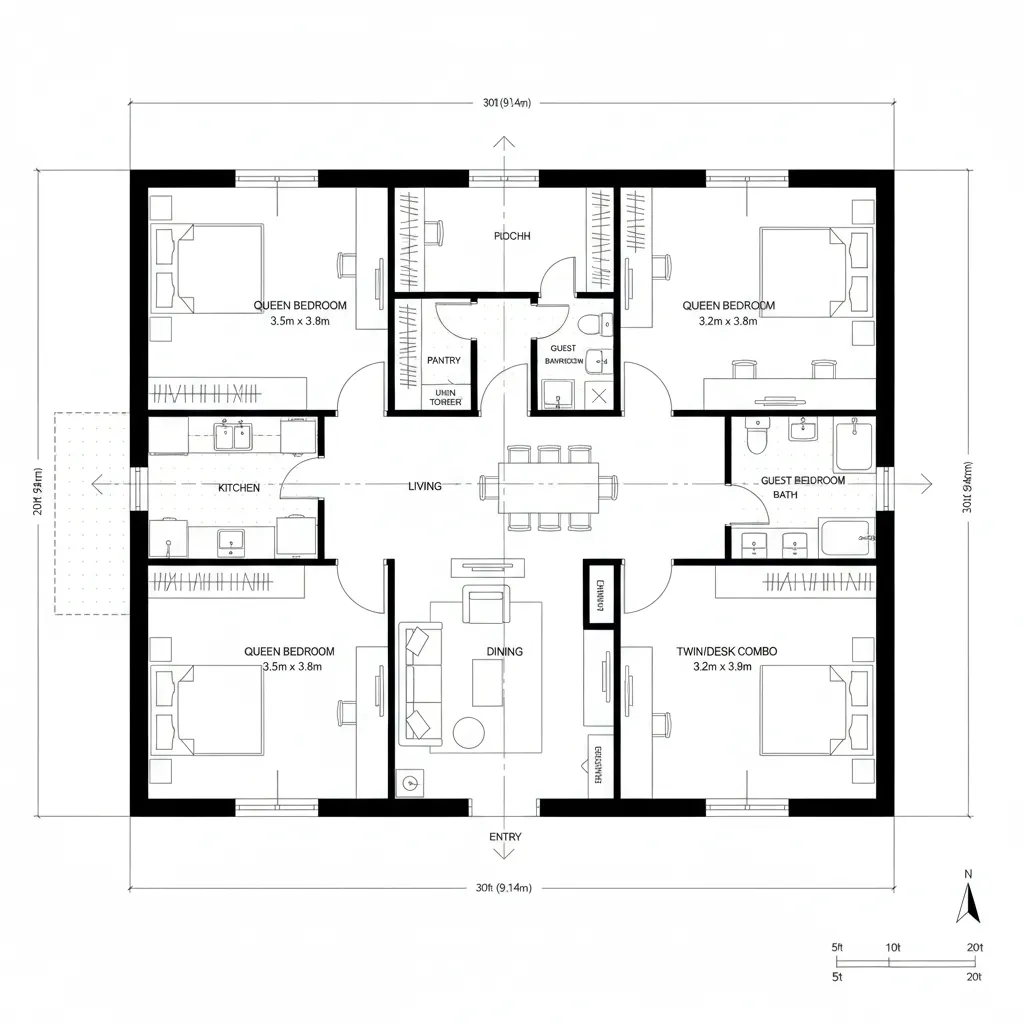
30x40, Four Rooms, One Future: A compact 4-bedroom interface for emergent family rhythmsField/Interface StudioMar 26, 2026Table of ContentsNorth-South Spine with Split QuadsCentral Commons with Offset BedroomsDual-Primary with Micro Suite PairFinal TakeawayFree floor plannerEasily turn your PDF floor plans into 3D with AI-generated home layouts.Convert Now – Free & InstantThe future presses closer while current homes struggle with noise, storage drift, and fragmented routines; I read the plan like code. AIA and NAHB surveys keep showing families want flexible bedrooms that pivot between sleep, work, and care. Here, the main keyword—30 x 40 house plans 4 bedrooms only floor plans—arrives as a compact compiler of lifestyle. And I keep a quiet tool near my desk: spatial reasoning toolkit, because even a modest rectangle must forecast tomorrow.North-South Spine with Split QuadsDesign Logic:Primary circulation runs north–south, rooms pinwheel at four nodes, future-proofing privacy and multi-use zones for remote work and caregiving.Flow:Front entry → shared core → bedrooms at four corners; like a clean instruction sequence, no backtracking, latency kept low.Sightlines:From entry, a soft axis to living/dining; corner rooms hold peripheral vision, UI layers fade to private edges.Storage:Perimeter closets act as cache, each node with 24–30 inches deep modules; linen towers anchor the spine for fast retrieval.Furniture Fit:Queen beds in two rooms, twin/desk combos in two; 36-inch clearances as API limits, 60-inch turning at key junctions.Verdict:This grid respects bandwidth: shared center, quiet edges; over five years, it adapts from kids’ rooms to studios without code rewrite.save pinOpen in 3D Planner Processing... Central Commons with Offset BedroomsDesign Logic:A luminous middle commons handles dining, lounge, and micro-office; bedrooms stagger to break sound waves and avoid conflict domains.Flow:Entry buffers into the commons, then short hops to each room; kitchen aligns on a short bus to utilities and outdoor exit.Sightlines:Layered like UI panels: near-field kitchen, mid-field table, far-field window; bedrooms off-axis to keep the signal private.Storage:Island base drawers, pantry wall, and bed-platform caches; 30 x 40 demands disciplined byte-sized compartments.Furniture Fit:Sectional scaled to 96 inches, table 72 x 36, beds with 24-inch nightstands; door swings and desk depths follow strict protocol.Verdict:The central node becomes a social server; in five years it tolerates hybrid work, homework, and midnight tea without packet loss.save pinOpen in 3D Planner Processing... Dual-Primary with Micro Suite PairDesign Logic:Two larger rooms bookend the plan as primaries, two micro suites float between, enabling multigenerational or rental flexibility.Flow:Entry → living → split corridor; primaries at ends, micros midstream; routing allows concurrent tasks with minimal collision.Sightlines:Primaries maintain long views to garden or street; micros guard short, quiet sightlines, reducing cognitive noise.Storage:Wall-bed options for micros, 8–10 linear feet of reach-in per primary; shared utility closet functions as communal cache.Furniture Fit:King-capable primary at 12 x 13, queens elsewhere; desks at 48 inches, wardrobes prefabricated to keep tolerance tight.Verdict:It’s a dual-kernel OS: parents and elders, or owners and tenants, co-run processes; stability persists as life updates roll in.save pinOpen in 3D Planner Processing... Final TakeawayIn a 30 x 40 footprint, four bedrooms aren’t excess—they’re modular endpoints in a family operating system. These four-bedroom floor plans, along with variants like compact home layouts and multigenerational configurations, turn square footage into time discipline and sensory calm. The long-tail thinking—small house with four bedrooms, flexible sleeping/work rooms—keeps the home future-resilient. In my experience, the smartest homes of the future won’t be larger—only more intentional.Convert Now – Free & InstantPlease check with customer service before testing new feature.Free floor plannerEasily turn your PDF floor plans into 3D with AI-generated home layouts.Convert Now – Free & Instant