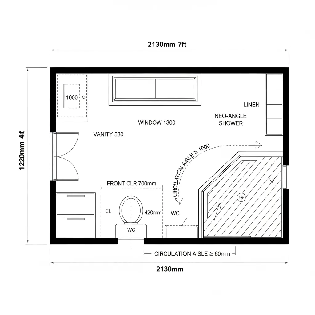
4x7 Bathroom Plan, Rendered for a Near-Future Routine: A micro-footprint that behaves like a well-coded interface for daily lifeMiles North—Residential FuturistJan 21, 2026Table of ContentsOption A Linear Wet Wall, Sliding EntryOption B Pocket Core with Corner ShowerOption C Wet Room Envelope, Curtain DivisionOption D Split Vanity + Tub-Shower Hybrid## Final TakeawayFree floor plannerEasily turn your PDF floor plans into 3D with AI-generated home layouts.Convert Now – Free & InstantThe future presses closer every morning we reach for light and clarity, while small homes keep tightening their tolerances. Industry surveys show primary bathrooms have shrunk or split functions in many remodels (NAHB data tracks this drift), and a 4 x 7 bathroom ideas in floor plan with 3d becomes a precise compiler for habits. I design like tomorrow’s rituals are already here, and this compact room is the interface.spatial reasoning toolkitOption A: Linear Wet Wall, Sliding EntryDesign Logic:All plumbing compresses to one wet wall; the rest stays dry, future-proofing maintenance and energy loops.Flow:Entry slides open; sink → toilet → shower is a left-to-right command line, no cross-traffic.Sightlines:From door, mirror captures daylight; glass shower reads as depth, expanding the UI without clutter.Storage:Recessed niche as cache beside vanity; overhead rail shelf keeps infrequently used items out of RAM.Furniture Fit:24" vanity, 30" shower, compact elongated toilet—APIs tuned to elbow room and device charging.Verdict:This sequence optimizes serviceability and calm; in five years, upgrades plug in along the wet wall like modules.save pinOpen in 3D Planner Processing... Option B: Pocket Core with Corner ShowerDesign Logic:Corner shower turns the grid diagonally, freeing mid-floor bandwidth for dressing and circulation.Flow:Door → vanity (quick tasks) → pivot to toilet → arc into shower; movements feel like a light loop, not a heavy stack.Sightlines:Diagonal glass pulls the eye to the far corner; mirror aligns with doorway to double perceived length.Storage:Toe-kick drawers and a shallow medicine cabinet act as fast-access cache; linen niche sits in the cool zone.Furniture Fit:Neo-angle shower at ~32", 22–24" vanity; clearances trimmed but never pinched, respecting the interface.Verdict:The angled node converts tight dimensions into a generous visual algorithm, resilient to changing routines.save pinOpen in 3D Planner Processing... Option C: Wet Room Envelope, Curtain DivisionDesign Logic:Entire 4x7 coded as a wet room; micro-zones separated by a curtain act like soft partitions for evolving needs.Flow:Threshold → dry pad at vanity → pass curtain → open shower bay; no doors, just breathable steps.Sightlines:Continuous tile reads as one canvas; low fixtures keep horizon clean, UI hierarchy driven by light and texture.Storage:Wall recesses become persistent cache; ceiling track baskets are cold storage for seasonal gear.Furniture Fit:Wall-hung toilet and vanity float, reducing API friction and improving cleanability and wheelchair pivot radius.Verdict:Adaptive, easy to sanitize, and future-proof for accessibility—the script remains simple as life complexity grows.save pinOpen in 3D Planner Processing... Option D: Split Vanity + Tub-Shower HybridDesign Logic:Two micro-vanity zones split tasks; tub-shower hybrid keeps bathing options in one container without bloating code.Flow:Entry → quick wash at narrow sink → toilet checkpoint → slide into tub-shower for long routines.Sightlines:Low tub lip sets a stable horizon; mirrored medicine doors widen the channel while hiding noise.Storage:Over-tub ledge and vertical pull-outs act like layered cache: hot data near hands, cold data above eye level.Furniture Fit:54–60" tub with curved rod, 18" auxiliary vanity; clearances choreographed to avoid collision. Verdict:Families gain flexibility without spatial bloat; the interface scales with kids, guests, and quiet recovery days.save pinOpen in 3D Planner Processing... ## Final TakeawayA 4 x 7 bathroom floor plan, rendered in nuanced 3D, is less a room than a protocol for daily clarity. Variants like compact wet rooms, corner showers, and hybrid tubs prove that precision, not size, carries the future. In my experience, the smartest micro-baths feel like well-written code—minimal, resilient, and quietly generous.Convert Now – Free & InstantPlease check with customer service before testing new feature.Free floor plannerEasily turn your PDF floor plans into 3D with AI-generated home layouts.Convert Now – Free & Instant