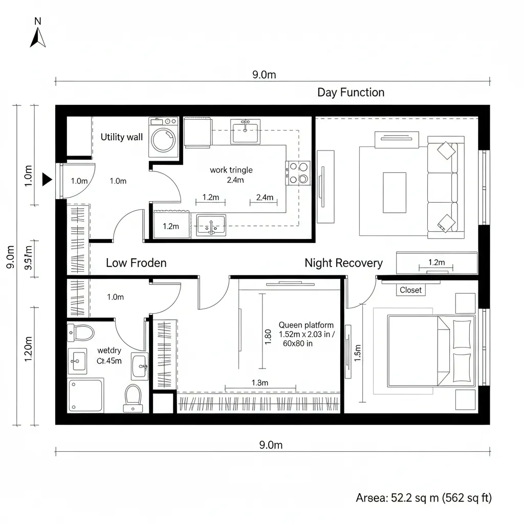
560 sq ft as an interface: A compact footprint scripted for the next five years of livingNorth Coast Speculative PlannerJan 21, 2026Table of ContentsStudio Loop with Split AxesMicro One-Bed HybridL-Shape Social CoreFinal TakeawayFree floor plannerEasily turn your PDF floor plans into 3D with AI-generated home layouts.Convert Now – Free & InstantFuture lifestyles are compressing bandwidth while our current homes still lag on adaptability—yet the signal is clear. spatial reasoning toolkit As AIA and NAHB data keep showing, smaller units with smarter layouts lead absorption, and a 560 sq ft floor plan is already behaving like code for efficiency. The future is pressing in, and I’m reading the blueprint in real time.Studio Loop with Split AxesDesign Logic: The plan divides the rectangle into two parallel tracks—day function and night recovery—so tomorrow’s hybrid routines don’t collide.Flow: Entry → utility wall → kitchen node → living bay → sleeping alcove; a loop that feels like a clean instruction sequence.Sightlines: From door to window, a long datum line keeps UI clarity—low partitions give layered depth without noise.Storage: A perimeter cache: full-height millwork, toe-kick drawers, and over-head rails, tuned for seasonal surges.Furniture Fit: A 72" sofa, 30" dining round, queen platform at 60" x 80"—API limits that prevent packet loss in movement.Verdict: This layout scales gracefully; over five years it absorbs remote work, guests, and quiet nights without fragmenting the signal.save pinOpen in 3D Planner Processing... Micro One-Bed HybridDesign Logic: A sliding wall toggles the bedroom from private node to extended living, matching the future’s elastic schedules.Flow: Entry buffer → galley kitchen → flex living → pocket bedroom → bath; a binary switch between open and enclosed states.Sightlines: Layered apertures frame window light across zones, maintaining hierarchy like a well-ordered dashboard.Storage: Deep hallway closet + bed base drawers + kitchen tall pantry—cache designed for high-frequency access first.Furniture Fit: 24" counter depth appliances, a 48" media console, nesting tables—precision keeps throughput high.Verdict: It feels small yet sovereign; the transformable partition future-proofs intimacy and productivity without drama.save pinOpen in 3D Planner Processing... L-Shape Social CoreDesign Logic: The living-kitchen forms an L that routes daily operations around a bright corner, keeping energy where people gather.Flow: Entry drop-zone → short hall → L-kitchen → corner lounge → linear sleep zone → bath; a circuit with no dead ends.Sightlines: Cross-corner views set a primary axis; secondary layers reveal storage and work surfaces like nested menus.Storage: Corner pantry + window bench drawers + vertical broom niche—cache tiers map to usage frequency.Furniture Fit: A 30" x 60" dining console, compact sectional at 84", wall-mounted desk—scaled to prevent collisions in tight loops.Verdict: This plan privileges shared bandwidth; over time it hosts meals, screens, and quiet mornings with coherent rhythm.save pinOpen in 3D Planner Processing... Final TakeawayThe 560 sq ft floor plan isn’t a constraint; it’s a precise interface for emerging routines, from remote work to micro-hosting. Variants like compact studio layouts and micro one-bed units prove that intention outruns square footage, especially with transformable partitions and perimeter storage. Long-tail needs—like home office nooks and wellness corners—slot into the sequence without breaking flow. In my experience, the smartest homes of the future won’t be larger—only more intentional.Convert Now – Free & InstantPlease check with customer service before testing new feature.Free floor plannerEasily turn your PDF floor plans into 3D with AI-generated home layouts.Convert Now – Free & Instant