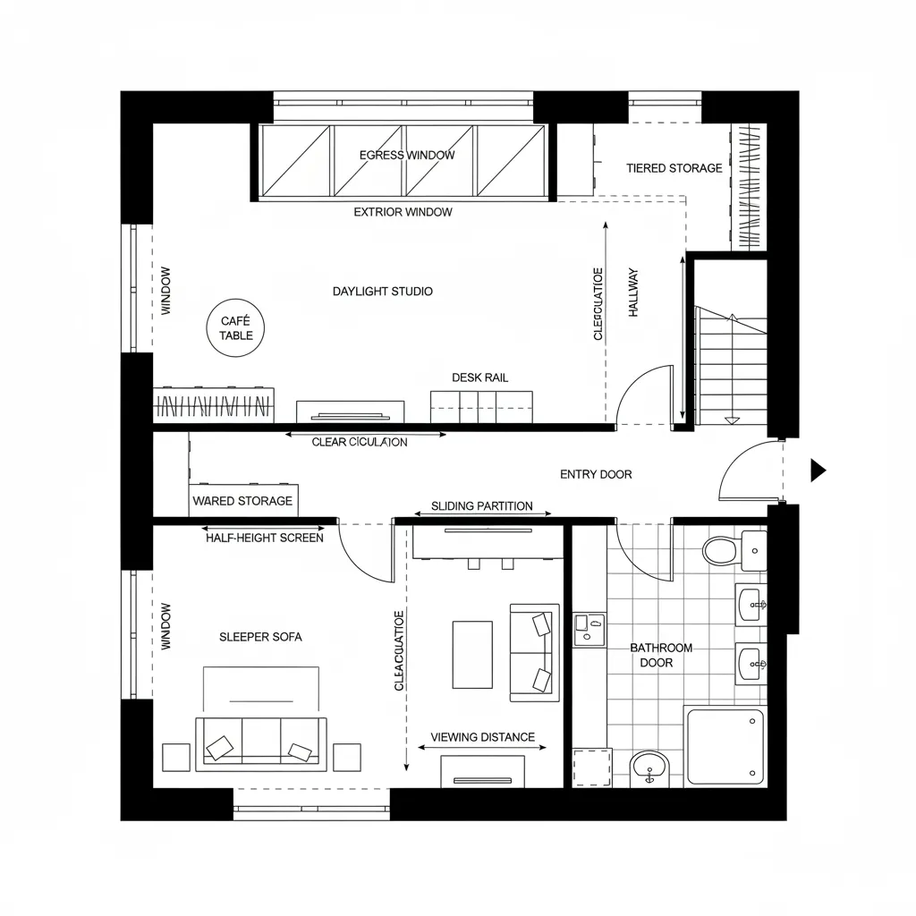
600 sq ft Basement Plans, Compiled for Future Living: A designer’s lens on 600-square-foot lower levels as living interfacesKade MercerMar 26, 2026Table of ContentsHybrid Studio + Guest NookMedia Den + Micro GymWorkshop + Laundry SpineFinal TakeawayFree floor plannerEasily turn your PDF floor plans into 3D with AI-generated home layouts.Convert Now – Free & InstantThe future presses closer while my clients still wrestle with damp corners, poor light, and storage chaos; I see basements as early code for tomorrow’s lifestyles. NAHB data shows smaller homes trending, so every square foot must multitask—basement floor plans 600 sq ft become strategic firmware for the household. And when the interface is tuned, the pain points dissolve into clean routines, and the space starts to think ahead. spatial reasoning toolkitHybrid Studio + Guest NookDesign Logic: A split program: 2/3 daylight zone for living/work, 1/3 quiet bay for guests. Future flex means modular partitions that compile different routines without conflict.Flow: Arrival at stair node → wardrobe cache → studio spine → guest bay → bath; no cross-traffic to keep cycles clean.Sightlines: Long axis sight to egress window; guest alcove veiled by a half-height screen like a secondary UI layer.Storage: Built-ins along the spine act as predictable cache; 18-inch deep units, labeled tiers for gear and linens.Furniture Fit: A 72-inch sleeper, narrow desk rail, and a 30-inch cafe table; APIs respect circulation bandwidth at 36 inches clear.Verdict: In five years, the studio morphs from focus mode to hospitality without rework—future-proofing baked into the blueprint.save pinOpen in 3D Planner Processing... Media Den + Micro GymDesign Logic: Entertainment stacks with wellness: two nodes share infrastructure but keep acoustic boundaries—tomorrow’s recovery and connection in one loop.Flow: Stair landing → equipment wall → mat zone → media pit; users route like a scripted routine from intensity to decompression.Sightlines: Low, layered lighting creates a hierarchy: screens read primary, mirrors secondary, egress path always legible.Storage: Ventilated lockers for gear, pull-out crates under the riser; cache warm/cool zones for towels and tech.Furniture Fit: 84-inch sofa, compact rack, foldable bench; 24-inch clearance around equipment meets the API of safe movement.Verdict: The den-gym duet keeps habits sticky; the system routes attention with minimal friction—future behavior made ordinary.save pinOpen in 3D Planner Processing... Workshop + Laundry SpineDesign Logic: A maker lane paired with an efficient wash spine; households of the near future optimize micro-utilities like code modules.Flow: Entry node → sorting bench → machines → folding rail → tool bench; an if-then sequence minimizes backtracking.Sightlines: Clear read of task areas, translucent panels diffuse light so mess feels contained yet monitorable.Storage: Pegboard grid (1-inch spacing) caches tools; tall pantry for detergents and seasonal bins—indexed and reachable.Furniture Fit: 30-inch deep workbench, stacked units, rolling cart; aisle set to 40 inches to keep operations fluid.Verdict: Over time, the spine behaves like a reliable process; domestic logistics compile into calm, not clutter.save pinOpen in 3D Planner Processing... Final TakeawayBasement floor plans 600 sq ft become precision interfaces where light, air, and routines run like well-written code. In smaller footprints, the smartest moves are layered programs—hybrid studio, wellness node, and utility spine—each calibrated to future living patterns. These lower levels aren’t secondary; they’re the household’s quiet operating system, evolving from storage to strategy. In my experience, intentional sequencing and exact dimensions transform basements into long-term infrastructure.Convert Now – Free & InstantPlease check with customer service before testing new feature.Free floor plannerEasily turn your PDF floor plans into 3D with AI-generated home layouts.Convert Now – Free & Instant