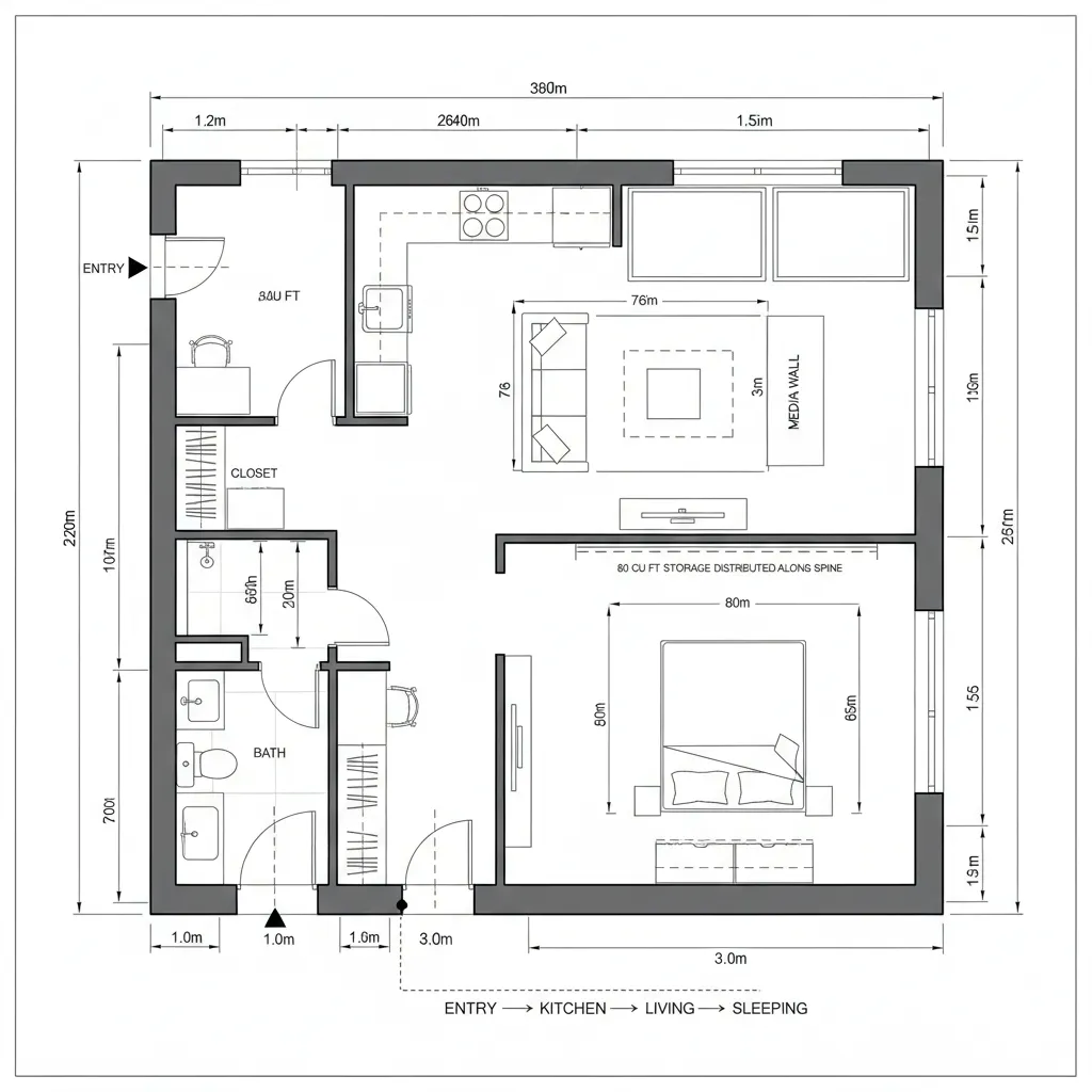
650 sq ft Flat Floor Plan, Composed for Future Living: A compact interface where movement, sightlines, and storage act like code in a calm operating systemAtlas MeridianJan 21, 2026Table of ContentsStudio Core with Sliding PartitionOne-Bed Loop with Pocket KitchenL-Plan with Corner Living and Micro DenFinal TakeawayFree floor plannerEasily turn your PDF floor plans into 3D with AI-generated home layouts.Convert Now – Free & InstantFuture lifestyles push for adaptability while current tenants juggle noise, clutter, and too many micro-rooms fighting for air; I keep reading NAHB reports noting shifting buyer priorities toward flexible small footprints, and the 650 sq ft flat floor plan becomes a proving ground. The future is approaching fast, and I’m already designing for it—one compact interface at a time. spatial reasoning toolkitStudio Core with Sliding PartitionDesign Logic: A studio spine holds living, sleeping, and work as one adaptive module; the partition is an update channel for changing life patterns.Flow: Entry → galley kitchen → living bay → sleeping alcove; like a linear script that compiles without loops.Sightlines: Long axis view from door to window keeps a single, readable UI; privacy gradients modulate like dimming layers.Storage: Full-height wall rails and under-bed drawers act as cache; 60–80 cubic feet organized by frequency of use.Furniture Fit: 72–78 inch sofa, 30 inch desk, queen platform at 60x80; every API call meets clearance buffers of 30–36 inches.Verdict: In five years, this layout still flexes—work shifts, sleep anchors, and the partition toggles modes without re-architecting.save pinOpen in 3D Planner Processing... One-Bed Loop with Pocket KitchenDesign Logic: The loop plan separates sleep but keeps circulation continuous, reducing friction points—the future favors smooth instruction sets.Flow: Entry → pocket kitchen → dining node → living node → bedroom → bath; a ring where tasks execute in sequence and never dead-end.Sightlines: Diagonal peek from dining to window extends perceived bandwidth; bedroom door offset to shield bed from direct scan.Storage: 24-inch deep wall pantry, linen tower, bedbase cache; labeled bins as metadata for quick retrieval.Furniture Fit: Drop-leaf table 30x30, two stackable chairs, 65-inch media wall; the system respects 18-inch approach zones.Verdict: The loop reads efficiently—meal, rest, work—like a daily cron job that stays relevant as habits evolve.save pinOpen in 3D Planner Processing... L-Plan with Corner Living and Micro DenDesign Logic: The L-shape establishes an anchor leg for social and a quiet leg for focus; future routines need parallel threads.Flow: Entry node branches: left to living corner, right to micro den and bath; branching logic limits collisions.Sightlines: Corner glazing becomes the main UI; the den is a low-contrast pane, visually throttled for calm.Storage: Built-in bench with 12-inch deep bays, vertical wardrobe, overhead shelves; cache tiers separate daily from archival.Furniture Fit: Compact sectional 80 inches, nesting coffee tables, 28-inch den desk; API limits keep pathways at 32 inches clear.Verdict: Over five years, the den pivots—from study to nursery to hobby lab—without refactoring the core living code.save pinOpen in 3D Planner Processing... Final TakeawayThe 650 sq ft flat floor plan is less about square footage and more about how we script movement, storage, and view. In a small apartment layout, scale becomes a language for intent, with micro dens and loop circulation future-proofing daily routines. Long-tail needs like remote work zones and flexible sleeping modules should be compiled into the plan, not bolted on later. In my experience, the smartest homes of the future won’t be larger—only more intentional.Convert Now – Free & InstantPlease check with customer service before testing new feature.Free floor plannerEasily turn your PDF floor plans into 3D with AI-generated home layouts.Convert Now – Free & Instant