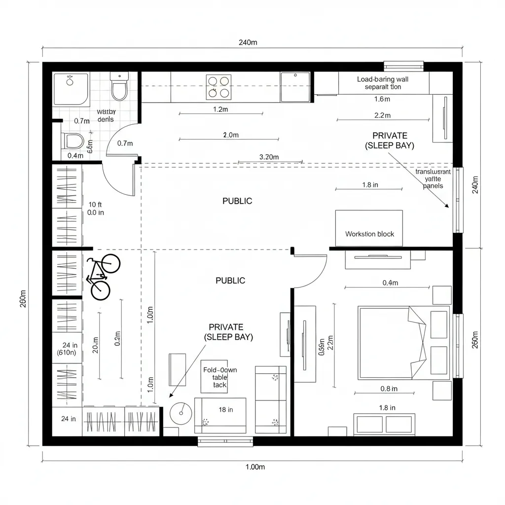
720 sq ft future-ready floor plans: A designer’s interface-first reading of compact American livingAtlas NorthJan 21, 2026Table of ContentsLinear Spine, Split ZonesCourtyard Core, Perimeter RoomsDual-Mode Studio + Sliding PartitionFinal TakeawayFree floor plannerEasily turn your PDF floor plans into 3D with AI-generated home layouts.Convert Now – Free & InstantFuture living presses tighter while current homes still leak time in corridors and cluttered corners; I see it daily. According to NAHB, average new-home sizes have trended downward in recent years, sharpening the need for precision within small footprints—exactly where floor plans for 720 sq ft house become early code for a new lifestyle. The future is nearing, and I’m already mapping its edges with a spatial reasoning toolkit.Linear Spine, Split ZonesDesign Logic: A single service spine (kitchen/bath/utility) consolidates plumbing, freeing edges for light and flexible living. Future trend: compress systems, expand experiences.Flow: Entry → micro-mud zone → living → galley kitchen → bath → bedroom; a clean instruction sequence with minimal context switching.Sightlines: Long axis sight from entry to window hydrates the space; partial screens act like UI layers, revealing content gradually.Storage: Full-height pantry, bed base drawers, and a 24" deep hallway wall—cache close to use, not to walls.Furniture Fit: 72" sofa, 30" deep media shelf, drop-leaf table, queen platform; APIs set by circulation clearances at 36".Verdict: Five years out, this spine keeps maintenance low and adaptability high—bandwidth reserved for life, not upkeep.save pinOpen in 3D Planner Processing... Courtyard Core, Perimeter RoomsDesign Logic: A central light well or pocket patio becomes the OS kernel—air and light allocating attention to adjacent functions.Flow: Perimeter loop: living → kitchen → bedroom → bath → back to living; circular routing reduces dead-ends and latency.Sightlines: Interior windows align like breadcrumb UI—glimpses through the core guide orientation without signage.Storage: Perimeter built-ins (12–16" deep), overhead kitchen rails, and bath niches—tiered caches for different data types.Furniture Fit: 60" round table centers gatherings; modular lounge pieces at 30" increments adapt to visitor loads.Verdict: As routines oscillate, the core stabilizes—an always-on node that keeps 720 sq ft feeling elastic.save pinOpen in 3D Planner Processing... Dual-Mode Studio + Sliding PartitionDesign Logic: One large room splits with acoustic sliders; daytime open, nighttime private—future favors toggles over walls.Flow: Entry → storage wall → open studio → partition → sleep bay → compact bath; a mode-switching program run.Sightlines: Frame primary view across the longest diagonal; secondary views layered via translucent panels—UI hierarchy stays legible.Storage: 10' continuous wall system with vertical modules, plus ceiling-mounted bike rail—high-density cache, zero drift.Furniture Fit: 48" workstation, fold-down murphy table, low-profile 18" seating; every inch returns value to motion paths.Verdict: This layout anticipates remote work volatility; partitions become firmware updates, not demolition.save pinOpen in 3D Planner Processing... Final TakeawayFloor plans for 720 sq ft house are not limitations; they’re precise interfaces for how we’ll live when attention is scarce and adaptability is premium. In compact homes, micro-zones, sliding partitions, and consolidated service spines act like future-forward code snippets, compiling daily routines cleanly. The smartest small homes won’t be larger—only more intentional. In my experience, the right 2D decisions quietly reprogram the next five years of living.Convert Now – Free & InstantPlease check with customer service before testing new feature.Free floor plannerEasily turn your PDF floor plans into 3D with AI-generated home layouts.Convert Now – Free & Instant