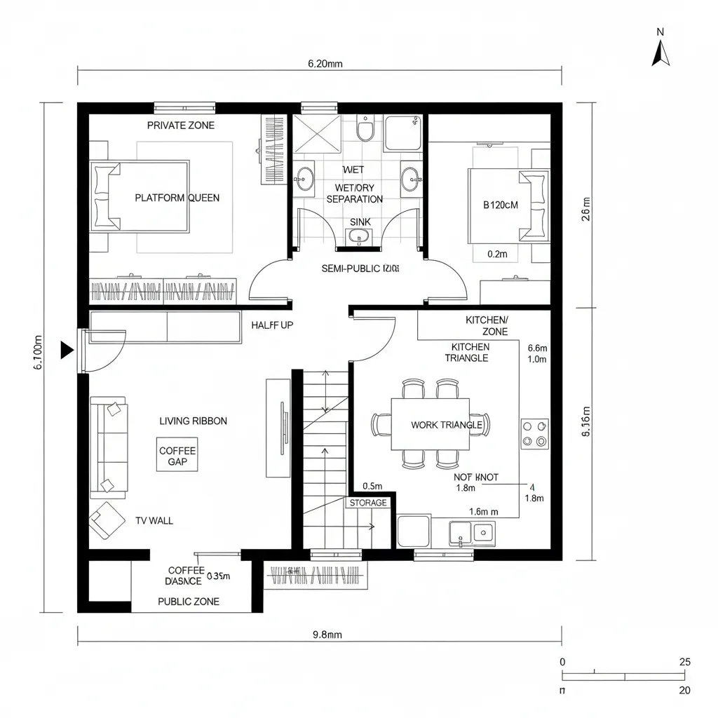
75 Sq Yards, Compiled for Tomorrow: A compact plot as a clear interface for future livingMiles in the MarginJan 21, 2026Table of ContentsCourtyard Spine | One-Level Micro-ClusterSplit-Level Ribbon | Vertical EfficiencyFront-Back Dual Use | Work-Home ToggleFinal TakeawayFree floor plannerEasily turn your PDF floor plans into 3D with AI-generated home layouts.Convert Now – Free & InstantThe future edges closer every quarter, and small plots start acting like firmware updates for domestic life. Today’s families want frictionless routines yet face cramped footprints, rising utility loads, and zoning quirks; the 75 sq yards floor plan becomes a disciplined canvas. AIA’s latest housing pulse notes persistent demand for compact, high-efficiency layouts, and I read that as a signal: small geometry, big intention. spatial reasoning toolkit sits quietly behind my clients’ decisions—because space is our lifestyle interface.Courtyard Spine | One-Level Micro-ClusterDesign Logic: A slim central court splits light like a bus, feeding rooms with equal bandwidth, ideal for dense urban lots and heat control. Flow: Gate → buffer porch → living node → courtyard hub → kitchen edge → rear sleep block; a clean execution path reduces collisions. Sightlines: Living frames the court; diagonal views stitch kitchen to entry, UI layers reveal privacy gradually. Storage: Perimeter wall units + under-bench caches; shallow depths, high repeatability, no orphan items. Furniture Fit: 2.0–2.2m sofa, 75cm table clearance, bed at 1.5m queen max; API limits favor foldable side tables. Verdict: This micro-cluster sustains heat, light, and routine like a stable kernel—five years on, maintenance stays low and habits feel orchestrated.save pinOpen in 3D Planner Processing... Split-Level Ribbon | Vertical EfficiencyDesign Logic: Half-stair increments turn a small footprint into stacked functions, syncing with future multigenerational patterns. Flow: Entry node → living ribbon → half-flight → kitchen tier → half-flight → sleep tier; latency reduced between tasks. Sightlines: Tiered sightlines act like UI zoom: near focus in living, mid in kitchen, soft blur to bedroom. Storage: Stair drawers as cache, toe-kick pullouts, ceiling joist lofts; capacity mapped to frequency of use. Furniture Fit: Narrow 160–180cm sofa, 90cm galley clearance, platform beds with 30cm under-cache; precision beats bulk. Verdict: The ribbon layout future-proofs micro-living; occupants gain vertical agility and the home behaves like a layered app.save pinOpen in 3D Planner Processing... Front-Back Dual Use | Work-Home ToggleDesign Logic: Street-facing studio and rear domestic zone split identities, matching remote work and side-hustle economies. Flow: Street entry → flexible studio → sliding gate → family core → rear yard; a permission system for daily modes. Sightlines: Controlled transparency from studio to court, opaque to bedrooms; UI hierarchy protects focus and rest. Storage: Lockable work cabinets, family pantry spine, outdoor shed as cold cache; labeled and time-bound. Furniture Fit: Studio desk at 160cm with cable trough, modular dining bench, 120cm wardrobe modules; everything compiles cleanly. Verdict: Dual-use is the pragmatic future; five years ahead, income streams flex while home rituals remain stable.save pinOpen in 3D Planner Processing... Final TakeawayThe 75 sq yards floor plan asks for orchestration, not excess; compact homes run like lean code. Variants such as micro-lot layouts, split-level footprints, and courtyard spines let small geometry host big lives. In my experience, the smartest compact dwellings are not larger, only more intentional; what I keep seeing in my projects is how precise flow and storage quietly rewrite daily behavior.Convert Now – Free & InstantPlease check with customer service before testing new feature.Free floor plannerEasily turn your PDF floor plans into 3D with AI-generated home layouts.Convert Now – Free & Instant