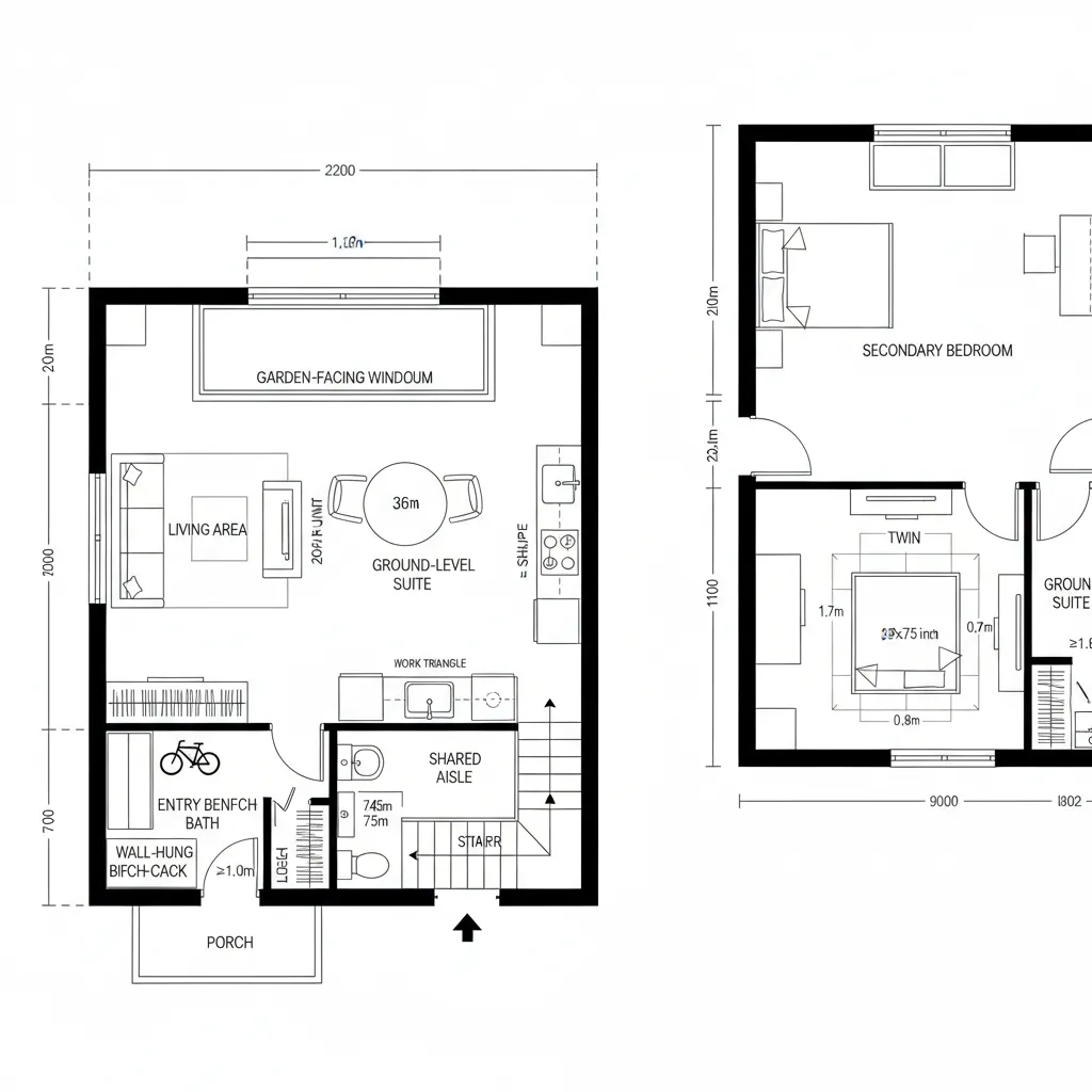
800 sq ft, two-story micro-home plans: A compact footprint tuned like a future interface for daily lifeField Notes from a Future-Facing PlannerJan 21, 2026Table of ContentsSplit-Level Core Living Below, Sleep AboveMicro Loft + Flexible StudioDual-Use Ground Floor with Pocket SuiteFinal TakeawayFree floor plannerEasily turn your PDF floor plans into 3D with AI-generated home layouts.Convert Now – Free & InstantThe future presses closer while my clients still juggle storage, privacy, and light in tight footprints. Industry signals say smaller is normal: NAHB reports the average new-home size has trended down since peaks, and buyers re-prioritize function over excess. In that context, 800 sq ft house plans with two floors become a surgical instrument for lifestyle. I see these layouts as early code for tomorrow’s domestic OS—lean, intentional, and upgradeable. spatial reasoning toolkitSplit-Level Core: Living Below, Sleep AboveDesign Logic:Public realm downstairs, private realm upstairs creates a clear permissions map; the future favors modular privacy and daylight separation.Flow:Entry → coat cache → living hub → kitchen node → stair spine → bedroom loop → bath; a binary flow minimizing cross-talk.Sightlines:From entry, a long axis to window; kitchen sight cuts at mid-depth; upstairs views anchor at tree-line, not the stair void.Storage:Under-stair drawers, vertical pantry, bed-platform cubbies; capacity stacked like tiers of memory.Furniture Fit:72–78" sofa, 30" deep media rail, 30" table with two stackable chairs; bed frames tight to 60" for queen.Verdict:This keeps bandwidth clear: social packets downstairs, rest packets upstairs—a pattern that ages well over the next five years.save pinOpen in 3D Planner Processing... Micro Loft + Flexible StudioDesign Logic:A semi-open upper studio flexes between office, guest, and wellness; the system anticipates multi-threaded lives.Flow:Entry → galley kitchen → living → ladder/stair → loft studio → sliding partition to sleep → bath; commands branch, rejoin, deploy.Sightlines:Diagonal view from sofa to stair and loft rail, layered like UI panes; privacy deepens as angles tighten.Storage:Ceiling-height wardrobes, loft knee-wall niches, slim shoe cache at entry; retrieval prioritizes frequency.Furniture Fit:Wall desk 48" × 20", sleeper loveseat 60–66", nesting tables 16–18" dia; studio uses fold-flat modules.Verdict:A nimble topology where functions spin up or down—ideal as remote-work patterns harden into daily protocol.save pinOpen in 3D Planner Processing... Dual-Use Ground Floor with Pocket SuiteDesign Logic:Ground-level pocket suite future-proofs for guests or aging-in-place; resilience coded into the plan.Flow:Porch → foyer buffer → living/kitchen ring → sliding door → compact suite → shared bath → stair to secondary bedroom.Sightlines:Lateral view across living to garden; suite holds soft focus with frosted pocket; upstairs looks outward, not down.Storage:Entry bench-cache, wall-hung bike rack, bath tall cabinet, suite shelf-wall; orderly, like indexed data.Furniture Fit:Round table 36", two-arm chairs 22" wide, pocket door clearance 30–32", twin bed 39" × 75" with lift storage.Verdict:It’s a gentle redundancy: one plan serving multiple futures without bloat—precision over size, like lean code compiled well.save pinOpen in 3D Planner Processing... Final Takeaway800 sq ft house plans with two floors are not compromises; they are streamlined operating systems for domestic life. In these compact two-story layouts, privacy, daylight, and circulation behave like syntax that governs how we live. The best small home designs and micro-home floor plans will win by intention, not square footage. In my experience, the smartest homes of the future won’t be larger—only more intentional.Convert Now – Free & InstantPlease check with customer service before testing new feature.Free floor plannerEasily turn your PDF floor plans into 3D with AI-generated home layouts.Convert Now – Free & Instant