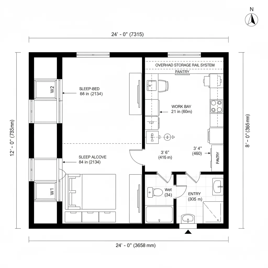
AutoCAD Simple Floor Plan, Rendered for Near-Future Living: How I structure a minimal drawing to behave like tomorrow’s lifestyle interfaceOrion Vale, AIADec 18, 2025Table of ContentsStudio Grid: 24' x 12' with Split Utility SpineOne-Bed Loop: 650 sf with Peripheral CircuitTwo-Bed Flex: 900 sf with Convertible NodeFinal TakeawayTable of ContentsStudio Grid 24' x 12' with Split Utility SpineOne-Bed Loop 650 sf with Peripheral CircuitTwo-Bed Flex 900 sf with Convertible NodeFinal TakeawayFree floor plannerEasily turn your PDF floor plans into 3D with AI-generated home layouts.Convert Now – Free & InstantThe future is pressing in, and current homes still struggle with cluttered flow, weak storage logic, and sightlines that fragment daily life—yet I can already see how a spatial reasoning toolkit can align a simple AutoCAD floor plan with what’s coming. AIA notes a sustained demand for adaptable layouts and multi-use rooms, and that’s exactly where an autocad simple floor plan becomes the early code for new routines. I treat each line as a future instruction set.Studio Grid: 24' x 12' with Split Utility SpineDesign Logic: A central utility spine divides quiet and active zones, anticipating hybrid work-sleep cycles and modular upgrades.Flow: Entry → kitchenette → spine node → work bay → sleep alcove; a clean sequence like a compiled program.Sightlines: Long axis preserves a calm horizon; partial screens create UI layers without breaking continuity.Storage: Overhead rails + bed base drawers act as cache; 40–60 cubic feet mapped to daily frequency.Furniture Fit: 30" desk, 84" sofa-bed, 24" deep pantry—APIs set to human bandwidth, not excess.Verdict: In five years, this micro-grid flexes for remote work, wellness, and quick reconfiguration without re-drafting life.save pinOne-Bed Loop: 650 sf with Peripheral CircuitDesign Logic: A perimeter loop turns the apartment into a continuous interface, supporting multi-tasking and seamless hosting.Flow: Foyer → kitchen node → dining edge → living corner → bedroom gate → bath; one circular path reduces decision latency.Sightlines: Diagonal views from kitchen to living act like priority notifications; bedroom sightline muted for cognitive rest.Storage: Tall hallway cabinets + shallow living niche = hot/cold cache; seasonal items off the critical path.Furniture Fit: 36" dining round, 9' sectional, 60" bed, all respecting door swings and 36" clearances like protocol rules.Verdict: The loop will age well, supporting parenting, pets, and evolving work habits without bandwidth drops.save pinTwo-Bed Flex: 900 sf with Convertible NodeDesign Logic: A central flex node bridges living and secondary bedroom, future-proofing for coworking or guest cycles.Flow: Entry buffer → living core → flex node → kitchen bar → primary suite; packets move without collisions.Sightlines: Sightline from entry to window anchors orientation; flex node has semi-opaque layers for context switching.Storage: Deep hallway closets + kitchen wall system = tiered cache; daily, weekly, quarterly items sorted by reach time.Furniture Fit: 72" sofa, 30" worktable, queen bed, 24" counter modules; tight tolerances ensure graceful runtime.Verdict: Over five years, the flex node becomes the home’s operating system—hosting, work, or wellness without redraws.save pinFinal TakeawayAn autocad simple floor plan is not just lines—it’s the compiled language of future routines. With clean flow, coherent sightlines, and cache-minded storage, even a minimal drawing evolves into a resilient apartment layout and adaptable home plan. In my experience, the smartest homes of the future won’t be larger—only more intentional, and I keep shaping drawings that prove it.Convert Now – Free & InstantPlease check with customer service before testing new feature.Free floor plannerEasily turn your PDF floor plans into 3D with AI-generated home layouts.Convert Now – Free & Instant