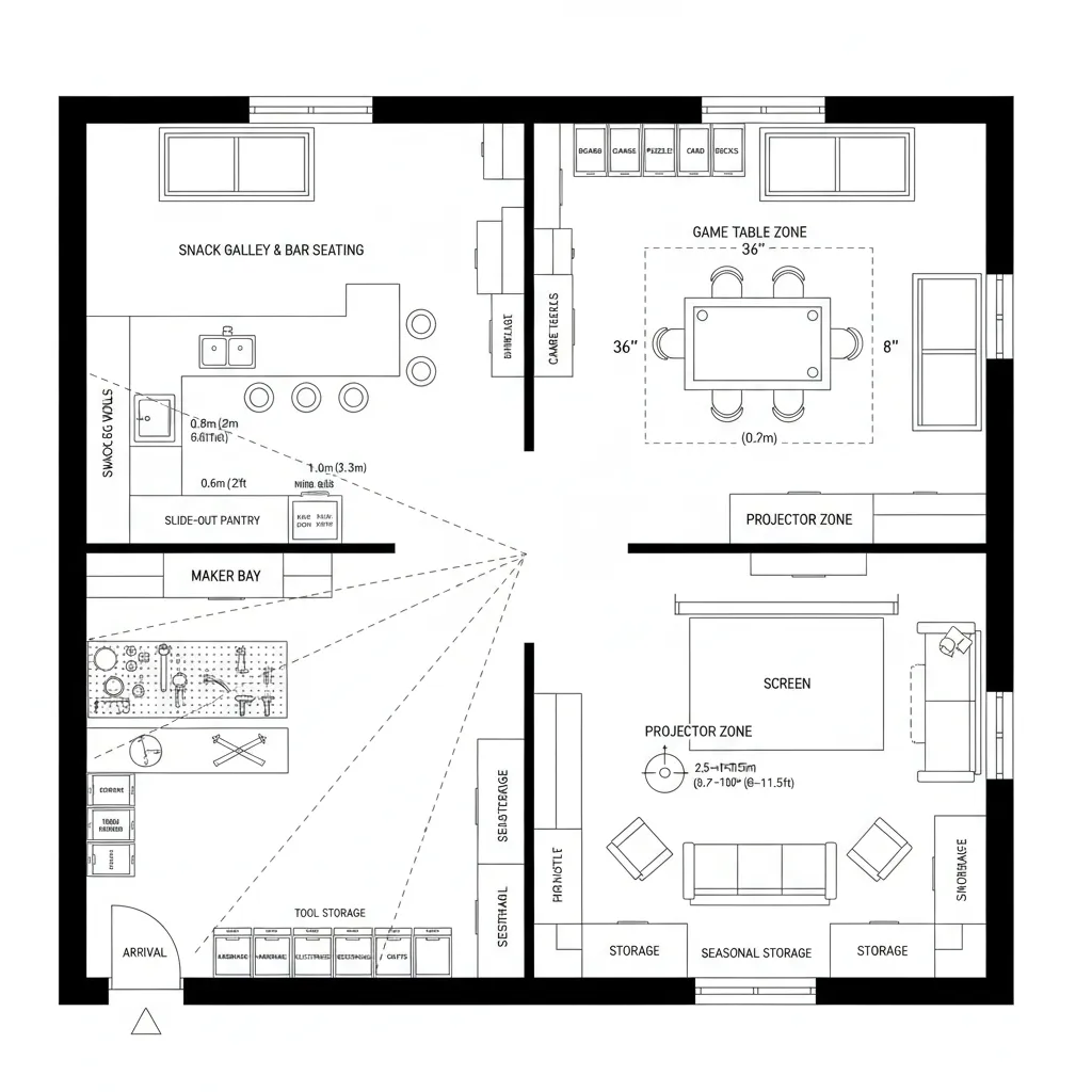
Basement Floor Plans, 1200 Sq Ft: Interface-thinking for tomorrow’s living beneath the main storyNoah Ellison, Residential Futures DesignerMar 26, 2026Table of ContentsHybrid Retreat + Work LabGuest Suite + Micro Gym + Library SpineEntertainment Grid + Maker BayFinal TakeawayFree floor plannerEasily turn your PDF floor plans into 3D with AI-generated home layouts.Convert Now – Free & InstantFuture habits are moving downstairs while today’s pain points—noise, storage scarcity, and fragmented routines—still surface. Zillow data shows finished basements increase perceived livable value even when appraisals lag, and that tension is the exact field where basement floor plans 1200 sq ft become a new interface. The future is pressing in, and I’m already building for it: spatial reasoning toolkit.Hybrid Retreat + Work LabDesign Logic:Divide the 1200 sq ft into a quiet work bay, a media lounge, and a wellness nook; tomorrow’s hybrid schedules need layered zones over raw square footage.Flow:Entry → mud/gear buffer → work bay → lounge → wellness → egress; a compiled path that throttles noise and maintains cognitive bandwidth.Sightlines:Low partitions cue hierarchy: desk sightline avoids screen glare, lounge frames the wall as a canvas, wellness corner holds soft focus like a low-latency UI.Storage:Perimeter millwork acts as cache; deep drawers for equipment, vertical files for paper, concealed bins for cables, all indexed like a version control system.Furniture Fit:68–72" sofa, 30" desk depth, modular poufs; each piece respects clearance APIs—36" paths, 18" side reach, 42" media arc.Verdict:This stack future-proofs hybrid living, letting work and rest run parallel without process collisions for the next five years.save pinOpen in 3D Planner Processing... Guest Suite + Micro Gym + Library SpineDesign Logic:Carve a compact guest suite, attach a micro gym, and thread a library spine; aging-in-place and multi-generational living lean on adaptable nodes.Flow:Stair arrival → library spine → guest suite → bath → gym → utility; sequences like a readable timeline, reducing context-switch fatigue.Sightlines:Books as UI breadcrumbs; suite views are calm, gym mirrors bounce light, short hall reveals guide orientation like onboarding screens.Storage:Wall niche library, under-stair cabinets, linen tower; cache tiers separate daily/seasonal/rare use to keep latency low.Furniture Fit:Full-size bed with 30" margins, compact armoire, folding bench, adjustable rack; tight but precise, honoring the interface limits of 1200 sq ft.Verdict:It reads as hospitality plus resilience—guests, elders, or teens plug in without rewriting the whole program.save pinOpen in 3D Planner Processing... Entertainment Grid + Maker BayDesign Logic:A four-quadrant entertainment grid with one corner reserved for a maker bay; culture and creation share the same clock cycle in near-future homes.Flow:Arrival → snack galley → game table → projector zone → maker bay → storage; a looped routine that sustains momentum and reduces idle time.Sightlines:Diagonal sightlines keep the projector dominant, game table peripheral, maker tools visually contained like a modal window.Storage:Labelled bins, peg walls, slide-out pantry; caches are modular, recompiled with seasons—boards in winter, garden kits in spring.Furniture Fit:84–100" projection throw, 36" game table clearance, 24" deep workbench; tolerances keep friction low and enthusiasm high.Verdict:This layout anticipates social bandwidth spikes while honoring the maker’s need for focused cycles—balanced throughput for years ahead.save pinOpen in 3D Planner Processing... Final TakeawayBasement floor plans 1200 sq ft are not just square footage; they’re a programmable interface for how families will live under shifting rhythms. Variants like finished lower-level layouts and multi-zone basements act as firmware updates, reconfiguring daily flow without expanding the envelope. Long-tail needs—from hybrid work studios to multi-generational suites—synchronize when the plan treats storage as cache and movement as code. In my experience, the smartest basements are less about scale and more about intentional bandwidth.Convert Now – Free & InstantPlease check with customer service before testing new feature.Free floor plannerEasily turn your PDF floor plans into 3D with AI-generated home layouts.Convert Now – Free & Instant