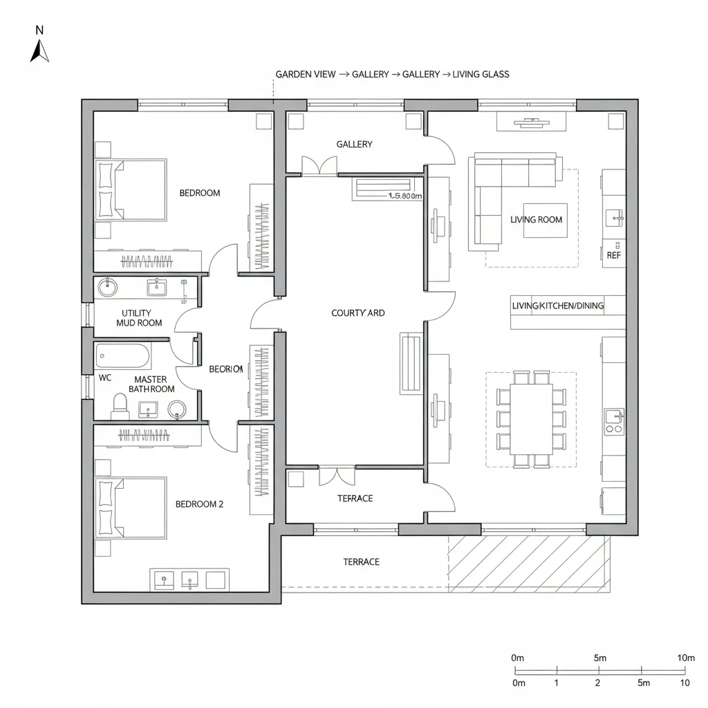
Contemporary Modern Home Floor Plans: Interface-thinking for domestic life at the edge of tomorrowIris Vale, Residential FuturistApr 25, 2026Table of ContentsOpen Core with Split Private WingsCourtyard Spine with Perimeter ProgramsFlex Suite + Studio Over GarageFinal TakeawayFree floor plannerEasily turn your PDF floor plans into 3D with AI-generated home layouts.Convert Now – Free & InstantFuture living is pressing in while current homes still stumble on storage bottlenecks, fragmented circulation, and light-starved cores. Industry surveys note how buyers prioritize functional flow and flexible zones—AIA and NAHB data consistently track demand for adaptable layouts—so contemporary modern home floor plans become the codebase for daily rituals. I work as if the next decade has already started, and I read these rooms like early software for future routines. spatial reasoning toolkitOpen Core with Split Private WingsDesign Logic:Centralized great room acts as a processor; split bedrooms create latency buffers for privacy and acoustics, aligned with remote work and multigenerational living trends.Flow:Entry → mud node → kitchen island hub → living zone → terrace; private wings branch like threads, minimizing cross-traffic.Sightlines:Diagonal vistas from entry to glazing anchor, with peripheral UI layers (art, shelving) guiding focus and calm.Storage:Wall-integrated pantries, linen stacks, and a garage drop cache keep high-frequency items near the loop, low-frequency at the perimeter.Furniture Fit:Island at 10’x4’, sofa at 96”, dining table 84”, all scaled to circulation bandwidth without packet loss.Verdict:Five years ahead, this split-core will read as resilient: kids, guests, or cowork all co-exist without collisions.save pinOpen in 3D Planner Processing... Courtyard Spine with Perimeter ProgramsDesign Logic:A void becomes the system bus; rooms compile around a light court, translating biophilic demand into daily performance and thermal balance.Flow:Garage → utility node → gallery spine → courtyard → living/kitchen; loops allow shortcuts like keyboard macros for life.Sightlines:Layered depth: near garden, mid-level gallery art, far living glass; the UI stacks reduce cognitive noise and increase calm throughput.Storage:Bench runs and concealed millwork cache seasonal items; kitchen tall units operate as high-density memory with labeled access points.Furniture Fit:Court bench 18” high, 24” deep; dining set centered to view axis; lounge pieces keep 36” clearances for clean pathfinding.Verdict:This spine turns climate and light into utilities; future owners will feel energy and time optimized by the void.save pinOpen in 3D Planner Processing... Flex Suite + Studio Over GarageDesign Logic:Attach an auxiliary program that compiles income, care, and creativity—ADU logic meets contemporary modern home floor plans without bloating the core.Flow:Main house loop intact; stair to studio acts as parallel thread for guests, teens, or micro-enterprise, reducing contention.Sightlines:Controlled reveals: from landing to treetop frames; within the suite, glazing edits the horizon like a clean UI dashboard.Storage:Under-stair drawers, overhead gear racks, and a studio wall of shallow shelves maintain cache proximity to task nodes.Furniture Fit:Studio desk 72”, sleeper sofa 80”, kitchenette modules at 24” depth; everything snaps to electrical and acoustic APIs.Verdict:In five years, this flex stack buffers life changes—rent, relatives, retreats—without rewriting the main script.save pinOpen in 3D Planner Processing... Final TakeawayContemporary modern home floor plans function like living interfaces, where circulation is code and light is data. Variants—open core, courtyard spine, and flex suites—show how compact decisions produce scalable futures. Long-tail needs like multigenerational privacy and remote-work elasticity are baked into the plan, not added later. In my experience, the smartest homes of the next decade stay modest in size but radically intentional in their operating system.Convert Now – Free & InstantPlease check with customer service before testing new feature.Free floor plannerEasily turn your PDF floor plans into 3D with AI-generated home layouts.Convert Now – Free & Instant