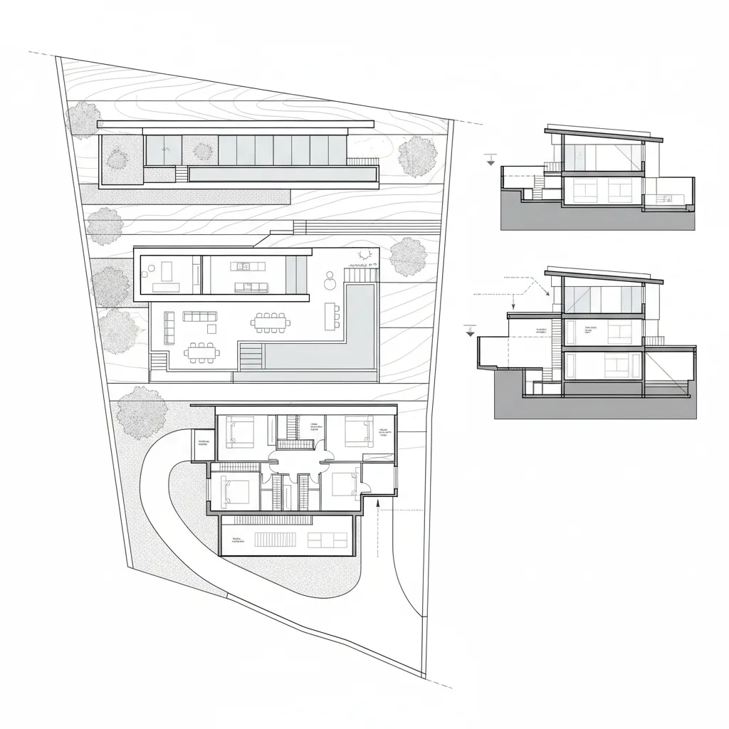
Diseños de casas en terrenos con desnivel: Ideas reales de arquitectura para aprovechar pendientes y evitar errores costososAlejandro RuizMar 24, 2026Table of ContentsDirect AnswerQuick TakeawaysIntroduction¿Qué tipo de casa funciona mejor en un terreno con desnivel?Por qué nivelar completamente el terreno suele ser un errorCómo aprovechar las vistas en diseños de casas en terrenos con desnivelErrores comunes en casas construidas en pendiente¿Se puede construir una casa económica en un terreno con desnivel?Answer BoxCómo planificar correctamente la distribución en pendientesFinal SummaryFAQFree floor plannerEasily turn your PDF floor plans into 3D with AI-generated home layouts.Convert Now – Free & InstantDiseños de casas en terrenos con desnivelDirect AnswerLos diseños de casas en terrenos con desnivel aprovechan la pendiente para crear viviendas escalonadas, semisótanos habitables o plantas divididas. Cuando se diseñan correctamente, estos proyectos reducen movimientos de tierra, mejoran las vistas y permiten distribuciones más eficientes. La clave está en adaptar la arquitectura al terreno, no en intentar nivelarlo completamente.Quick TakeawaysLas casas escalonadas reducen costes de excavación y aprovechan la pendiente natural.Un desnivel bien diseñado puede añadir luz natural y vistas privilegiadas.Intentar nivelar todo el terreno suele ser el error más caro.Los semisótanos pueden convertirse en espacios habitables muy valiosos.El acceso y el drenaje son decisiones críticas en estos proyectos.IntroductionEn más de diez años trabajando en proyectos residenciales, he visto que muchos clientes se asustan cuando compran terrenos con pendiente. Sin embargo, los diseños de casas en terrenos con desnivel suelen terminar siendo algunos de los proyectos más interesantes y con mejor resultado arquitectónico.Recuerdo un proyecto en la sierra de Madrid donde el terreno tenía casi cuatro metros de diferencia entre la calle y la parte trasera. El cliente pensaba que eso era un problema. En realidad terminó siendo la mejor parte del diseño: creamos una casa con tres niveles naturales y un salón con vistas espectaculares.Hoy existen herramientas que ayudan mucho a visualizar estas soluciones antes de construir. Por ejemplo, al explorar ideas de distribución con un planificador 3D, es más fácil entender cómo funcionan las plantas escalonadas o los accesos a distintos niveles.En este artículo voy a compartir lo que realmente funciona en la práctica: soluciones que usamos los diseñadores para aprovechar pendientes, errores muy comunes que encarecen las obras y decisiones que muchos propietarios no consideran hasta que es demasiado tarde.save pin¿Qué tipo de casa funciona mejor en un terreno con desnivel?No existe un único modelo ideal, pero hay tres configuraciones que funcionan especialmente bien cuando el terreno tiene pendiente.Las que mejor resultado dan en proyectos reales son:Casa escalonada: cada nivel sigue la pendiente natural.Casa con semisótano: la planta inferior queda parcialmente enterrada.Casa de niveles divididos (split-level): pequeñas diferencias de altura entre espacios.En proyectos reales, la casa escalonada suele ser la solución más eficiente porque evita excavaciones grandes. En lugar de luchar contra el terreno, el diseño lo acompaña.Esto también mejora la iluminación natural. Las plantas inferiores suelen abrirse hacia el lado bajo del terreno, generando ventanales que no serían posibles en un solar plano.Por qué nivelar completamente el terreno suele ser un errorMuchos propietarios piensan que lo primero es aplanar el terreno. En la práctica, esa decisión puede disparar el presupuesto.Los problemas más habituales cuando se intenta nivelar todo son:Grandes costes de movimiento de tierraMuros de contención muy carosProblemas de drenaje y presión de aguaPérdida de vistas naturalesEn un proyecto en Asturias, el cliente quería crear una plataforma completamente plana para la casa. El coste estimado de muros y excavación duplicaba el presupuesto de estructura. Finalmente optamos por un diseño escalonado y el coste se redujo casi un 40%.La arquitectura inteligente en terrenos inclinados consiste en adaptarse a la topografía, no en eliminarla.save pinCómo aprovechar las vistas en diseños de casas en terrenos con desnivelUna de las mayores ventajas de estos terrenos es la posibilidad de crear vistas abiertas.Algunas estrategias que utilizamos en diseño:Ubicar salón y cocina en la cota más altaGrandes ventanales hacia el lado descendenteTerrazas escalonadasVoladizos que amplían la perspectivaEn muchos proyectos, el desnivel permite algo que sería imposible en una parcela plana: que todas las plantas tengan iluminación natural directa.Cuando estoy planificando estos proyectos suelo trabajar primero la relación entre niveles antes que la distribución interior. Herramientas para visualizar plantas con IA y pendiente del terreno ayudan a prever cómo se conectan las alturas sin errores de circulación.Errores comunes en casas construidas en pendienteHay problemas que aparecen constantemente en este tipo de viviendas.Los más frecuentes que he visto en obras reales:Escaleras mal ubicadas: generan recorridos incómodos.Drenaje insuficiente: provoca humedad en muros enterrados.Acceso mal resuelto desde la calle.Garaje en el nivel equivocado.Un error especialmente común es diseñar primero la planta y después adaptarla al desnivel. El proceso correcto es el contrario: primero se estudia la pendiente y después se organiza la casa.save pin¿Se puede construir una casa económica en un terreno con desnivel?Sí, pero solo si el diseño aprovecha la pendiente en lugar de combatirla.Estrategias que ayudan a reducir costes:Evitar grandes muros de contenciónUsar cimentaciones escalonadasAprovechar semisótanos como espacios útilesReducir excavaciones profundasCuriosamente, en algunos proyectos el desnivel termina reduciendo el coste total porque permite integrar garaje, almacenamiento o espacios técnicos en niveles inferiores sin ampliar la huella de la casa.Answer BoxLos mejores diseños de casas en terrenos con desnivel utilizan plantas escalonadas, semisótanos habitables y grandes aperturas hacia la pendiente. Adaptar la arquitectura al terreno reduce costes y mejora iluminación, vistas y distribución.Cómo planificar correctamente la distribución en pendientesEn proyectos profesionales solemos seguir este orden de decisiones:Analizar la dirección de la pendienteDefinir el acceso principalUbicar las áreas sociales en la mejor vistaOrganizar los niveles privadosResolver escaleras y conexionesUna vez definidos los niveles, el resto del diseño fluye con mucha más lógica. Si quieres explorar distintas configuraciones antes de construir, puedes experimentar con crear planos de casa adaptados a pendientesy entender cómo se relacionan las plantas.save pinFinal SummaryLos terrenos con desnivel ofrecen oportunidades arquitectónicas únicas.Adaptar el diseño al terreno reduce costes de construcción.Las casas escalonadas suelen ser la solución más eficiente.El drenaje y los accesos son decisiones clave.Un buen diseño convierte la pendiente en una ventaja.FAQ¿Qué tipo de casa es mejor para un terreno con desnivel?Las casas escalonadas o de niveles divididos suelen ser las mejores porque siguen la pendiente natural del terreno y reducen excavaciones costosas.¿Son más caras las casas en terrenos inclinados?No necesariamente. Si el diseño aprovecha el desnivel, el coste puede ser similar o incluso menor que en un terreno plano.¿Se pueden hacer sótanos en terrenos con pendiente?Sí, y de hecho es una ventaja. Los semisótanos pueden recibir luz natural desde el lado más bajo del terreno.¿Cómo afecta el desnivel al diseño interior?Permite crear distribuciones dinámicas con niveles intermedios, dobles alturas y espacios más conectados visualmente.¿Qué errores evitar en diseños de casas en terrenos con desnivel?Intentar nivelar todo el terreno, ignorar el drenaje y diseñar la casa sin considerar primero la topografía.¿Cuántos niveles puede tener una casa en pendiente?Depende del desnivel, pero muchas viviendas aprovechan dos o tres niveles escalonados para distribuir los espacios.¿Los diseños de casas en terrenos con desnivel tienen mejores vistas?En muchos casos sí. La pendiente permite orientar terrazas y ventanales hacia panorámicas abiertas.¿Se puede diseñar una casa moderna en un terreno inclinado?Por supuesto. De hecho, muchos diseños contemporáneos aprovechan la pendiente para crear volúmenes flotantes y terrazas panorámicas.Convert Now – Free & InstantPlease check with customer service before testing new feature.Free floor plannerEasily turn your PDF floor plans into 3D with AI-generated home layouts.Convert Now – Free & Instant