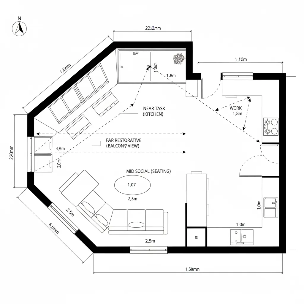
DLF New Town Heights 2: Future-Ready Floor Plan Insights: Reading the unit like a living interface between present pain points and tomorrow’s habitsMarin K.Jan 21, 2026Table of ContentsSplit-Core Two-Bed LayoutCorner Living with Dual AspectCompact Studio ConversionFinal TakeawayFree floor plannerEasily turn your PDF floor plans into 3D with AI-generated home layouts.Convert Now – Free & InstantFuture living is compressing attention, expanding optionality, and punishing wasted motion—right where current apartments still leak time through awkward corridors and shallow storage. As AIA reporting shows a continued rise in multi-functional rooms and flexible partitions, I read the DLF New Town Heights 2 floor plan as an early script for adaptive housing. spatial reasoning toolkit lives beneath the surface, and the plan becomes an operating system for how we’ll live next. The dlf new town heights 2 floor plan is less about rooms and more about bandwidth.Split-Core Two-Bed LayoutDesign Logic: Bedrooms mirrored across a service core reduce cross-talk; future routines need zones that buffer sound and attention. Flow: Entry → drop zone → living-dining spine → bedrooms at terminals; like a linear algorithm with stable I/O nodes. Sightlines: Long axis views anchor from kitchen to balcony, stacking layers of private/public UI without visual noise. Storage: Corridor banks act as cache; deep wardrobes and linen niches absorb seasonal data without fragmentation. Furniture Fit: 3-seat sofa at 84–90", dining 72" x 36"; beds queen/king with 30" clear on flanks—APIs that keep latency low. Verdict: Five years on, modular walls here will accept acoustic panels and smart glass, sustaining quiet productivity and flexible family modes.save pinOpen in 3D Planner Processing... Corner Living with Dual AspectDesign Logic: Corner glazing elevates daylight throughput; future wellbeing indices favor circadian-consistent layouts. Flow: Kitchen as command node → living bay → balcony as external buffer; movement is a loop, not a cul-de-sac. Sightlines: Orthogonal frames toward green and sky create a hierarchy: near task, mid social, far restorative. Storage: Bench-height credenzas along the window wall become low-latency cache, keeping frequently used items docked. Furniture Fit: Sectional at 96–108" floating off glass, coffee table 42" oval to soften packet collisions; media wall capped at 9'. Verdict: The dual aspect turns the unit into a health interface; as air quality sensors and light automation plug in, the room stays lucid.save pinOpen in 3D Planner Processing... Compact Studio ConversionDesign Logic: When a secondary room downsizes into a studio, partition logic shifts to time-based zoning—future renters need reversible states. Flow: Morning: bed retracts → desk deploys → galley heats; evening: storage buffers expand; an executable schedule. Sightlines: Clear diagonals from entry to balcony keep the UI legible; folding planes hide complexity until summoned. Storage: 24" deep wall system with vertical dividers acts as tiered cache: hot (daily), warm (weekly), cold (seasonal). Furniture Fit: Murphy bed full/queen, desk 60" x 28", nesting tables; clearances at 34" ensure autonomous flow without collisions. Verdict: Over five years, this studio logic will sync with subscription furniture and on-demand partitions, staying nimble as life updates.save pinOpen in 3D Planner Processing... Final TakeawayThe DLF New Town Heights 2 floor plan reads like a modular protocol, where rooms negotiate time, attention, and light. Its variations—two-bedroom splits, corner living, and compact studio spins—suggest how future apartments will prioritize flow over sheer area. In my experience, the smartest homes of the future won’t be larger—only more intentional, and what I keep seeing in my projects is that precise storage and sightlines quietly rewrite daily behavior.Convert Now – Free & InstantPlease check with customer service before testing new feature.Free floor plannerEasily turn your PDF floor plans into 3D with AI-generated home layouts.Convert Now – Free & Instant