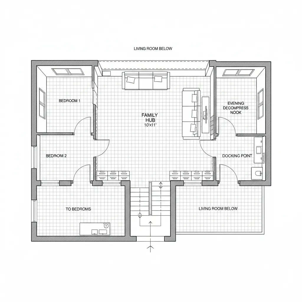
Four-Bedroom Home Plans, Read as Future Protocol: A designer’s quiet forecast for how four-room configurations will rewrite daily rhythmsField Notes by L. ArmitageMar 05, 2026Table of ContentsAxis-Split Primary Suite + Three Secondary RoomsCentral Loft as Family Sync PointFront Flex Room + Rear Family CoreFree Room PlannerDesign your dream room online for free with the powerful room designer toolStart for FREEWhen I study four-bedroom floor plans, tomorrow folds quietly into today. a floor layout that understands future routines feels rare, and yet demand is rising—NAHB reports multi-bedroom homes remain a core preference as families hybridize work and life. The future is loading, and I’ve already seen how this home plan becomes a platform for evolving living patterns.Axis-Split Primary Suite + Three Secondary RoomsDesign Logic: A clear axis separates a 12’×16’ primary suite from three compact rooms, supporting low-friction routines and hybrid family cycles. Flow: Circulation bands run parallel to the axis, letting morning reset scripts execute without collisions. Sightlines: A buffered threshold softens views from kitchen to hallway, keeping visual hierarchy calm. Storage: Linen towers and a wall-depth pantry act as caching architecture for daily micro-routine transitions. Furniture Fit: Queen bed clearance respects a 36" offset; kids’ desks align to window bays like a spatial API. Verdict: This split stabilizes quiet-zone needs while keeping second-space productivity near but not noisy.save pinOpen in 3D Planner Processing... Central Loft as Family Sync PointDesign Logic: A 10’×11’ loft becomes the family sync point, translating second-space productivity into shared cadence. Flow: Stair arrival meets a clean grid, directing paths to rooms and an evening decompress nook. Sightlines: Partial-height rails curate UI layers—glimpses to living room, no glare to bedrooms. Storage: Built-in credenza and under-stair drawers serve as caching for devices and seasonal kits. Furniture Fit: Modular sofa depth stays within 36" traffic bands; a slim table docks like an API endpoint. Verdict: The loft binds cycles without noise, letting hybrid routines scale across weekdays and weekend quiet cycles.save pinOpen in 3D Planner Processing... Front Flex Room + Rear Family CoreDesign Logic: A front flex room pivots between guest suite and studio, giving sensory bandwidth to changing needs. Flow: Entry threshold buffers the flex door from the main living axis, keeping process clean. Sightlines: From dining to yard, lines compress then release, forming a gentle visual hierarchy. Storage: Mud bench cubbies and wall niches become a caching spine for daily bags and sport kits. Furniture Fit: 72" sofa aligns to window grid; dining table spans 84" without breaking circulation bands. Verdict: This front-rear configuration anticipates micro-routine transitions and holds space for future role shifts.Four-bedroom configurations, read as layout and spatial setup, are less about count and more about rhythm. The floor layout becomes a living pattern, quiet but decisive, ready for the next three to five years of hybrid life.save pinOpen in 3D Planner Processing... Start for FREEPlease check with customer service before testing new feature.Free Room PlannerDesign your dream room online for free with the powerful room designer toolStart for FREE