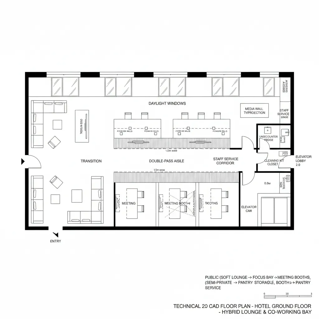
Ground Floor as Interface: Designing 3-star hotel ground floors for near-future lifestyles and operational clarityField-Forward SpatialistJan 21, 2026Table of ContentsSplit-Core Lobby + Sidecar CaféLooped Circulation + Micro Retail NicheHybrid Lounge + Co-working Bay## Final TakeawayFree floor plannerEasily turn your PDF floor plans into 3D with AI-generated home layouts.Convert Now – Free & InstantThe future presses in while current lobby bottlenecks and underutilized edges still trip my clients; hospitality is an operating system that needs cleaner inputs. AIA reports continued demand for flexible mixed-use ground levels, and I read that as a directive for 3 star hotel ground floor plans: fewer dead zones, more adaptive nodes. In these layouts, the interface between arrival, dwell, and service becomes the early code of tomorrow’s guest behaviors. spatial reasoning toolkitSplit-Core Lobby + Sidecar CaféDesign Logic:Arrival and linger split like parallel threads—front desk central, café stitched to the quieter edge; future guests work and wait in the same latency-friendly zone.Flow:Entry → check-in island → seating ring → café queue → elevators; service corridor runs behind like a hidden process bus.Sightlines:Front desk anchors the UI; café glow pulls peripheral attention; clear elevator beacons reduce cognitive load.Storage:Backwall millwork caches POS, linens, and smallwares; under-bench drawers act as quick-access buffers.Furniture Fit:Modular lounge pieces at 30–34" seat heights; café tables 24–28" diameter to keep throughput nimble.Verdict:This pattern absorbs peak check-in without jitter, preparing the ground level for laptop-era dwell and low-friction hospitality.save pinOpen in 3D Planner Processing... Looped Circulation + Micro Retail NicheDesign Logic:A continuous loop keeps guests moving like a stable algorithm; micro retail becomes a node for impulse needs and off-hour convenience.Flow:Vestibule → reception arc → retail niche → restrooms → elevators → return loop; staff access threads parallel for maintenance.Sightlines:Sightlines stack: reception first, elevators second, retail third; no blind corners means fewer user errors.Storage:Retail backstock is a compact cache; janitor and luggage hold tuck into the loop’s thicker wall segments.Furniture Fit:Slim gondolas ≤18" deep; benches against structure at 16–18" depth; wayfinding pylons within ADA clearance envelopes.Verdict:Loop logic lowers friction and increases dwell quality, ready for five years of micro-needs and late-night self-service.save pinOpen in 3D Planner Processing... Hybrid Lounge + Co-working BayDesign Logic:3-star ground floors absorb work-life convergence; the lounge mutates into an agile co-working bay without feeling corporate.Flow:Entry → soft lounge → focus bay → meeting booth → pantry → elevators; staff path runs behind acoustic baffles like a silent thread.Sightlines:Low partitions set UI layers—public foreground, semi-private midground, private booths background; elevator icons remain legible.Storage:Seat-back pockets and shared lockers act as distributed caches; AV and cleaning kits hide in a linear wall core.Furniture Fit:Worktops at 28–30" with power rails; booths sized like APIs—48–60" wide for two; soft seating with swivel bandwidth.Verdict:This hybrid anticipates nomadic routines, turning the ground floor into a bandwidth-managed commons that ages intelligently.save pinOpen in 3D Planner Processing... ## Final Takeaway3 star hotel ground floor plans should act like firmware, updating guest experience without rebooting the building. With variants from split-core lobby to hybrid co-working lounge, the interface becomes clearer and more intentional, easing both staff workflows and traveler micro-moments. In my experience, the smartest hospitality floors of the future won’t be bigger—only better compiled, and I keep designing toward that.Convert Now – Free & InstantPlease check with customer service before testing new feature.Free floor plannerEasily turn your PDF floor plans into 3D with AI-generated home layouts.Convert Now – Free & Instant