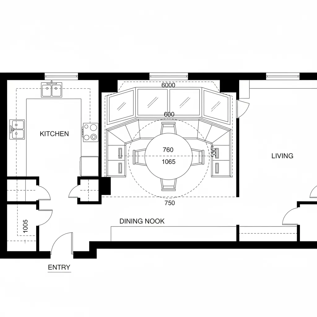
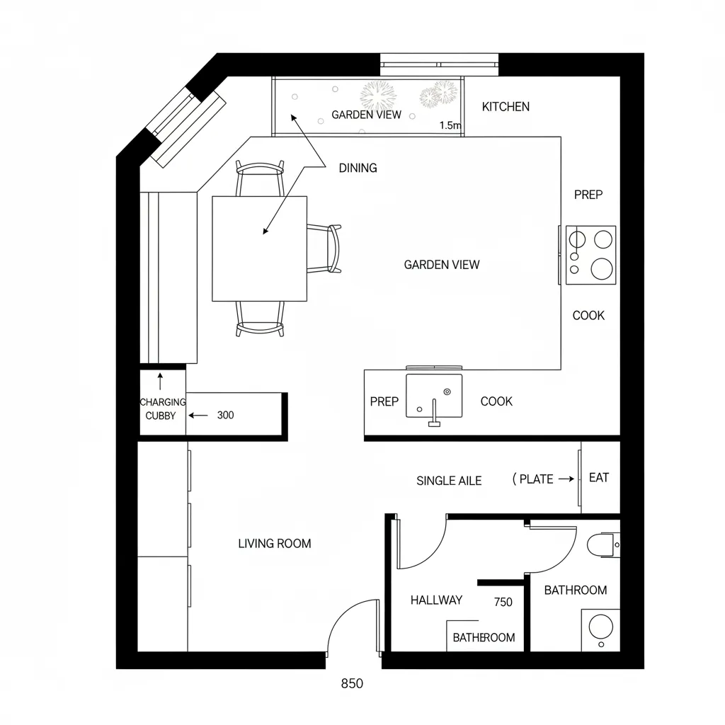
House Plan with Dining Nook: A future-forward read on how a dining nook becomes the operating kernel of a homeMorrow FieldingJan 21, 2026Table of ContentsBay-Window Nook as Social NodeCorner Nook Off the Kitchen SpinePass-Through Nook Between Living and PatioFinal TakeawayFree floor plannerEasily turn your PDF floor plans into 3D with AI-generated home layouts.Convert Now – Free & InstantThe future keeps leaning in while current homes stall on storage, noise, and fragmented routines; I treat a dining nook as the compact kernel that re-compiles daily life. AIA and Houzz trend reports keep pointing to flexible, multi-use eating zones as the real utility nodes in small and mid-size footprints—my clients feel that pressure now, not later. This is where a house plan with dining nook becomes the interface for togetherness, solo focus, and low-latency meals, all in one spatial reasoning toolkit.Bay-Window Nook as Social NodeDesign Logic: A shallow bay carves a micro-chapel for daily rituals, future-proofing daylight dining and heads-down work as households blur schedules.Flow: Entry → kitchen pivot → nook → living; like a clean function call, no cross-traffic, quick returns to prep and conversation.Sightlines: Window-led horizon first, then lateral glance to cooktop; information tiers go view, table, task—calm UI before data-heavy zones.Storage: Bench bases act as cache drawers for linens, board games, chargers; overhead ledge as a lightweight index.Furniture Fit: 30-in round expanding to 42-in, 17-18-in seat height, 24-in knee clearance; cushions as removable modules for maintenance cycles.Verdict: In five years, this becomes the home’s low-energy meeting room, scaling from quiet breakfasts to hybrid work without bandwidth strain.save pinOpen in 3D Planner Processing... Corner Nook Off the Kitchen SpineDesign Logic: I dock the nook at the kitchen’s endcap so heat, smells, and noise taper; future cooking tech wants adjacency without overlap.Flow: Fridge → prep → cook → plate → 90° turn to eat; a predictable pipeline that reduces steps and cognitive friction.Sightlines: Oblique view to living and direct to garden; parents monitor, guests feel included, screens stay peripheral.Storage: Tall pantry on one flank plus a slim charging cubby; clutter drains away like a well-managed buffer.Furniture Fit: 48-in banquette wall with a 30x48-in rectangular table; two side chairs flex capacity without breaking the grid.Verdict: This corner becomes the daily OS: snack station, homework dock, late-night studio—stable under variable loads.save pinOpen in 3D Planner Processing... Pass-Through Nook Between Living and PatioDesign Logic: A threshold table stitches indoor and outdoor life; tomorrow’s micro-gatherings want porous edges and quick mode switches.Flow: Living → nook → sliders → patio; a linear bus that supports party overflow or solitary reading without collisions.Sightlines: Long axis to the yard as primary, lateral to fireplace as secondary; visual bandwidth stays uncluttered for calm focus.Storage: Under-bench weatherproof bins, wall rail for trays; cache nodes placed at both sides of the threshold.Furniture Fit: 34x34-in square with radius corners, 36-in minimum clearance to sliders; stackable chairs as plug-ins.Verdict: Over five years, this pass-through trains the home to host micro-events smoothly, compressing setup time like fast I/O.save pinOpen in 3D Planner Processing... Final TakeawayA house plan with dining nook is less a cute corner and more a living interface that routes energy, time, and conversation with intention. From banquette bays to pass-through thresholds, the dining nook becomes a flexible dining area, a workspace, and a social buffer—one compact protocol. In my experience, the smartest homes of the future won’t be larger—only more intentional, and the nook is the small command line where daily life compiles.Convert Now – Free & InstantPlease check with customer service before testing new feature.Free floor plannerEasily turn your PDF floor plans into 3D with AI-generated home layouts.Convert Now – Free & Instant