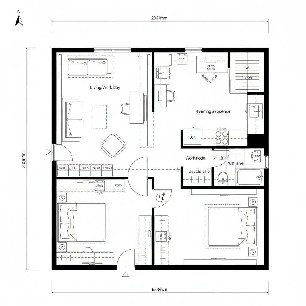
Interlocking Grid Living: 1 & 2 BHK floor plans as a future interface for compact urban lifeAtlas V. RookDec 10, 2025Table of Contents1BHK | Cross-Bay Grid Spine2BHK | Interlocked Lattice with Shared CoreHybrid | Convertible Grid for Work-From-Home RhythmFinal TakeawayFree floor plannerEasily turn your PDF floor plans into 3D with AI-generated home layouts.Convert Now – Free & InstantFuture lifestyles are compressing into clearer systems while current apartments still struggle with fragmentation and noise. According to NAHB data, smaller dwellings have risen in preference among urban buyers, yet layout inefficiencies persist—exactly where a 1 & 2 bhk interlocking grid floor plan becomes a precise instrument. The future is pressing closer, and I can already see its coordinates aligning in these rooms. spatial reasoning toolkit1BHK | Cross-Bay Grid SpineDesign Logic: A central grid spine aligns kitchen, bath, and storage like a linked bus, freeing the living-sleeping bays to adapt to work and rest cycles.Flow: Entry → utility lane → living node → sleeping bay; a crisp instruction sequence that minimizes backtracking and latency.Sightlines: Diagonal view from entry scrapes across living to terrace, while bedroom door sets a secondary hierarchy—privacy as a nested layer.Storage: A 600–800mm deep spine hosts pantry, linens, and vertical modules; cache near use points to cut retrieval time.Furniture Fit: Sofa 78–84" floats off the grid, queen bed 60" aligns with bay width; dining for two nests into a 36" x 60" slot.Verdict: This layout compiles routines into a lean kernel—weekdays feel streamlined, weekends open like expandable tabs over the same framework.save pinOpen in 3D Planner Processing... 2BHK | Interlocked Lattice with Shared CoreDesign Logic: Bedrooms sit on opposite corners, interlocked by a shared service core; future family cycles tolerate change without re-plumbing the code.Flow: Entry gateway → shared core (kitchen/baths) → living hall → split to bedrooms; branching logic that keeps collisions low.Sightlines: Living stretches a clean horizon to balcony; bedroom thresholds are offset, preventing direct sight into private nodes.Storage: Dual-side wardrobes anchor bedrooms; a hallway buffer adds 1.2–1.5m of modular cache—seasonal rotation becomes a controlled process.Furniture Fit: Sectional at 96–108" frames a 5x8 rug; king room accepts 76" bed with 24–28" clearances; kids’ room runs a 30" desk rail.Verdict: The lattice behaves like a resilient network—two parallel lives operate with shared bandwidth and minimal cross-talk over years.save pinOpen in 3D Planner Processing... Hybrid | Convertible Grid for Work-From-Home RhythmDesign Logic: A sliding wall turns the living bay into a daytime studio; grid tracks embed power and data so the space reprograms without friction.Flow: Morning: kitchen → work node → micro-break balcony; evening: fold wall → social cluster—an IF/THEN routine across the same coordinates.Sightlines: Low partitions keep UI clarity: work zone sees daylight, social zone sees depth; bedroom sightlines stay sandboxed.Storage: Overhead runners and under-bench drawers act as tiered cache; 70–90L modules label by task—files, gear, linens.Furniture Fit: A 48" sit-stand desk docks to the rail; ottoman coffee table flips to bench; Murphy wall at 18" depth clears circulation.Verdict: This convertible grid absorbs new habits—hybrid work, short-term guests, micro-hobbies—without rewriting the whole spatial OS.save pinOpen in 3D Planner Processing... Final TakeawayThe 1 & 2 bhk interlocking grid floor plan reads like clean code: rooms become modules, routines compile faster, and privacy threads remain stable. Its semantic variants—lattice layout, shared core planning, convertible grid—let small homes act bigger without bloating. Long-tail patterns like split-bedroom planning and grid-based storage continue to prove their durability. In my experience, the smartest homes of the future won’t be larger—only more intentional.Convert Now – Free & InstantPlease check with customer service before testing new feature.Free floor plannerEasily turn your PDF floor plans into 3D with AI-generated home layouts.Convert Now – Free & Instant