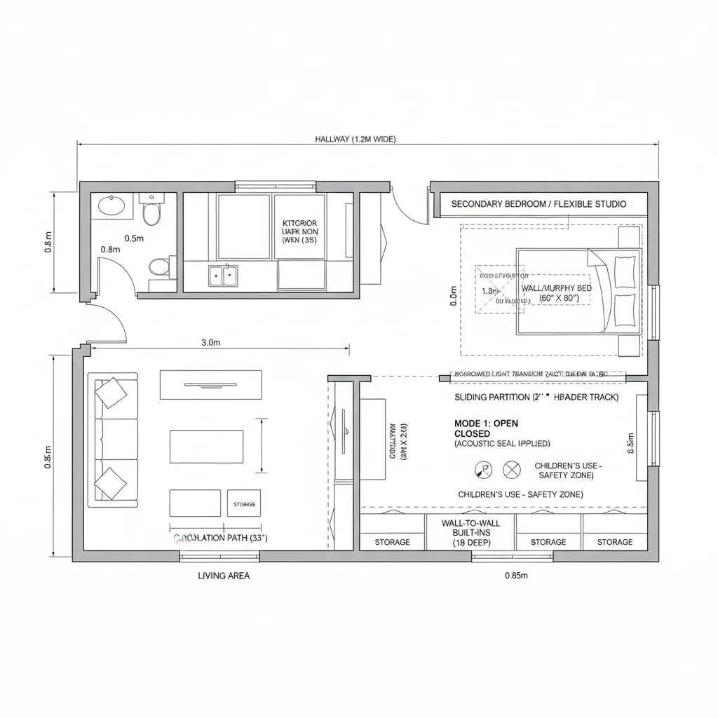
Lodha Palava Casa Clara — 1089 sq ft, Future-Ready Floor Plan: An American residential designer reads an Indian unit like tomorrow’s interfaceHorizon Weaver, AIAJan 21, 2026Table of ContentsDual-Aspect Living Core with Split Private WingConvertible Second Bedroom + Sliding Partition StudioKitchen as Command Line + Balcony as Recovery Stack## Final TakeawayFree floor plannerEasily turn your PDF floor plans into 3D with AI-generated home layouts.Convert Now – Free & InstantThe future presses in where family bandwidth and commute fatigue strain today’s routines, and I read this 1089 sq ft layout as early code for calmer living. Industry keeps whispering the same truth—AIA surveys show clients prioritize adaptability and daylight over square footage. Here, the lodha palava casa clara 1089 sq ft floor plan sits at the hinge of needs and next moves, and I work it like a system upgrade. spatial reasoning toolkitDual-Aspect Living Core with Split Private WingDesign Logic: A dual-aspect living-dining core anchors social bandwidth while bedrooms split to opposite sides, future-proofing privacy for hybrid work and multigenerational rhythms.Flow: Entry → drop zone → living axis → dining node → kitchen loop; private branch bifurcates to primary suite and secondary room, like parallel threads avoiding collisions.Sightlines: From door, a layered vista: low media wall → balcony aperture → cross-light; bedrooms conceal thresholds, keeping UI hierarchy clean and calm.Storage: Perimeter millwork becomes cache: entry tall pantry, dining credenza, under-bed drawers; a linen stack near bath stabilizes daily throughput.Furniture Fit: Sofa 84" with 36" aisle, table 72" x 36", queen bed 60" with 30" clear; each dimension respects the API of circulation and balcony doors.Verdict: The core behaves like a resilient server, hosting gatherings while side wings handle focused tasks—stable for five years of mixed home-office life.save pinOpen in 3D Planner Processing... Convertible Second Bedroom + Sliding Partition StudioDesign Logic: The secondary room shifts between guest, studio, and kids’ sleep lab; a full-height sliding partition lets it fuse with the living area, scaling social capacity on demand.Flow: Day: partition open → desk bay active → living expands; Night: partition close → Murphy bed deploys → acoustic seal—commands run without conflict.Sightlines: When open, sightlines step from kitchen edge to balcony rail, turning pixels of space into a single panorama; closed, visual noise drops to deep focus mode.Storage: Wall-to-wall 18" deep built-ins act as versioned storage: labeled bins, vertical files, hobby cubbies; overflow parked in ottoman cache.Furniture Fit: Desk 48" x 24", wall bed 60" x 80", partition track with 2" header; clearances maintain 30" paths, keeping latency low for daily toggles.Verdict: This node performs like modular software—updateable without demolition, ready for evolving hobbies, side gigs, and guest cycles.save pinOpen in 3D Planner Processing... Kitchen as Command Line + Balcony as Recovery StackDesign Logic: A straight or L kitchen becomes the command line, pushing routines efficiently to the dining node; the balcony buffers stress, acting as a recovery stack for light and air.Flow: Prep → cook → plate → dine → balcony decompress; tight loops reduce travel time, leaving bandwidth for conversation and quiet.Sightlines: Countertops run under a light rail toward the terrace glow, pulling the eye through layers like a UI breadcrumb trail that promises release at the edge.Storage: 24" base, 15" wall, tall pull-out pantry; balcony planter boxes store herbs—micro-caches that turn meals into seasonal scripts.Furniture Fit: Induction 30", sink 21", fridge 33"; dining keeps 36" circulation; balcony chairs 22" footprint to preserve airflow and evening rituals.Verdict: The kitchen and terrace act as paired engines—one compiles daily nutrition, the other debugs mood—together shaping sustainable routines for the next five years.save pinOpen in 3D Planner Processing... ## Final TakeawayThe lodha palava casa clara 1089 sq ft floor plan reads like a compact operating system where rooms are commands and habits become architecture. Its two-bedroom configuration and convertible studio behavior echo the future’s demand for adaptable, daylight-forward living. In this plan—and its semantic siblings across mid-size urban units—I see smaller footprints delivering bigger agency. In my experience, the smartest homes of the future won’t be larger—only more intentional.Convert Now – Free & InstantPlease check with customer service before testing new feature.Free floor plannerEasily turn your PDF floor plans into 3D with AI-generated home layouts.Convert Now – Free & Instant