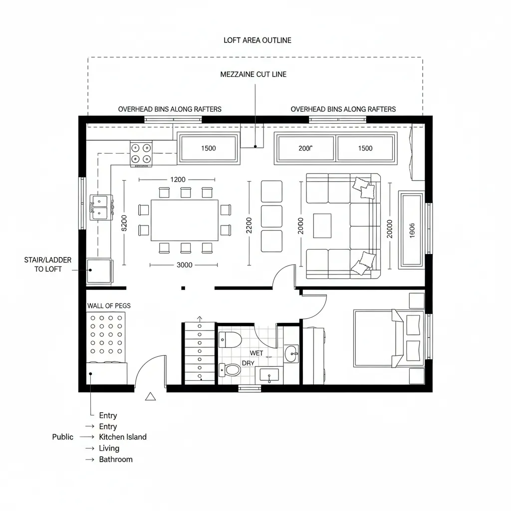
Log Cabin Floor Plans for 1 & 2 Bedroom Futures: Reading timber layouts as early code for tomorrow’s livingNorthwood Interface StudioDec 13, 2025Table of ContentsOne-Bedroom Linear SpineOne-Bedroom + Flex LoftTwo-Bedroom Cross-Axis Cabin## Final TakeawayTable of ContentsOne-Bedroom Linear SpineOne-Bedroom + Flex LoftTwo-Bedroom Cross-Axis Cabin## Final TakeawayFree floor plannerEasily turn your PDF floor plans into 3D with AI-generated home layouts.Convert Now – Free & InstantFuture living is pressing in while today’s cabin dwellers still fight storage droughts, thermal inefficiency, and awkward circulation. Industry data keeps echoing this: AIA surveys show homeowners are prioritizing adaptable plans and resilient materials. I look at 1 & 2 bedroom log cabins floor plans as compiled syntax for how we’ll work, decompress, and connect—an interface for what’s next. spatial reasoning toolkitOne-Bedroom Linear SpineDesign Logic: A single-loaded corridor aligns kitchen–living, then slides to a pocketed bedroom; timber massing reads like a clean instruction set ready for hybrid work-rest routines.Flow: Entry → mud alcove → galley kitchen → living bay → sliding partition → bedroom → bath; a clear sequence minimizing thermal loss at the edges.Sightlines: Front-to-back axis maintains a primary vista to the deck; secondary cross-views layer from stove to hearth to window as a UI of comfort signals.Storage: Full-height pantry + bench drawers + bed plinth; think cache tiers near points of use to reduce retrieval latency.Furniture Fit: 84" sofa, 30" dining round, queen bed centered with 30" clear both sides—API limits that keep circulation bandwidth open.Verdict: For solo or couple living, this spine compiles into five-year reliability: low energy drift, high adaptability, and quiet cognitive load.save pinOne-Bedroom + Flex LoftDesign Logic: The loft is a scalable module: sleep below, create above; the vertical stack anticipates remote work and seasonal hosting.Flow: Entry → kitchen island node → living core → ladder/stair to loft → bedroom → bath; decision points feel like branching logic without chaos.Sightlines: Loft overlooks living like a dashboard; diagonal views to glazing keep the interface readable, with privacy gradients at the bedroom.Storage: Stair treads as drawers, overhead bins along rafters, a wall of pegs; a distributed cache balancing frequency and volume.Furniture Fit: 60" desk in loft, modular ottoman below, full bed offset to window—future habits plug in without collisions.Verdict: The loft grants headroom for changing routines; I see it carrying creative bandwidth while keeping the ground plane calm.save pinTwo-Bedroom Cross-Axis CabinDesign Logic: A central hearth node splits private wings; this cross-axis anticipates multi-generational rhythms and downtime overlap without interference.Flow: Entry airlock → open kitchen/living → left bed + bath → right bed + bath → deck; parallel threads run without packet loss.Sightlines: Hearth as UI anchor; long views to the treeline, short views to doors—clear status indicators of who’s home and what’s active.Storage: Dual wall wardrobes, shared linen hub, deep bench by the entry; cached zones reduce re-routing across the plan.Furniture Fit: 72" dining, sectional capped at 96", two queens with 36" side clearances; dimensions respect thermal and circulation APIs.Verdict: For families or two-housemate setups, this plan future-proofs coexistence—quiet edges, warm core, and resilient daily scripts.save pin## Final Takeaway1 & 2 bedroom log cabins floor plans are not rustic nostalgia; they’re operating systems for resilient living. Variants like lofted studios, split-wing two-bedrooms, and linear spines show how compact footprints negotiate work, rest, and nature without noise. In my experience, the smartest cabins of the future won’t be larger—only more intentional, and what I keep seeing in my projects is small spatial decisions quietly rewriting how people live.Convert Now – Free & InstantPlease check with customer service before testing new feature.Free floor plannerEasily turn your PDF floor plans into 3D with AI-generated home layouts.Convert Now – Free & Instant