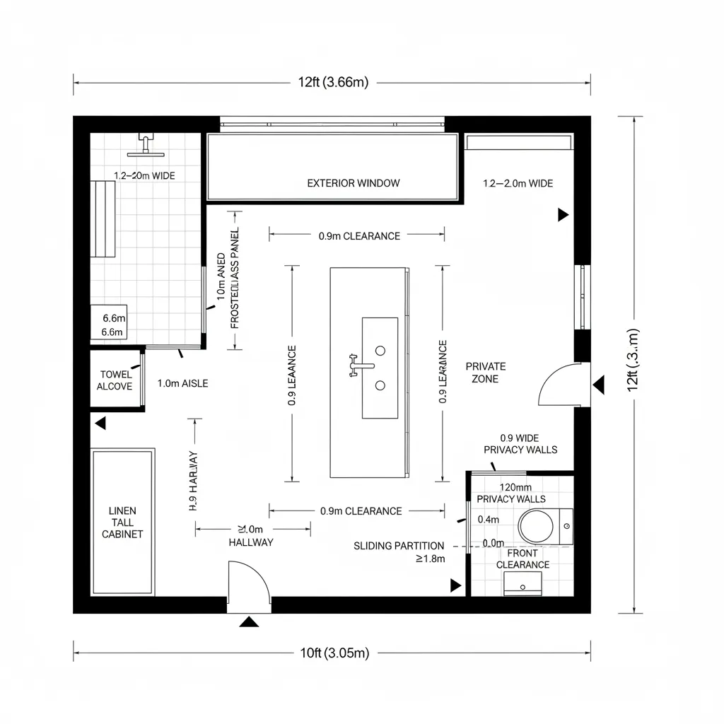
Master Bathroom 12x10 as Future Interface: A designer’s view on a 12' x 10' primary bath that compiles tomorrow’s routinesAvery NorthJan 21, 2026Table of ContentsLayout A Linear Wet Wall + Dry AxisLayout B Split Zone with Center Island VanityLayout C Wet Room Envelope + Dry Lounge NicheFinal TakeawayFree floor plannerEasily turn your PDF floor plans into 3D with AI-generated home layouts.Convert Now – Free & InstantFuture living will demand condensed rituals to run smoother, while today’s homes still battle cluttered vanities and inefficient circulation; AIA and Houzz trend reports show primary baths growing in utility layers, not just in square footage. In that frame, a master bathroom floor plan 12 10 becomes a quiet engine that recalibrates mornings and nights—future is approaching, and I’m already reading its code through this room. spatial reasoning toolkitLayout A: Linear Wet Wall + Dry AxisDesign Logic:All plumbing stacks on one long wall, letting the dry axis host dressing and tech‑mirror rituals—aligned with rising water‑efficiency and easier maintenance trends.Flow:Entry → vanity → shower → toilet niche, then pivot back to towel warmers; the path feels like an instruction sequence minimizing backtracking.Sightlines:First glance meets the vanity and daylight; shower glass offsets deeper, keeping privacy nodes intact for the toilet.Storage:48" vanity with vertical medicine towers and a shallow linen run—cache sized for five‑day cycles, not seasonal overflow.Furniture Fit:60" shower, 18" toilet clearance each side, 42" front clearance—APIs that keep movement latency low.Verdict:This configuration reads as a stable protocol: efficient to service, clear to navigate, and ready for sensor‑based fixtures over the next five years.save pinOpen in 3D Planner Processing... Layout B: Split Zone with Center Island VanityDesign Logic:A central floating vanity becomes the hub, splitting wet and dry programs—anticipating multitask mornings and shared schedules without collision.Flow:Entry → island vanity (dual stations) → left to shower, right to toilet alcove; users branch like parallel threads, then reconverge at storage.Sightlines:Low-height island keeps horizon open; frosted panels guard intimate nodes while preserving depth perception.Storage:Island drawers for high-frequency items, perimeter tall cabinet for linens—tiered cache; quick-access vs archival.Furniture Fit:36" circulation rings around vanity, 48" shower with bench, 24" towel alcove—precise constraints keep lag minimal.Verdict:A social yet private topology that can absorb smart lighting scenes and adaptive mirrors as routines evolve.save pinOpen in 3D Planner Processing... Layout C: Wet Room Envelope + Dry Lounge NicheDesign Logic:Shower and tub merge into one glazed wet room, leaving a dry niche for seating and skincare—futureproof for steam and wellness cycles.Flow:Entry → dry lounge bench → slide into wet envelope → exit near heated rail; a looped path like a refresh command.Sightlines:Translucent glass blurs water activity, prioritizing calm UI layers; vanity stays outside for clear task focus.Storage:Built-in wet-room ledges plus external tall pantry—separating humidity-prone cache from stable inventory.Furniture Fit:60" tub under window, 48" shower bay, 30" lounge bench; clearances mapped to comfort bandwidth, not excess.Verdict:This layout turns the 12x10 shell into a wellness interface—durable finishes and zoned ventilation ready for the next-gen fixtures.save pinOpen in 3D Planner Processing... Final TakeawayA master bathroom floor plan 12 10 becomes a compact operating system for daily rituals, where wet and dry zones compile into lucid routines. Variants like linear wet walls, central islands, and wet-room envelopes show how a 12x10 primary bath can scale with tech without losing human cadence. In my experience, the smartest homes of the future won’t be larger—only more intentional, and this is the interface that proves it.Convert Now – Free & InstantPlease check with customer service before testing new feature.Free floor plannerEasily turn your PDF floor plans into 3D with AI-generated home layouts.Convert Now – Free & Instant