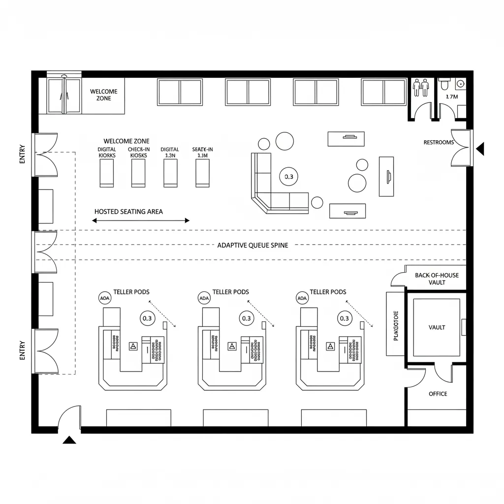
Modern Bank Floor Plan: A spatial interface for trust, speed, and future-ready serviceAtlas M. RoJan 21, 2026Table of ContentsDual-Zone Lobby with Adaptive Queue SpineCommunity Consultation Ring with Semi-Private CellsBack-of-House Secure Spine with Micro-Services NodesFinal TakeawayFree floor plannerEasily turn your PDF floor plans into 3D with AI-generated home layouts.Convert Now – Free & InstantThe future of financial rituals is pressing against today’s branch frustrations—long queues, opaque paths, and security that feels like friction. spatial reasoning toolkit is how I prototype clarity: a modern bank floor plan becomes the operating system for trust. AIA and NAHB surveys keep showing users want fewer steps and more transparent zones; I design for that pressure, so the lobby doesn’t just greet—it orchestrates what’s next. The modern bank floor plan is my way to edit latency out of a visit and compile confidence into every movement.Dual-Zone Lobby with Adaptive Queue SpineDesign Logic:Two bands—welcome and transaction—run in parallel, anticipating self-service growth and human support as synchronized threads.Flow:Entry → digital check-in → queue spine → teller pods; a linear algorithm with branch conditions for priority clients.Sightlines:Transparent dividers keep sight from door to pods, while privacy baffles act like dimmed layers for PIN moments.Storage:Under-counter cash cassettes and a back-of-house vault as high-capacity cache, with secure audit trails allocating space like memory.Furniture Fit:Modular teller islands sized to ADA clearances; kiosks spaced as nodes with 48–60 inches between for ergonomic throughput.Verdict:This interface scales with digital adoption, sustaining clarity and trust as queue bandwidth flexes over the next five years.save pinOpen in 3D Planner Processing... Community Consultation Ring with Semi-Private CellsDesign Logic:A perimeter ring of glass-front consult rooms evolves from products to advisory, matching future banking as a service platform.Flow:Lobby handoff → hosted seating → assigned consult cell → document station; a guided flow reducing context switching.Sightlines:Softly frosted vision planes offer hierarchy: staff can monitor, clients feel seen but not exposed—UI layers managed by opacity.Storage:Sidewall millwork for files and devices; secure cloud lockers mirrored by physical lock bays—redundant cache for compliance.Furniture Fit:Round tables (42–48 inch) prevent power imbalances; integrated screens mounted at eye level, API-like alignment of posture and data.Verdict:Advisory becomes the branch’s main feature, and this ring pattern lets conversations scale without noise or delay.save pinOpen in 3D Planner Processing... Back-of-House Secure Spine with Micro-Services NodesDesign Logic:A protected corridor stitches vault, cash room, and staff hub—micro-services distributed for resilience and speed.Flow:Staff entry → secure spine → vault checkpoint → cash prep → service dispatch; a gated sequence akin to permissioned protocols.Sightlines:Controlled visibility: clerestory glass for daylight, no direct view to vault doors—security as hidden UI, signals without exposure.Storage:Time-lock vault, smart safes, and RFID inventory—tiered cache that minimizes retrieval latency and audit drift.Furniture Fit:Workstations with cable management and anti-fatigue zones; counters at 36–42 inches set to the rhythm of counting and compliance.Verdict:This spine anticipates tighter regulations and faster cash cycles, keeping operations steady while the front end evolves.save pinOpen in 3D Planner Processing... Final TakeawayA modern bank floor plan is a living interface where transparency, security, and speed negotiate in real time. Variants like open lobby spines, consultation rings, and secure back corridors are the semantic set that keeps service legible as digital-first behavior expands. In my experience, the smartest branches of the future won’t be bigger—only more intentional, and designed like software you can walk through.Convert Now – Free & InstantPlease check with customer service before testing new feature.Free floor plannerEasily turn your PDF floor plans into 3D with AI-generated home layouts.Convert Now – Free & Instant