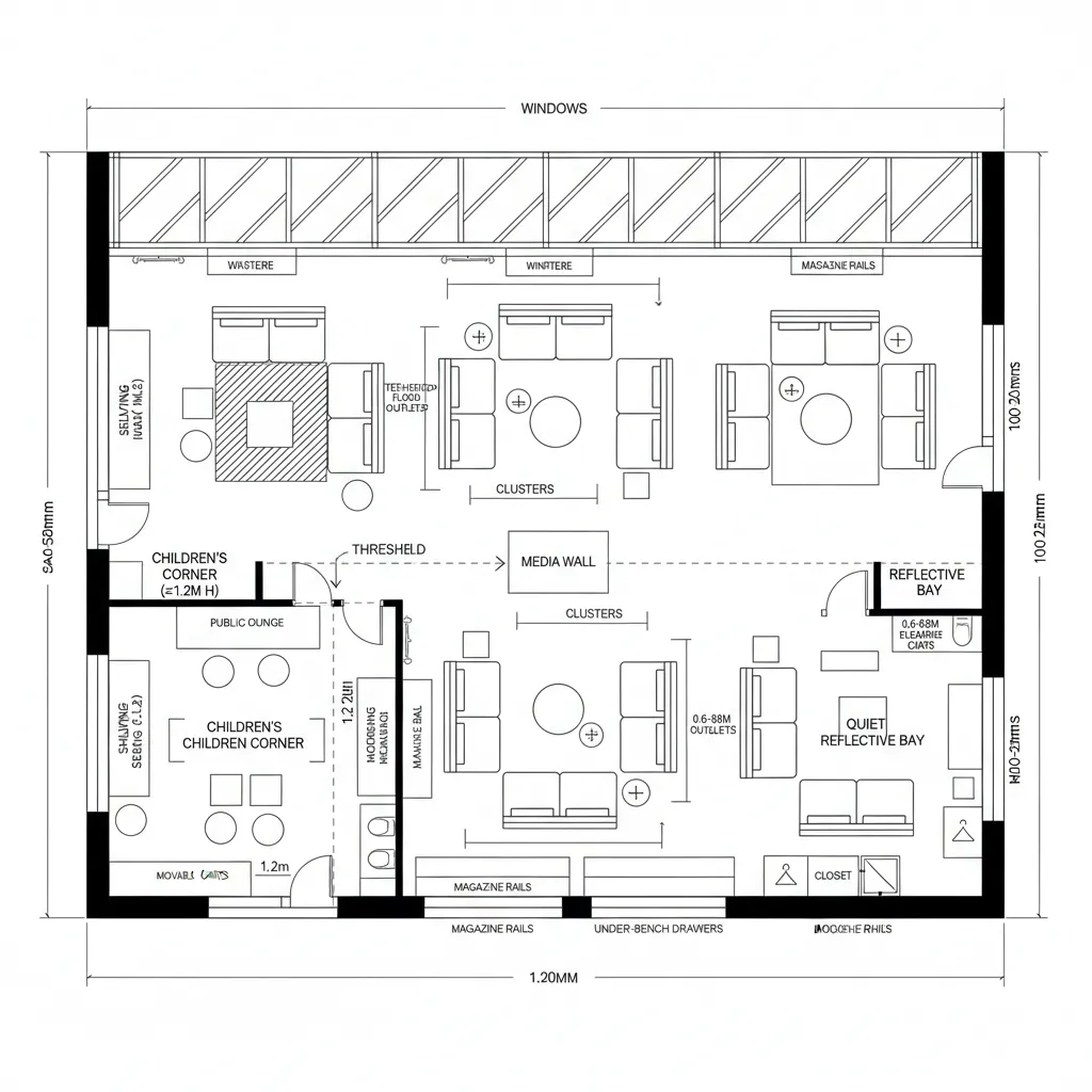
Modern Library Floor Plan: A futurist designer’s lens on how a library becomes a lifestyle interfaceJ. Orion HaleJan 21, 2026Table of ContentsDistributed Reading SpineHybrid Studio PodsCivic Living RoomFinal TakeawayFree floor plannerEasily turn your PDF floor plans into 3D with AI-generated home layouts.Convert Now – Free & InstantFuture habits—fragmented attention, hybrid work, and quiet bandwidth needs—are colliding with yesterday’s reading rooms. As AIA reports steady growth in institutional renovations, the signals are clear: libraries are being recompiled for multitasking minds, and the modern library floor plan must act like a responsive interface. The future is approaching fast, and I’ve already seen its contours in how my clients seek acoustic control, flexible pods, and ambient sightline governance. spatial reasoning toolkitDistributed Reading SpineDesign Logic: A central, low-slung shelving spine runs like a data bus, threading quiet nooks and collaborative nodes; it suits the trend toward modular learning and self-paced study.Flow: Entry → orientation table → spine corridor → branch alcoves → end-cap lounge; movement feels like a clean instruction sequence with predictable forks.Sightlines: Shelves at 48–54 inches keep horizons open, enabling staff oversight while granting users micro-privacy layers.Storage: High-density stacks on the spine; alcove cache for personal bags, plus concealed media drawers near the lounge for quick retrieval.Furniture Fit: Narrow tables (24–28 inches deep), soft-edge chairs, and plug-in rails act like APIs allowing laptops, tablets, and print to coexist without collisions.Verdict: Over five years, this spine will scale like firmware—easy to patch with seating swaps and sensor upgrades without breaking reading flow.save pinOpen in 3D Planner Processing... Hybrid Studio PodsDesign Logic: Glass-front pods serve video calls, micro-workshops, and tutoring—reflecting NAHB-adjacent trends toward flexible, multi-use interiors.Flow: Main hall → pod queue → occupancy sensors → interior task zone → release to commons; a loop that manages attention and acoustic integrity.Sightlines: Translucent films create UI-like layers: silhouette visibility for safety, opacity at eye level for focus.Storage: Pod-side lockers act as session caches; shared equipment bay stores microphones, tablets, and whiteboard supplies for rapid provisioning.Furniture Fit: 36-inch round tables or compact benches, adjustable arms for displays—tight tolerances that respect ergonomic APIs across age groups.Verdict: Pods future-proof the library as a civic workstation, absorbing noise peaks and distributing capability like edge computing.save pinOpen in 3D Planner Processing... Civic Living RoomDesign Logic: A soft, flexible lounge near natural light becomes the interface for community events, quiet reading, and contemplative sociality—mirroring Zillow’s insight that amenity-rich spaces drive longer dwell time.Flow: Threshold → soft seating clusters → media wall → children’s corner → reflective bay; sequential zones tune energy like stepping down processor speed.Sightlines: Low furniture islands, clear perimeters, and a long axis to windows set an intuitive hierarchy of attention.Storage: Under-bench drawers, magazine rails, and movable carts create a mobile cache that responds to weekly programming shifts.Furniture Fit: Modular sofas at 30-inch depth, lightweight tables, and tethered floor outlets—precision that lets print, devices, and human posture share bandwidth.Verdict: This living room keeps the library human: flexible yet legible, ready for storytime at 10 and quiet inquiry at 2—an adaptable kernel for civic calm.save pinOpen in 3D Planner Processing... Final TakeawayA modern library floor plan must operate like a responsive OS: modular zones, clean sightline logic, and storage behaving as a dynamic cache. In this architecture, reading rooms, studio pods, and civic lounges synchronize to serve hybrid learning and slow focus. The floor plan becomes a living interface for knowledge, and in my experience, the smartest libraries of the future won’t be larger—only more intentional.Convert Now – Free & InstantPlease check with customer service before testing new feature.Free floor plannerEasily turn your PDF floor plans into 3D with AI-generated home layouts.Convert Now – Free & Instant