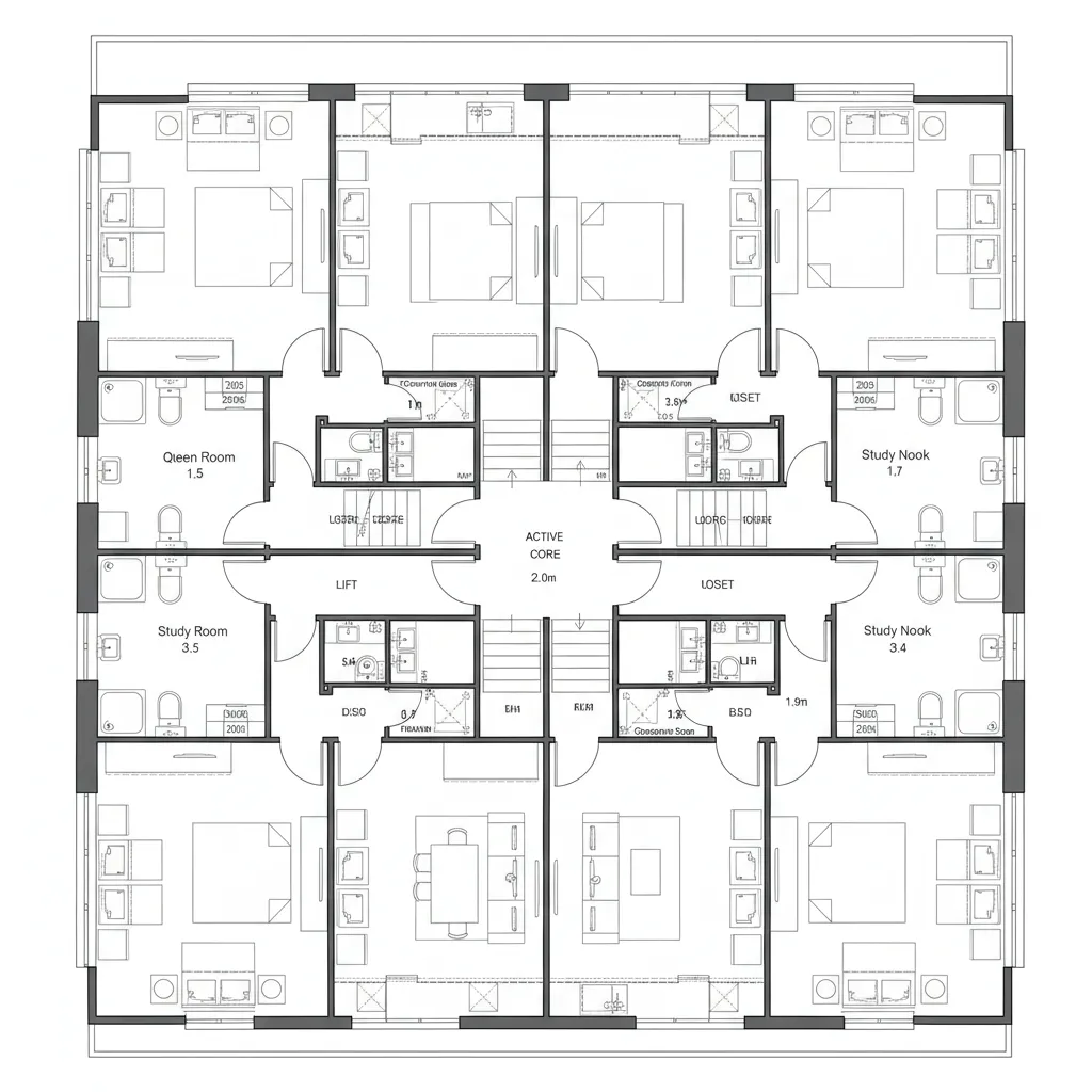
Multi-Storey Layout with Double-Loaded Corridor: Programming vertical life where circulation becomes a bandwidth for future livingAtlas R. QuinJan 21, 2026Table of ContentsLayered Spine with Light WellsMixed-Depth Units as Adaptive PacketsQuiet Edge plus Active CoreFinal TakeawayFree floor plannerEasily turn your PDF floor plans into 3D with AI-generated home layouts.Convert Now – Free & InstantThe future keeps pressing against our doors, while today’s apartments still leak time in inefficient halls and compromised privacy. Industry data hints at a pivot: AIA reports sustained demand for flexible common areas and improved circulation quality as households diversify. In that light, the multi-storey layout with double loaded corridor becomes a pragmatic interface to the near future, and I already see how it compiles daily routines into a cleaner sequence. spatial reasoning toolkitLayered Spine with Light WellsDesign Logic:A central corridor holds the building’s memory; paired atrium voids stitch daylight across floors, turning a utilitarian spine into a sensory clock for future living.Flow:Entry→shared node (mail/parcel)→unit threshold→public-to-private gradient; vertical cores synchronize like threads, minimizing context switching.Sightlines:Corridor captures cross-views to light wells; staggered unit entries prevent visual collisions, UI layers: public glow→semi-private edge→interior calm.Storage:Wall-depth lockers along non-fire sides act as cache; unit vestibules absorb strollers/scooters, keeping bandwidth clear.Furniture Fit:Inside units, 30–36 in entry clearances and modular 60 in turning nodes align with future micro-mobility and robotics docking.Verdict:Light-infused double loading offsets density with orientation—five years on, residents navigate by light rhythms, not numbers.save pinOpen in 3D Planner Processing... Mixed-Depth Units as Adaptive PacketsDesign Logic:Alternating shallow and deep units along the corridor create a jitter-buffer for noise and privacy; future households flex between studio, 1-bed, and co-living pods.Flow:Corridor cadence: service doors cluster near cores, living entries offset; deliveries route short, residents route long—conflicts resolved upstream.Sightlines:Push-pull façades yield diagonal views out, reducing corridor stare; interior sightlines stack: foyer→kitchen node→living field→view port.Storage:In-wall pantries and bed-platform drawers serve as tiered caches; shared floor trash/recycling alcoves keep the main bus unmarred.Furniture Fit:Standardized 9–10 ft modules accept sofa-queen swaps, fold tables, and future docking panels without refactoring the plan.Verdict:By encoding variability at the section level, the building absorbs life updates like software, not renovation.save pinOpen in 3D Planner Processing... Quiet Edge plus Active CoreDesign Logic:Place bedrooms and study nooks on the façade, push kitchens/baths near the corridor to concentrate services—future utilities become a hot aisle/cold aisle strategy.Flow:From lift: active core→acoustic lock at unit entry→deep quiet along the window wall; guest paths never cross sleep bandwidth.Sightlines:Corridor windows align with end views; inside, a long axis frames sky first, hardware second—information hierarchy favors daylight.Storage:Service riser walls thicken for linens, cleaning bots, and seasonal bins; corridor niches accept community share lockers as overflow cache.Furniture Fit:Wall beds align with façade mullions; 24–27 in counter depths and 42 in island clearances anticipate compact appliances and future plug-and-play systems.Verdict:The plan reads like a server room: quiet where cognition happens, dense where utilities hum—sustainable for the next cycle.save pinOpen in 3D Planner Processing... Final TakeawayThe multi-storey layout with double loaded corridor can be more than efficiency math; it can become a lucid interface where circulation equals system bandwidth. With careful flow, calibrated storage, and precise furniture APIs, vertical communities gain clarity without sacrificing comfort. In my experience, the smartest multi-level apartments won’t get bigger—only more intentional, and what I keep seeing in my projects is that small spatial protocols change how people live.Convert Now – Free & InstantPlease check with customer service before testing new feature.Free floor plannerEasily turn your PDF floor plans into 3D with AI-generated home layouts.Convert Now – Free & Instant