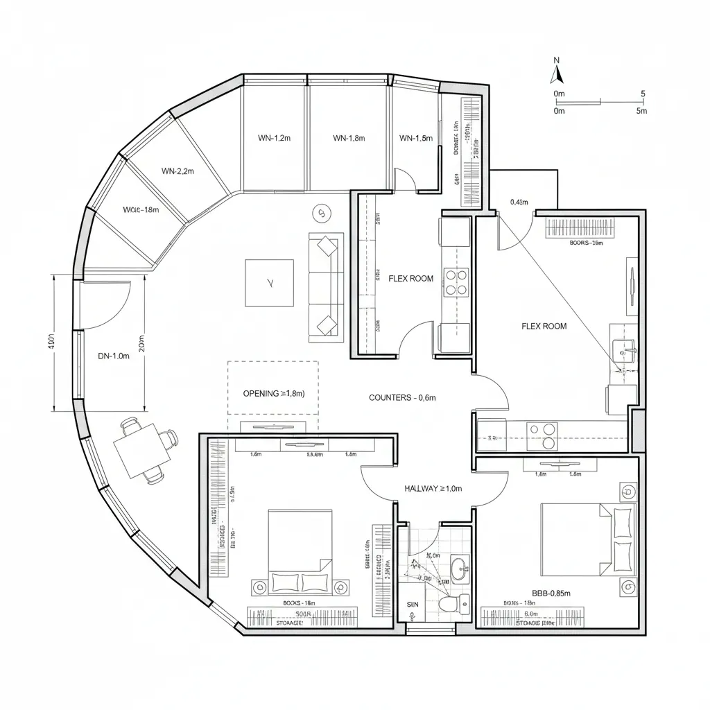
One-Bedroom Modular Futures: Floor plans as the early code of tomorrow’s living interfaceSable K. MerriweatherJan 21, 2026Table of ContentsNorth-South Spine Linear Core with Adaptive ModulesLooped Circuit Perimeter Walk with Pocket RoomSplit Horizon Daylight Duplex within One LevelFinal TakeawayFree floor plannerEasily turn your PDF floor plans into 3D with AI-generated home layouts.Convert Now – Free & InstantFuture living is shrinking the waste and expanding the intention, while today’s renters wrestle with noise, storage scarcity, and fragmented routines. AIA notes rising demand for flexible, multi-use interiors—proof that the interface of home must evolve. In that light, one bedroom modular homes floor plans feel like compiled code for a near future I already glimpse: small, adaptive, and precise, tuned to bandwidth rather than bulk. spatial reasoning toolkitNorth-South Spine: Linear Core with Adaptive ModulesDesign Logic: A central service spine (kitchen, bath, mech) condenses utility, freeing edges for daylight and modular add-ons as life iterates.Flow: Entry → pocket foyer → galley → living bay → bedroom node; each step an executable instruction with minimal branch misfires.Sightlines: Clear axial read from door to window; partial-height partitions stage layers like UI cards—privacy without losing signal.Storage: Tall pantry, bed-wall wardrobe, toe-kick drawers; a cache hierarchy that keeps hot data accessible and cold data parked.Furniture Fit: 84–96" sofa aligns to window wall; 30" depth media shelf; queen bed floats with 36" clear on two sides; tables fold to 12".Verdict: This spine anticipates five years of micro-mobility living: stable core, swappable edge modules, minimal refactor when routines change.save pinOpen in 3D Planner Processing... Looped Circuit: Perimeter Walk with Pocket RoomDesign Logic: A continuous circulation loop prevents dead ends—like a resilient network—so routines route around congestion.Flow: Entry → living arc → pocket room → bedroom → bath → back to kitchen; one gesture, low latency between nodes.Sightlines: Diagonal reveals splice spaces; glass pocket door acts like a transparency slider, tuning focus from open to private.Storage: Perimeter millwork with variable depth—18" for books, 24" for bins—keeps the loop clean and retrieves fast.Furniture Fit: Modular 60" table pivots from dining to desk; lounge chair on a swivel becomes a UI cursor, pointing to views or work.Verdict: A looped plan supports hybrid work-life—no clog points, just smooth packets moving, future-proof against shifting schedules.save pinOpen in 3D Planner Processing... Split Horizon: Daylight Duplex within One LevelDesign Logic: Program stacks horizontally: bright east for work/living, calm west for sleep—circadian logic baked into the grid.Flow: Morning zone → kitchen island node → flex studio bay → threshold seam → bedroom → en-suite; time-coded motion paths.Sightlines: Long horizon to windows; sidecar niches act as secondary UI panels, keeping peripheral tasks visible yet quiet.Storage: Island with 3-tier drawers, headboard niche, overhead lockers at 14" depth; tidy caches, no overflow packets.Furniture Fit: 30" clearances around island; wall-mounted consoles free floor bandwidth; sleeper-sofa as emergency redundancy.Verdict: The split horizon reads like a calm OS: daylight orchestrates priority, and the plan flexes without breaking version control.save pinOpen in 3D Planner Processing... Final TakeawayOne bedroom modular homes floor plans are not about more square footage, but about cleaner instruction sets. Using modular layouts, flexible storage, and precise furniture APIs, the interface of home becomes a responsive operating system for work, rest, and social bandwidth. In my experience, the smartest homes of the future won’t be larger—only more intentional, and what I keep seeing in my projects is how quiet design logic rewires daily life.Convert Now – Free & InstantPlease check with customer service before testing new feature.Free floor plannerEasily turn your PDF floor plans into 3D with AI-generated home layouts.Convert Now – Free & Instant