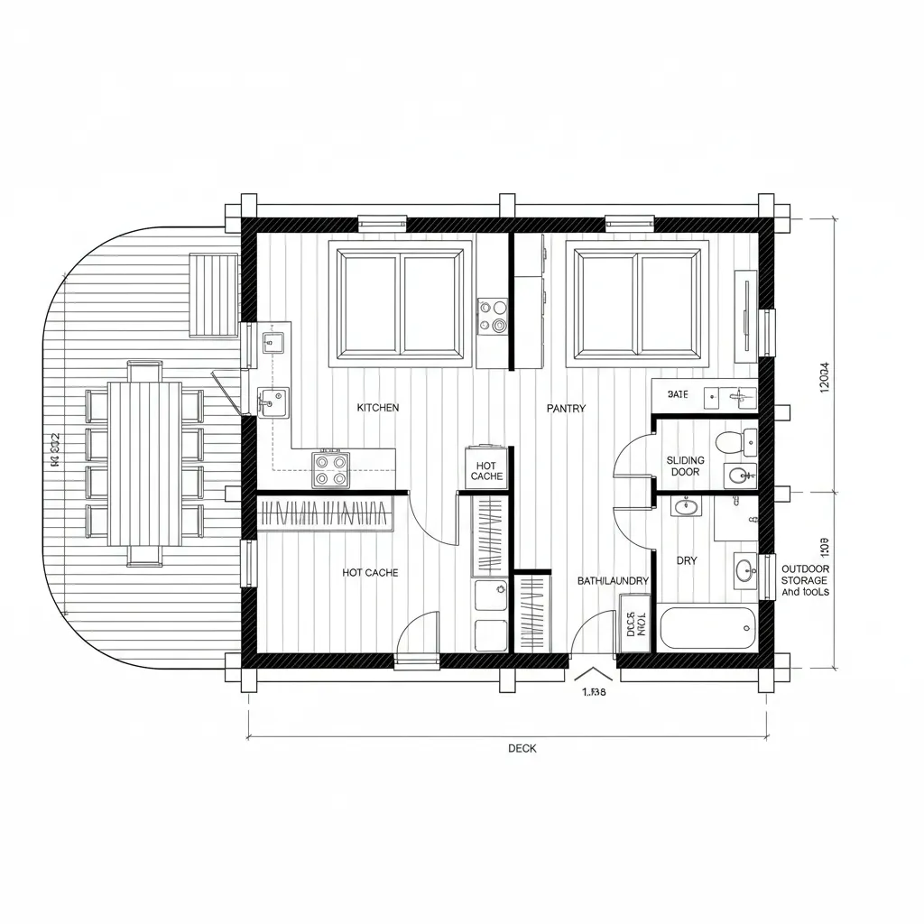
One-Story Log Cabin Floor Plans: Reading a Quiet Future Through Timber, Light, and Program FlowNorthwood Interface StudioJan 21, 2026Table of ContentsTimber Spine + Open HearthSplit Sleep Wing + Quiet Work NookEdge Deck + Wet Core EfficiencyFinal TakeawayFree floor plannerEasily turn your PDF floor plans into 3D with AI-generated home layouts.Convert Now – Free & InstantThe future presses in while my clients still fight today’s frictions—storage that bursts at the seams, sightlines that fragment, and circulation that burns time like fuel. In this moment between now and next, a log cabin becomes an interface for presence. Industry trends show single-level living rising across NAHB surveys, echoing aging-in-place priorities and the desire for simple program flow. I’m looking at 1 story log cabin floor plans as an early codebase for calmer, more intentional habits. spatial reasoning toolkitTimber Spine + Open HearthDesign Logic: A central hearth aligns heat, social gravity, and structural rhythm—future living favors fewer nodes and stronger signals.Flow: Entry → mud zone buffer → kitchen island → living hearth → deck; a clean execution path with minimal context switching.Sightlines: From door to fire to forest; UI layers move from task to calm, with the horizon as primary header.Storage: Flanking built-ins act as cache near the hearth; deep drawers under benches absorb seasonal gear without visual noise.Furniture Fit: Island at 36" height, sofa depth 38", dining at 72" x 36"; API constraints that keep movement latency low.Verdict: Over five years, this spine resists clutter and sustains rituals—heat, food, conversation—like a stable protocol.save pinOpen in 3D Planner Processing... Split Sleep Wing + Quiet Work NookDesign Logic: Bedrooms offset from public core minimize cross-talk; future work rhythms need micro-separation without walls multiplying.Flow: Living core → short hall as debounce → primary suite left, guest room right → pocket office tucked off hall.Sightlines: Translucent thresholds offer status visibility (occupied/free) while preventing information overload.Storage: Hall wardrobes as fast-access cache; vertical closets with modular shelves scale like cloud storage for linens and gear.Furniture Fit: Queen bed 60" x 80" with 30" clear per side; desk at 48" x 24" near window; ergonomic clearances as hard limits.Verdict: The plan quietly routes energy: rest cycles stay clean, work stays local, and guests feel sandboxed yet connected.save pinOpen in 3D Planner Processing... Edge Deck + Wet Core EfficiencyDesign Logic: Wet spaces clustered reduce plumbing latency and simplify maintenance; deck forms an outdoor buffer and bandwidth boost.Flow: Kitchen → pantry → bath/laundry → exterior utility door → wraparound deck; a loop that compresses chores and expands leisure.Sightlines: Kitchen to deck sightline acts as a notification bar—weather, light, wildlife as real-time signals.Storage: Tall pantry with pull-outs as hot cache; laundry towers and overhead bins for bulk; outdoor chest for firewood and tools.Furniture Fit: Pantry modules 24" deep, laundry stack 30" x 34", deck dining at 84" x 40"; dimensions protect flow integrity.Verdict: Over time, the wet core saves resources while the deck negotiates inside/outside, turning daily tasks into fluid routines.save pinOpen in 3D Planner Processing... Final Takeaway1 story log cabin floor plans read like a lean operating system: fewer screens, stronger signals, and room for rituals. Variants—single-level mountain cabins, compact timber retreats, aging-in-place layouts—translate future behaviors into simple paths. Long-tail ideas like “open-hearth living plan” and “clustered wet-core layout” keep maintenance low while increasing presence. In my experience, small spatial decisions—flow, sightlines, cache—quietly rewrite how my clients live.Convert Now – Free & InstantPlease check with customer service before testing new feature.Free floor plannerEasily turn your PDF floor plans into 3D with AI-generated home layouts.Convert Now – Free & Instant