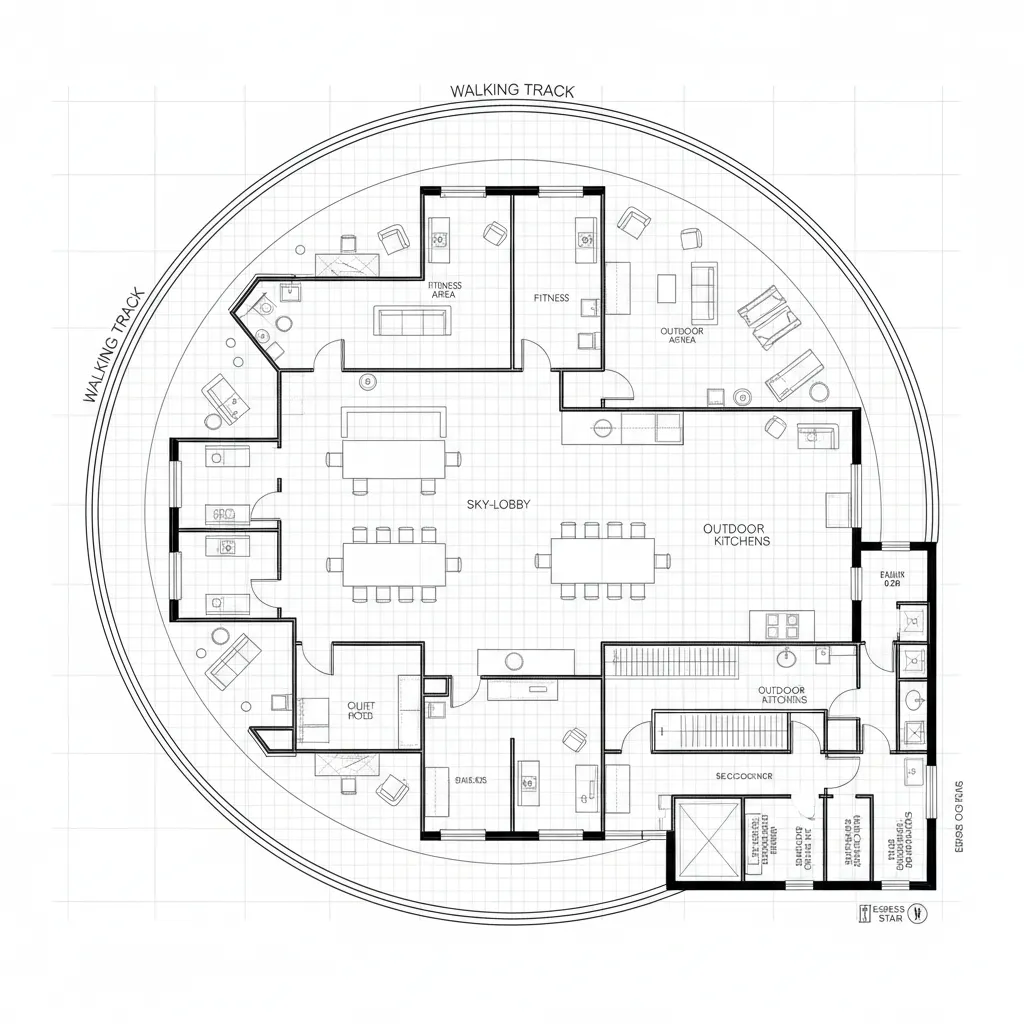
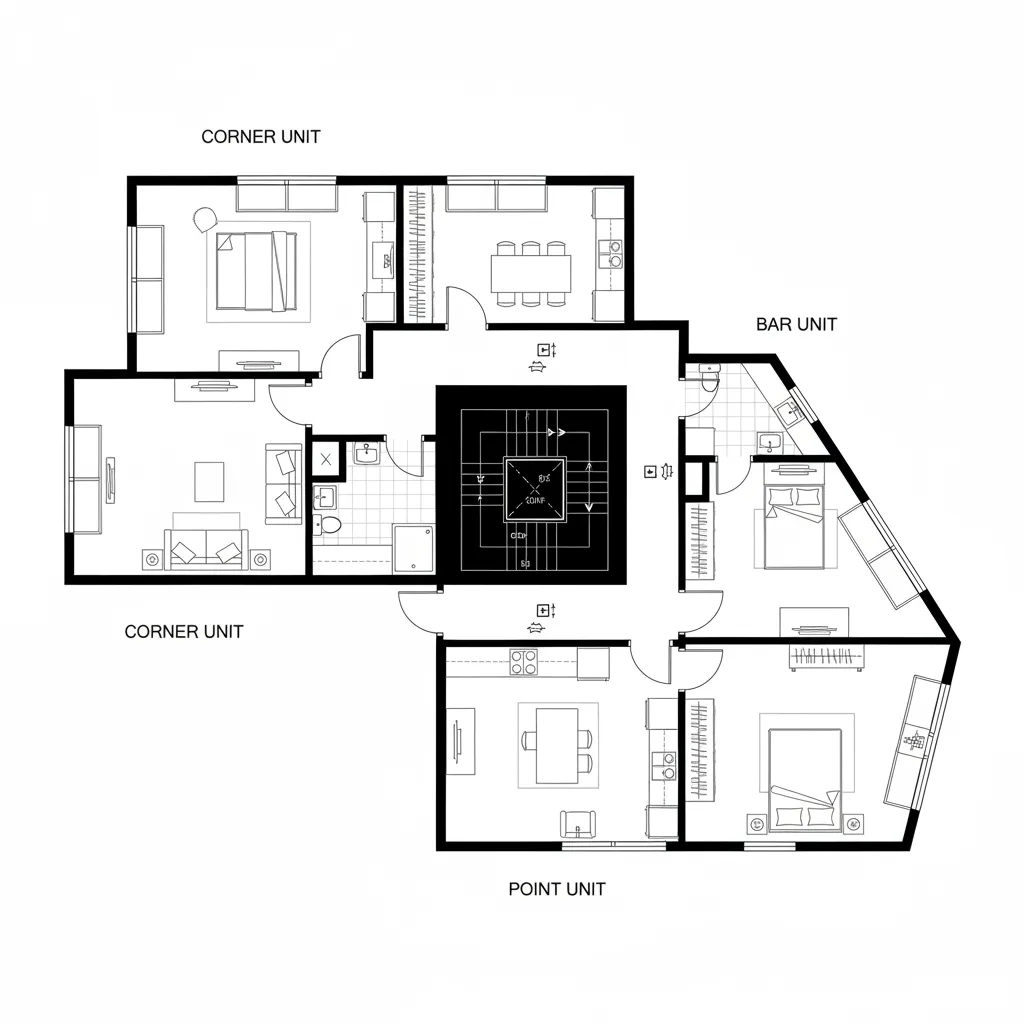
Podium + Tower as a Living Interface: Programming the multi-storey podium + tower layout for tomorrow’s urban bandwidthThorne Ellison, AIADec 04, 2025Table of ContentsPodium as Urban Motherboard, Tower as Private StackHybrid Amenity Deck as Bandwidth EqualizerTower Typologies: Corner, Bar, and Point ModulesFinal TakeawayTable of ContentsPodium as Urban Motherboard, Tower as Private StackHybrid Amenity Deck as Bandwidth EqualizerTower Typologies Corner, Bar, and Point ModulesFinal TakeawayFree floor plannerEasily turn your PDF floor plans into 3D with AI-generated home layouts.Convert Now – Free & InstantThe future presses in as cities densify and households fragment; the old single-program slab can’t carry new bandwidth. According to NAHB, multifamily completions jumped notably in recent years while unit sizes trended smaller—pressure that demands smarter vertical ecosystems. In that light, the multi-storey podium + tower layout becomes a living compiler, where public, semi-public, and private code compile into a resilient daily runtime. spatial reasoning toolkit becomes second nature when I’m debugging these stacks.Podium as Urban Motherboard, Tower as Private StackDesign Logic:Podium hosts active programs—retail, lobby, amenities—while the tower stacks dwellings, separating signal from noise for future mixed-use elasticity.Flow:Entry → lobby filter → amenity mezzanine → vertical cores → residential corridors → units; a clean pipeline where public packets peel off early.Sightlines:Transparent podium edges broadcast city activity; tower fenestration frames sky-as-dashboard, prioritizing daylight hierarchies.Storage:Podium back-of-house as bulk cache; tower floors use shared utility chases and in-unit built-ins to minimize latency.Furniture Fit:Unit modules respect column grids as API limits—9–10 ft clear widths, 30–36 in circulation, modular kitchens locking to shafts.Verdict:This split architecture anticipates five years of hybrid work and micro-commutes, keeping ground energy high while bedrooms remain quiet firmware.save pinHybrid Amenity Deck as Bandwidth EqualizerDesign Logic:A multi-level podium terrace stitches tower residents with city life, turning rooftop planes into communal processors that offload in-unit burdens.Flow:Lift to sky-lobby → perimeter track → quiet pods → fitness → outdoor kitchens; a looped routine that feels like a daily script.Sightlines:Long cross-views between planted courts and skyline create a UI ladder—near tasks first, horizon for cognitive rest.Storage:Shared gear lockers, stroller bays, and seasonal cabinets act as distributed cache, reducing unit clutter.Furniture Fit:Movable lounges on 900–1200 mm grids, power islands every 3–4 m, tables sized to 600–700 mm depth for laptop and meal dual-use.Verdict:By externalizing functions, smaller apartments live larger; the amenity deck is the building’s RAM, upgrading lifestyles without inflating units.save pinTower Typologies: Corner, Bar, and Point ModulesDesign Logic:Mixing corner, bar, and point modules balances daylight equity and leasable efficiency—future-proof against demographic shifts.Flow:Core-as-kernel feeds short corridors; doors staggered to avoid collision, then kitchen → living → sleep in a latency-reducing sequence.Sightlines:Corner units run a two-monitor setup—dual aspects; bar units prioritize axial views; point units center on a panoramic node.Storage:Deep entry walls as integrated cache, bed-platform drawers, and shaft-adjacent pantries use structural voids as memory banks.Furniture Fit:Sofas capped at 84 in in bars, 90° sectional only in corners; dining flips between 30×48 and 36×60 depending on module bandwidth.Verdict:A diversified stack lets management recompile mix over time while residents feel precision-tuned to their daily code, not squeezed by it.save pinFinal TakeawayThe multi-storey podium + tower layout isn’t a binary; it’s an interface where public current and private voltage stabilize dense living. As unit sizes compress, mixed-use podiums and tuned tower modules let a multi-storey configuration perform like a generous operating system. In my experience, the smartest high-rise homes aren’t larger, just exquisitely intentional—and I keep designing toward that horizon.Convert Now – Free & InstantPlease check with customer service before testing new feature.Free floor plannerEasily turn your PDF floor plans into 3D with AI-generated home layouts.Convert Now – Free & Instant