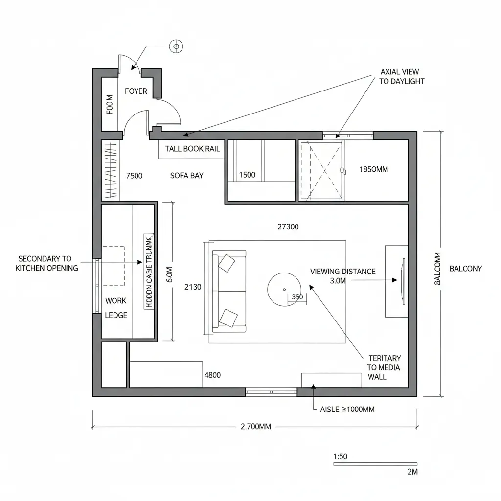
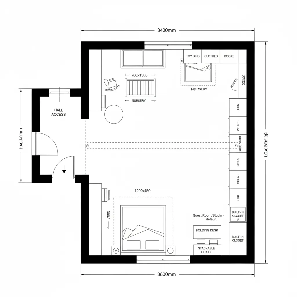
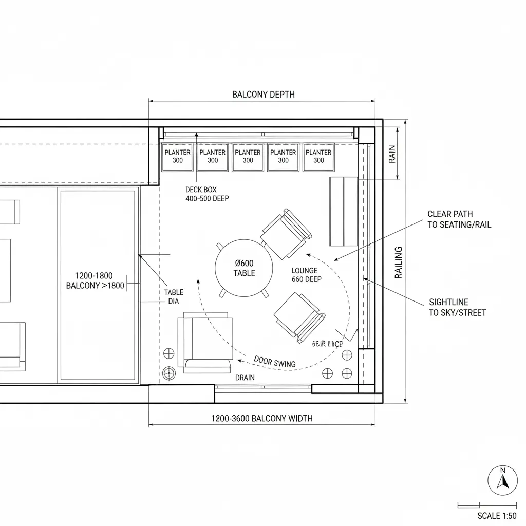
Seven-Portation Apartment Plan: A future-forward interface for urban living, compiled in seven distinct portsNoel K.Mar 26, 2026Table of ContentsPort 1 Threshold Hub + Drop ZonePort 2 Living Spine + Media FieldPort 3 Convertible Kitchen BayPort 4 Primary Sleep CapsulePort 5 Secondary Flex ChamberPort 6 Bath Suite + Hygiene LoopPort 7 Outdoor/Edge NodeFinal TakeawayFree floor plannerEasily turn your PDF floor plans into 3D with AI-generated home layouts.Convert Now – Free & InstantThe future keeps tapping the glass while today’s apartments still buffer against noise, privacy, and storage bandwidth. spatial reasoning toolkit lives in my head when I map a seven-portation apartment floor plan—an urban shell that routes life through precise nodes. AIA and NAHB surveys show rising demand for flexible zones and multi-use rooms as households blend work, wellness, and care. I see this layout as early code for a lifestyle that needs ports, not mere rooms.Port 1: Threshold Hub + Drop ZoneDesign Logic: A compact foyer buffers the city’s entropy, staging arrivals with clarity for future hybrid routines.Flow: Entry → coat niche → parcel slot → handwash bay → into living spine; clean path avoids cross-contamination.Sightlines: A controlled reveal: soft diagonal to living core, tight sightline to kitchen for immediate orientation.Storage: Vertical lockers and a shallow cache wall for shoes, umbrellas, micro-mobility helmets—quick-write, quick-read.Furniture Fit: 24–30 inch console, wall hooks on a 12-inch grid, a bench at 48 inches—API-tight to movement.Verdict: The threshold becomes a firewall; over five years it keeps the rest of the system clean and legible.save pinOpen in 3D Planner Processing... Port 2: Living Spine + Media FieldDesign Logic: A linear living core parses social, work, and downtime without collisions—future households need modulation, not bulk.Flow: Foyer → sofa bay → flexible desk rail → balcony node; lanes distinct yet interoperable.Sightlines: Long axial view to daylight, layered UI: primary to window, secondary to kitchen, tertiary to screen.Storage: Low credenza cache for devices, tall book rail; hidden cable trunk—bandwidth without visual noise.Furniture Fit: 84-inch sofa, 24-inch deep work ledge, 9-foot rug binding zones like code brackets.Verdict: A spine that edits distraction; it scales as habits update, like firmware for living.save pinOpen in 3D Planner Processing... Port 3: Convertible Kitchen BayDesign Logic: A galley that toggles between meal prep and social lab; future diets need plug-in stations, not monoliths.Flow: Pantry → prep → cook → plate → cleanup; no backtracking, like a clean function call.Sightlines: Peripheral to living spine, foreground to worktops; eye tracks safety first, theater second.Storage: Pull-out towers, deep drawer stack, overhead light-cache for daily items—latency near zero.Furniture Fit: 24-inch appliances, 36-inch landing zones each side of cooktop, island at 30x60 if width permits.Verdict: Precision beats size; five-year use trends favor modular stations that recompile with diet cycles.save pinOpen in 3D Planner Processing... Port 4: Primary Sleep CapsuleDesign Logic: A quiet kernel prioritizing recovery; noise and light are treated as bugs to squash at source.Flow: Living spine → privacy seam → sleep bay → wardrobe edge; a short, protected routine.Sightlines: Composed to a single calm focal wall; window placed for dawn logic, not spectacle.Storage: 60–72-inch closet with top bin cache, under-bed drawers as long-term cold storage.Furniture Fit: Queen bed at 60x80, 24-inch side tables, clearance rings at 30 inches to keep code readable.Verdict: The capsule holds circadian rhythm stable; future-proof against shift work and screen creep.save pinOpen in 3D Planner Processing... Port 5: Secondary Flex ChamberDesign Logic: A wildcard port: guest room by night, studio or nursery by day—urban units need polymorphism.Flow: Hall → fold desk → murphy or daybed → acoustic curtains; quick transforms with minimal friction.Sightlines: Side-lit to reduce glare on screens; sightlines collapse when privacy must render fast.Storage: 18-inch deep wall system with labeled bins; medium-term cache for hobbies, gear, linens.Furniture Fit: 54-inch full bed option, 48-inch modular desk, stackable chairs—API calls switchable.Verdict: The chamber absorbs life’s spikes; across five years it pays back in resilience and rent of possibility.save pinOpen in 3D Planner Processing... Port 6: Bath Suite + Hygiene LoopDesign Logic: Hygiene runs like a closed loop; water, light, and heat orchestrated for efficiency and calm.Flow: Entry niche → shower → dry zone → vanity → laundry micro-port; no wet-foot rework.Sightlines: Short, diffused; mirrors act as UI layers, not billboards.Storage: Vertical pharmacy pullouts, towel cache, hidden hamper with airflow—bugs (smell, clutter) contained.Furniture Fit: 30-inch vanity, 36x60 shower or 30x60 tub-shower, 24-inch linen tower—tight but generous enough.Verdict: A disciplined loop reduces maintenance; future renters will prize time saved over square feet.save pinOpen in 3D Planner Processing... Port 7: Outdoor/Edge NodeDesign Logic: A balcony or bay window acts as an edge server—air, light, micro-greens caching wellbeing data.Flow: Living spine → threshold slider → seating rail; simple, repeatable micro-rituals anchor days.Sightlines: Wide foreground to sky and street; UI overlays of planters, reading perch, horizon line.Storage: Slim deck box for tools, fold chairs, weather kit; low-latency access for 10-minute breaks.Furniture Fit: Bistro set at 24-inch diameter, 12-inch planter modules on a grid, compact lounge 26 inches deep.Verdict: The edge port is the refresh key; five-year stress patterns soften with this daily vent.save pinOpen in 3D Planner Processing... Final TakeawayThe seven-portation apartment floor plan treats rooms as interoperable ports, translating future habits into precise routes and caches. Variants like a two-bedroom unit or compact studio with seven distinct nodes reuse this logic to keep life legible under urban pressure. Long-tail needs—like hybrid work layouts and wellness micro-zones—fit naturally when the interface is clear. In my experience, the smartest homes of the future won’t be larger—only more intentional.Convert Now – Free & InstantPlease check with customer service before testing new feature.Free floor plannerEasily turn your PDF floor plans into 3D with AI-generated home layouts.Convert Now – Free & Instant