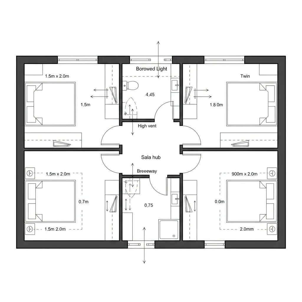
Simple Bungalow House Design in the Philippines: A compact floor plan tuned to tropical rhythms and tomorrow’s habitsIsidro ValeMar 26, 2026Table of ContentsFront-Porch Hub + Sala SequenceSplit Bedroom Stack + BreezewaysKitchen-Dining Compiler + Service YardFinal TakeawayFree floor plannerEasily turn your PDF floor plans into 3D with AI-generated home layouts.Convert Now – Free & InstantThe future presses in through climate, bandwidth, and time, while today’s Filipino bungalow wrestles with heat, budget, and family multitasking. spatial reasoning toolkit lives here: a small plan acting like larger software. AIA notes that flexible multi-use rooms are up in demand, and my clients feel it in every square meter of a simple bungalow house design Philippines with floor plan—space as interface, not inventory.I map the plan like code: porch as buffer, sala as hub, kitchen as compiler, bedrooms as secure threads, and service yard as cooling module. Zillow and Houzz keep showing preference for open sightlines and efficient storage—signals that the humble bungalow’s future is composable, not expansive.Front-Porch Hub + Sala SequenceDesign Logic: A shaded porch decants heat and social energy, then hands off to a compact sala; future tropical living needs porous edges and cross-ventilation.Flow: Entry → porch buffer → sala hub → dining node → kitchen compiler; guests pause, family threads continue.Sightlines: Low media wall keeps horizon open to dining; a framed view to the pocket garden acts like a UI notification of calm.Storage: Bench-within-porch caches umbrellas/shoes; sala wall niches store daily artifacts without visual noise.Furniture Fit: 2.1–2.3m sofa, 1.6m dining table; clearances calibrated to 900mm main path for human bandwidth.Verdict: This interface absorbs weather and people gracefully; five years on, it will still feel generous because it edits rather than adds.save pinOpen in 3D Planner Processing... Split Bedroom Stack + BreezewaysDesign Logic: Two bedrooms flank the core to balance privacy and airflow; the future prefers thermal logic over brute AC loads.Flow: Sala hub → short hall → primary room → shared bath → secondary room; kids and elders run parallel threads with minimal conflict.Sightlines: Borrowed light via clerestories; doors align to indirect views, treating privacy like layered permissions in a UI.Storage: 450mm-deep wardrobes, under-bed drawers as fast cache; overhead cabinets handle seasonal archive.Furniture Fit: 1.5m queen, 900mm twin; bedside niches integrate charging so cables don’t leak into the visual stack.Verdict: The layout acts like a stable branch of code—predictable, cool, and adjustable to life’s patches without refactoring the whole plan.save pinOpen in 3D Planner Processing... Kitchen-Dining Compiler + Service YardDesign Logic: A galley kitchen compiles inputs into meals, pushing heat to an outdoor service yard; future resilience is about externalizing noisy processes.Flow: Pantry node → prep lane → cook lane → dining table → service exit; cleanup is an asynchronous task off the main thread.Sightlines: Eye-level to patio greens keeps attention serene; overhead shelves stay below the sight-band to avoid UI clutter.Storage: Vertical pantry, toe-kick drawers as hidden cache, outdoor rack for tools; everything finds its protocol and address.Furniture Fit: 600mm counters, 1.8–2.0m prep run, 900mm circulation; dining seats scaled to tropical indoor-outdoor swaps.Verdict: This engine manages heat, smell, and effort with graceful latency; in five years, utility costs and rhythms still feel optimized.save pinOpen in 3D Planner Processing... Final TakeawayA simple bungalow house design in the Philippines reads like compact code: clear modules, clean flow, and sightlines that keep cognition light. Its floor plan isn’t minimal for trend’s sake; it’s a balanced protocol for heat, family, and future add-ons. The best small homes won’t grow wider—they’ll grow smarter in how the interface serves everyday threads. In my experience, tiny spatial decisions become the quiet firmware upgrades that change how my clients live.Convert Now – Free & InstantPlease check with customer service before testing new feature.Free floor plannerEasily turn your PDF floor plans into 3D with AI-generated home layouts.Convert Now – Free & Instant