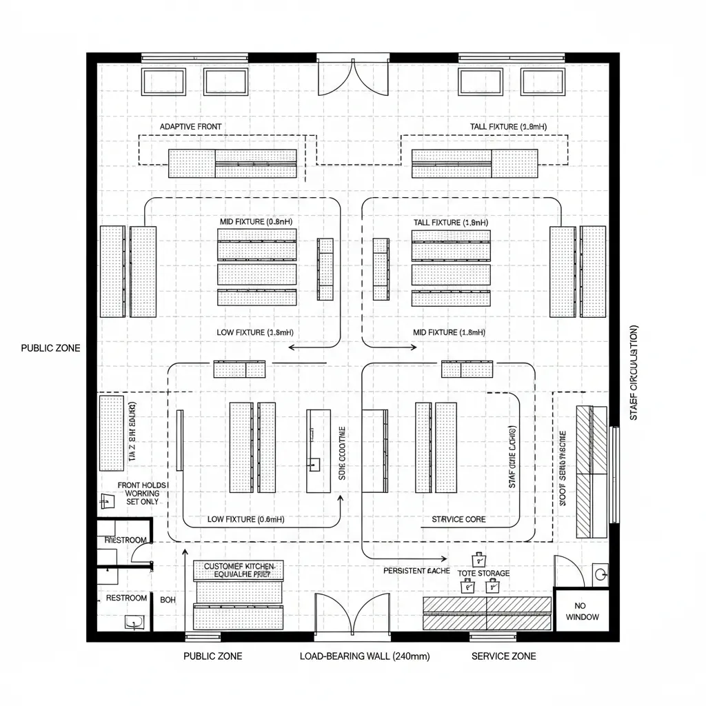
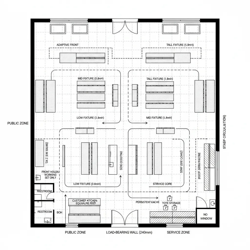
Simple Store Floor Plan, Near-Future Clarity: Retail as an Interface: Minimal Paths, Maximum SignalCaspian RoeJan 21, 2026Table of ContentsPerimeter Gallery Loop + Central IslandDiagonal Spine With Cross-StacksSplit-Zone Grid Service Core + Adaptive Front## Final TakeawayFree floor plannerEasily turn your PDF floor plans into 3D with AI-generated home layouts.Convert Now – Free & InstantThe future keeps arriving in small, precise increments, while current retail pain points—confusing paths, bloated fixtures, and backroom chaos—still drain attention. According to NAHB remodeling surveys, footprints trend smaller even as functionality expectations rise, and that pressure is rewriting how a simple store floor plan must behave. I treat the plan as a living UI: an instruction set for movement, attention, and trust, compiled for the next five years. spatial reasoning toolkitPerimeter Gallery Loop + Central IslandDesign Logic: Perimeter circulation frames product like a gallery, with one central island as a bandwidth node; future shoppers scan fast, then dwell selectively.Flow: Entry → right-turn loop → mid-store island touchpoint → checkout sightline; the path reads as a predictable program with low cognitive load.Sightlines: Long edges present hero SKUs; the island breaks monotony, creating layered reveals that act like progressive disclosure.Storage: Under-island drawers and perimeter base cabinets act as on-chip cache, minimizing backroom fetch time.Furniture Fit: 36–42 in aisles; island 30–36 in depth for reach; fixtures modular for SKU pivots and pop-ups.Verdict: A resilient loop that scales from quiet weekday to drop-in drops, tuned to fast scan and intentional pause.save pinOpen in 3D Planner Processing... Diagonal Spine With Cross-StacksDesign Logic: A diagonal main spine cuts the rectangle, speeding orientation like a shortcut key; future retail favors time-precise navigation.Flow: Door → diagonal runway → cross-stack bays at 90° → POS near exit; a clear execution path that supports impulse without congestion.Sightlines: Angled vistas widen perceived depth; end-cap beacons act as UI headers guiding the eye down the spine.Storage: Tall back-rail with pull-out bins behind cross-stacks forms a tiered cache, replenished in micro-cycles.Furniture Fit: Cross-stacks 48–60 in wide, 24 in deep; spine kept at 48 in clear for bi-directional flow and carts.Verdict: For small footprints and seasonal churn, the diagonal spine behaves like a fast lane—less drift, more signal.save pinOpen in 3D Planner Processing... Split-Zone Grid: Service Core + Adaptive FrontDesign Logic: A compact service core (back-of-house, sink, stock) offloads friction so the sales floor becomes an adaptive grid; tomorrow’s stores iterate weekly.Flow: Entry → feature band → modular bays → core; staff loop remains behind a permeable boundary, like a background process.Sightlines: Low fixtures up front, stepped heights toward the core; the eye reads priority from low to high, like UI z-indexing.Storage: Core with vertical racking and labeled totes as persistent cache; front holds only a working set. Furniture Fit: Bay widths tuned to 24-in module; peg panels and rail systems as API-compatible hardware.Verdict: The split keeps public bandwidth clean while service hums quietly, enabling rapid resets without breaking the interface.save pinOpen in 3D Planner Processing... ## Final TakeawayA simple store floor plan is not minimalism for its own sake; it is a clarity engine that routes attention like packets across a clean network. Variants of retail layout—perimeter loop, diagonal spine, and split-zone grid—become resilient patterns as footprints tighten and expectations rise. In my experience, the smartest stores ahead won’t be bigger—only more intentional, and I keep designing them as living interfaces.Convert Now – Free & InstantPlease check with customer service before testing new feature.Free floor plannerEasily turn your PDF floor plans into 3D with AI-generated home layouts.Convert Now – Free & Instant