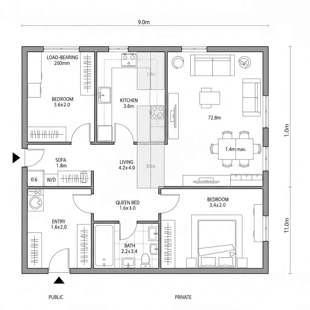
Three Floor Plans, One Future Interface: Architectural documentation through the lens of near-future livingMilan GreyJan 21, 2026Table of ContentsOne-Bedroom Urban CircuitSmall Studio with Zonal PartitionsTwo-Bedroom Split-Core Layout## Final TakeawayFree floor plannerEasily turn your PDF floor plans into 3D with AI-generated home layouts.Convert Now – Free & InstantThe future lifestyle presses in while today’s homes still stumble over storage bottlenecks and fractured flow. AIA data shows homeowners continue prioritizing flexible layouts and multi-use rooms, and I read those priorities as early code for architectural adaptation. In that light, I map architectural project documentation for three floor plans—architectural project documentation of 3 floor plans—as living interfaces, not just rooms.spatial reasoning toolkitOne-Bedroom Urban CircuitDesign Logic:Compact footprint wired for hybrid living: a linear spine that moves from entry to kitchen to living, with a pocketable study zone anticipating remote work as default.Flow:Entry→utility niche→galley kitchen→living node→bedroom→bath; no dead-ends, only loops that return to daylight and task hubs.Sightlines:Kitchen to living kept open; bedroom screened with translucent panels so public UI stays bright while private layers blur gently.Storage:Wall-depth wardrobes and under-bench drawers act as cache memory; vertical shelving along the spine buffers seasonal load without noise.Furniture Fit:72-inch sofa, drop-leaf dining for two, queen bed with 24-inch clear both sides; API-tight tolerances maintain circulation bandwidth.Verdict:This plan reads like a fast, stable build—ready for five years of hybrid work, micro-hosting, and low-latency daily routines.save pinOpen in 3D Planner Processing... Small Studio with Zonal PartitionsDesign Logic:A single room compiled into zones: sleep, make, and gather; future habits want partitions that slide, not walls that shout.Flow:Entry→kitchenette→maker desk→living pad→sleep alcove; paths overlap gracefully so functions can swap like modules.Sightlines:Primary axis from entry to window anchors attention; layered scrims keep the bed peripheral, making the living UI the default state.Storage:Platform bed with deep drawers, ceiling rail cabinets, and a tall pantry; cache is near tasks to reduce cognitive thrash.Furniture Fit:Compact loveseat, 30-inch round table, twin or full bed; foldable pieces respect the studio’s API without choking flow.Verdict:The studio becomes a programmable interface—nimble enough for project work by day and restorative sleep by night.save pinOpen in 3D Planner Processing... Two-Bedroom Split-Core LayoutDesign Logic:Bedrooms flanking a central living core, future-proofed for multi-generational or roommate economies; privacy and togetherness in balanced threads.Flow:Entry→storage vestibule→open kitchen→living core→bedroom A→bedroom B; bath access near the core reduces travel time and friction.Sightlines:Kitchen island to glazing sets a clean hierarchy; doors offset so private realms don’t leak visual noise into shared UI.Storage:Dual closets per bedroom, a central equipment wall, and bench storage at the dining edge—ordered caches that keep the core light.Furniture Fit:84-inch sectional, 36x72 dining table, two queens; dimensioning guards 36-inch clearances as the non-negotiable API.Verdict:This split-core runs like a resilient network, tolerant of changing user profiles over the next five years without re-coding the shell.save pinOpen in 3D Planner Processing... ## Final TakeawayArchitectural project documentation of 3 floor plans is less about rooms and more about compiling a lifestyle interface. The one-bedroom circuit, the zoned studio, and the split-core two-bedroom show how flow, sightlines, and storage behave like software—upgradable without demolition. In my experience, the smartest homes of the future won’t be larger, only more intentional; what I keep seeing in my projects is that small spatial decisions quietly rewrite the way people live.Convert Now – Free & InstantPlease check with customer service before testing new feature.Free floor plannerEasily turn your PDF floor plans into 3D with AI-generated home layouts.Convert Now – Free & Instant