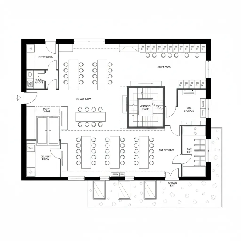
Three-Story Apartment Plans in a Near-Future Rhythm: Stacked living interfaces tuned for flow, sightlines, and precision storageAtlas V. MercerJan 21, 2026Table of ContentsGarden-Level Micro-Layer Communal Spine + Quiet PodsMiddle-Level One-Bed Units Split-Core EfficiencyTop-Level Two-Bed Units View-First, Corner-WeightedFinal TakeawayFree floor plannerEasily turn your PDF floor plans into 3D with AI-generated home layouts.Convert Now – Free & InstantThe future presses in whenever my clients describe today’s frictions—noise stacking, circulation confusion, and storage debt—and I can already see how a three-story stack rewrites their routine. Zillow data shows renters increasingly prioritize flexible layouts over raw square footage, and that’s exactly where three-story apartment building floor plans become the early code of tomorrow’s lifestyle. spatial reasoning toolkit sits behind the scenes, letting me choreograph movement like software, with rooms as clean modules.Garden-Level Micro-Layer: Communal Spine + Quiet PodsDesign Logic: Ground floor becomes a shared bandwidth: lobby, mail, micro-co-working, bike storage—public yet gentle, buffering upper privacy for future hybrid work.Flow: Entry → parcel alcove → co-work bay → vertical core (stairs/elevator) → acoustic threshold; every step compiles a calmer routine.Sightlines: Shallow reveals from door to garden edge; glass at 30–40% keeps signals without glare, UI-like transparency.Storage: Wall-length lockers, bike rails, and a delivery fridge—cache that absorbs daily packets before they clog homes.Furniture Fit: Narrow communal tables (24–28" deep), lounge modules on 36" grid, flexible stools as movable nodes.Verdict: The ground layer operates as a filtered interface, future-proofing busy weeks while keeping upper units latency-free.save pinOpen in 3D Planner Processing... Middle-Level One-Bed Units: Split-Core EfficiencyDesign Logic: Stairs/elevator centered, units mirrored for plumbing efficiency; tomorrow’s remote nights need quiet bedrooms away from corridor noise.Flow: Corridor → threshold niche → kitchen spine → living bay → sliding door → bedroom; a simple instruction sequence that limits interruption.Sightlines: Diagonal read from kitchen to window; partial-height shelving lets light tier like UI breadcrumbs.Storage: 18" deep pantry, bed platform drawers, hallway coat slot—compact caches that prevent overflow loops.Furniture Fit: Sofa 72–78", table 30"×48", queen bed with 36" clear sides—API limits that keep motion efficient.Verdict: This layer balances privacy and throughput, tuned for medium-stay tenants whose routines need predictable compile times.save pinOpen in 3D Planner Processing... Top-Level Two-Bed Units: View-First, Corner-WeightedDesign Logic: Bedrooms braced at corners, living pushed to view edge; future families and co-livers crave equalized privacy with shared luminosity.Flow: Core → drop zone → kitchen peninsula → living edge → split hallway → dual bedrooms; branching path like parallel threads.Sightlines: Long axis to balcony, short axis to kitchen; sightlines layer foreground tasks and background calm—no visual jitter.Storage: Walk-in closet per room, linen spine, balcony deck box—hierarchical caches for weekly and seasonal payloads.Furniture Fit: Sectional on 9–10' span, dining for six at 36"×72", desks 24"×48"—future-proof for hybrid work without congestion.Verdict: The top stack feels like a controlled horizon, letting households scale without losing signal clarity.save pinOpen in 3D Planner Processing... Final TakeawayThree-story apartment building floor plans behave like layered interfaces: ground filters, middle optimizes, top elevates. As zoning tightens and households diversify, multi-level layouts and stacked cores keep routines smooth while sightlines remain legible. In my experience, the smartest homes of the future won’t be larger—only more intentional, and I keep designing them as clean code for daily life.Convert Now – Free & InstantPlease check with customer service before testing new feature.Free floor plannerEasily turn your PDF floor plans into 3D with AI-generated home layouts.Convert Now – Free & Instant