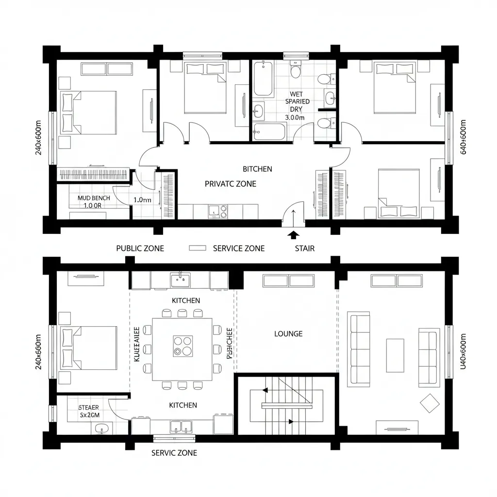
Two-Level Living With Structural Poise: A future-forward read on 2-floor plans that treat pillars as the codebase of home lifeMorrow FieldsDec 11, 2025Table of ContentsSplit-Core Atrium SpinePerimeter Load Grid, Free InteriorOffset Column Row With Quiet QuarterFinal TakeawayTable of ContentsSplit-Core Atrium SpinePerimeter Load Grid, Free InteriorOffset Column Row With Quiet QuarterFinal TakeawayFree floor plannerEasily turn your PDF floor plans into 3D with AI-generated home layouts.Convert Now – Free & InstantFuture living nudges in while current homes still wrestle with noise overlap, stair fatigue, and storage debt. I read 2 floors plan with pillars like early syntax: structure is destiny, and habits compile around load paths. According to NAHB surveys, most buyers prioritize functional circulation over raw square footage—proof that flow outranks size. The future is approaching, and I’ve already seen its outline in how columns choreograph behavior. spatial reasoning toolkitSplit-Core Atrium SpineDesign Logic:Central pillars define a vertical spine; public below, private above. As remote work stabilizes, separable domains become non-negotiable.Flow:Entry → column-marked foyer → living ring → stair hugged by pillars → upper suite loop; a compiled route that reduces cross-traffic.Sightlines:Columns stage layered views: near (sofa), mid (stair), far (atrium light), letting information reveal in tiers.Storage:Built-ins wrap the spine like cache lines—bench niches, stair drawers, and column-adjacent closets that index daily objects fast.Furniture Fit:Sofas align to pillar grid; dining set centers on the structural bay, keeping API-friendly clearances around 36–42 inches.Verdict:This grid is resilient—work shifts, family cycles, and tech hubs plug in without jitter for the next five years.save pinPerimeter Load Grid, Free InteriorDesign Logic:Perimeter pillars carry the load so the interior remains adaptable; tomorrow’s lifestyles need rooms that recompile on demand.Flow:Garage/mudroom → open kitchen core → sliding partition to lounge → stair offset to reduce acoustic crosstalk → calm bedrooms above.Sightlines:Clean diagonals across bays, with pillars framing the kitchen island like UI tabs—navigation is visual, not just physical.Storage:Wall-depth pantries, window-seat chests, and pillar-adjacent tall units act as tiered caches: cold, daily, seasonal.Furniture Fit:Modular pieces snap to bay widths (9–12 ft); desks slot into pillar reveals like peripherals in a port map.Verdict:The shell carries time; interiors can pivot from studio to family node without structural negotiation.save pinOffset Column Row With Quiet QuarterDesign Logic:An offset pillar row carves a quiet quarter upstairs; downstairs remains a collaborative field—future hybrid living demands both.Flow:Front entry → column-edged gallery → kitchen-living loop → stair to hush wing → primary suite set behind the structural row.Sightlines:Columns become punctuation: open clauses in social zones, commas in work nooks, a full stop at the calm corridor.Storage:Under-stair vault, pillar-flanking linen towers, and overhead joist shelves—buffering clutter like a disciplined cache hierarchy.Furniture Fit:Bed centers on the quiet bay; tables tune to column spacing; clearances read like constraints that prevent lag in movement.Verdict:This pattern future-proofs sleep, focus, and hosting—bandwidth stays stable as life traffic increases.save pinFinal TakeawayIn two-story planning with pillars, the structure is the interface; rooms are modules that compile to daily rhythm. Variants of a 2-floor layout become agile when the column grid guides flow, sightlines, and cache-like storage. Long-tail thinking—like pillar-based zoning and adaptable bays—keeps homes responsive instead of merely bigger. In my experience, the smartest homes of the future won’t be larger—only more intentional.Convert Now – Free & InstantPlease check with customer service before testing new feature.Free floor plannerEasily turn your PDF floor plans into 3D with AI-generated home layouts.Convert Now – Free & Instant