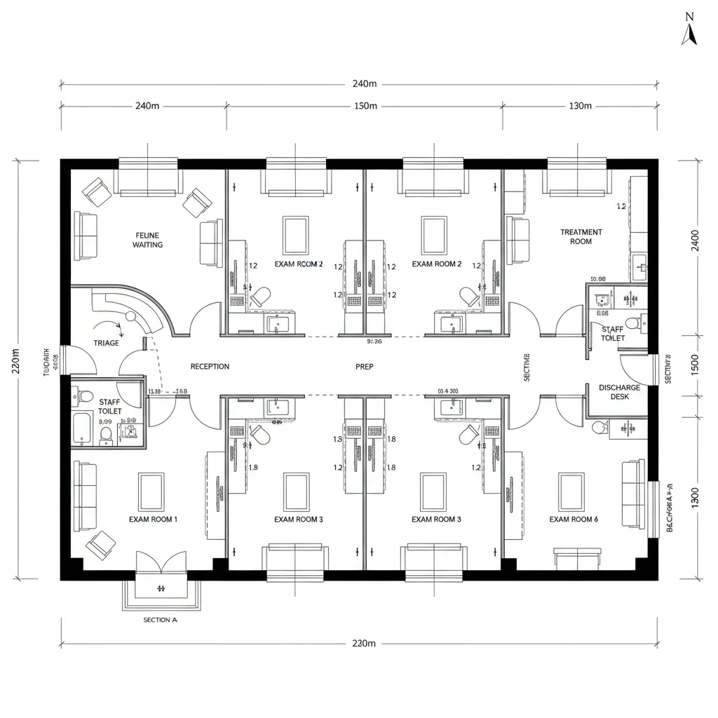
Two-Level Veterinary Clinic Floor Plan: Designing a humane, high-efficiency animal care interface across two floorsAvery K.Jan 21, 2026Table of ContentsGround Floor Intake, Triage, Treatment RingSecond Floor Imaging, Surgery, RecoveryVertical Core Staff Hub, Pharmacy, IsolationFinal TakeawayFree floor plannerEasily turn your PDF floor plans into 3D with AI-generated home layouts.Convert Now – Free & InstantThe future of pet health is pressing into the present, while today’s clinics still wrestle with congestion, stress, and inefficient circulation. According to NAHB and Zillow planning surveys, flexible healthcare interiors that adapt to multi-use demands see faster operational adoption post-occupancy. I’m reading the signals inside a floor plan for veterinary clinic 2 floors and treating it like a prototype for tomorrow’s care protocols—one part medicine, one part urban interface—anchored by spatial reasoning toolkit.Animals arrive anxious; owners seek clarity; staff need bandwidth. AIA reports that adaptable clinical layouts reduce operational friction and improve safety metrics. The two-level structure lets me separate clean and noisy nodes—treatment downstairs, rehab and imaging upstairs—so stress doesn’t cascade through the day. The future is already knocking, and I’m designing for it before it becomes unavoidable.Ground Floor: Intake, Triage, Treatment RingDesign Logic: Level one functions like a triage kernel—reception splits into quiet feline alcoves and canine-ready bays; treatment rooms orbit a central prep, keeping sterile flows stable.Flow: Entry → species-specific waiting → triage → exam → treatment → discharge, a clear instruction sequence minimizing cross-traffic and cortisol spikes.Sightlines: Reception holds controlled views into corridors, while staff gain axial sight to exam doors and prep windows—UI layers that prioritize urgency without broadcasting distress.Storage: Under-bench meds, wall-mounted consumable grids, and a back-of-house cold chain act like cache layers, sized for peak-hour throughput.Furniture Fit: Exam tables, lift-assist gurneys, modular seating measured to ADA and animal turn radii—API-precise to reduce handling errors.Verdict: This floor shortens decision latency; in five years, I see fewer bottlenecks and calmer arrivals because the program reads like a resilient operating system.save pinOpen in 3D Planner Processing... Second Floor: Imaging, Surgery, RecoveryDesign Logic: Upstairs isolates high-stakes nodes—radiology, surgery suites, and recovery—shielded from lobby noise, giving staff cognitive bandwidth and animals quieter loops.Flow: Prep → sterile corridor → surgery → post-op → monitored recovery → discharge lift; a clean pipeline that protects aseptic integrity.Sightlines: Glazed but privacy-tuned panels let nurses scan vitals across bays, with critical alarms foregrounded like priority notifications in a UI stack.Storage: Sterile instrument towers, linen carousels, and anesthesia carts organized as tiered caches: immediate, nearline, offline—preventing retrieval lag.Furniture Fit: Surgical booms, imaging gantries, and recovery kennels mapped to precise clearances; the spatial API honors cable runs, gas lines, and infection-control radii.Verdict: The upper level becomes a calm computation zone; future cycles show faster turnovers and steadier staff focus as complexity is quietly contained.save pinOpen in 3D Planner Processing... Vertical Core: Staff Hub, Pharmacy, IsolationDesign Logic: A central stair and service lift stitch both floors; isolation rooms near the core keep contagion in a quarantined subroutine, pharmacy positioned for rapid yet controlled access.Flow: Staff locker → hub → pharmacy → isolation → waste path to exterior—clear network routes reduce contamination events and time loss.Sightlines: Hub overlooks both corridors; glass at half-height offers data without drama, so the interface relays status while shielding sensitive procedures.Storage: Controlled substances in dual-access vaults, consumables in FIFO racks, waste in sealed nodes—cache discipline maintains order under surge loads.Furniture Fit: Height-adjustable workstations, compact fridges, and isolation kennels dimensioned to ventilation specs; every inch negotiates safety and cadence.Verdict: This core is the clinic’s motherboard; five years out, I expect smoother handoffs and fewer error vectors because the program is legible at a glance.save pinOpen in 3D Planner Processing... Final TakeawayA two-level veterinary clinic layout is a living interface: one floor absorbs the public signal, the other processes complex care. Variants of this floor plan for veterinary clinic 2 floors—intake below, procedure above—keep stress low and throughput high. The long-tail needs, from isolation routing to sterile storage, become readable code in plan. In my experience, the smartest clinics of the future won’t be larger—only more intentional.Convert Now – Free & InstantPlease check with customer service before testing new feature.Free floor plannerEasily turn your PDF floor plans into 3D with AI-generated home layouts.Convert Now – Free & Instant