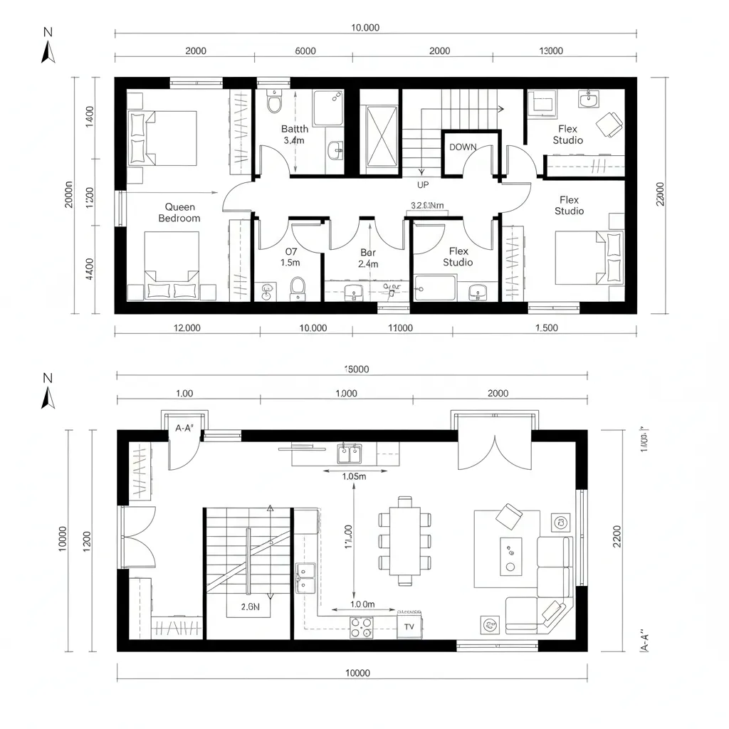
Two-Story Square Living, Compiled for the Next Five Years: A futurist designer’s interface for 2-story square house floor plansAri North, Residential FuturistJan 21, 2026Table of ContentsCourtyard-Core Square Light as Operating SystemDiagonal Spine Stair as AlgorithmPerimeter Program, Center CalmFinal TakeawayFree floor plannerEasily turn your PDF floor plans into 3D with AI-generated home layouts.Convert Now – Free & InstantThe future arrives through ordinary rooms, pressuring our current frictions: fragmented flow, muddled storage, and views that don’t speak. Industry surveys keep echoing it—Zillow’s buyers increasingly want flexible layouts that adapt over time. In this tension, I read 2 story square house floor plans like early code for a life that updates itself. spatial reasoning toolkit sits quietly behind my process, letting form serve evolving rituals.Courtyard-Core Square: Light as Operating SystemDesign Logic: Square perimeter, central void: a compact grid where a micro-courtyard becomes the app that updates mood and microclimate. Future lifestyles need plug-in rooms; the core keeps daylight and air as shared resources. Flow: Entry → perimeter living → core pivot → stair as backbone → bedrooms above circling the light well, a loop with no dead ends. Sightlines: Layered from door to courtyard to sky; the UI prioritizes horizon, then greenery, then task zones. Storage: Perimeter wall-depth closets as cache; stair under-storage functions like a fast-access buffer. Furniture Fit: Sofas and tables dock to edges (36–42 in clearances) respecting circulation APIs; modular pieces reconfigure around the core. Verdict: A square that breathes; five years on, it handles hybrid work, kid cycles, and quiet rituals without version conflict.save pinOpen in 3D Planner Processing... Diagonal Spine: Stair as AlgorithmDesign Logic: A diagonal stair cuts the square like a directive, splitting social and private while stitching them. Future rhythm needs one strong rule: the spine keeps time. Flow: Entry → open kitchen-living on one side → diagonal stair → mezzanine-like landing → bedrooms and flex studio above; a readable left-to-right compile. Sightlines: Angled views create tiered info: cooking → dining → terrace; upstairs sees tree canopy, not neighbor chaos. Storage: Under-stair drawers act like indexed cache; ceiling-height pantry and linen towers maintain low-latency access. Furniture Fit: Angular sofas and dining set align to stair vector; 30–36 in paths hold bandwidth for daily traffic. Verdict: The diagonal rule reduces decision fatigue; in five years, my clients report smoother routines and fewer collisions.save pinOpen in 3D Planner Processing... Perimeter Program, Center CalmDesign Logic: Functions dock to edges: kitchen, media, mudroom; the center stays clear—an idle thread ready to run new tasks. Square formats love this: efficient and future-proof. Flow: Mudroom → kitchen hub → living ring → stair at corner for quiet ascent → bedrooms organized by noise gradient. Sightlines: Peripheral glazing frames tasks; center preserves a clean UI—no visual spam, just expandable whitespace. Storage: Built-ins at every wall segment create ordered cache; attic hatch above hall acts as cold storage archive. Furniture Fit: Pieces sit flush to perimeters; 18–24 in offsets prevent pinch points, letting toys, pets, and micro-mobility pass. Verdict: The center as calm kernel keeps adaptability high; five years later, it absorbs new devices without rewriting the whole plan.save pinOpen in 3D Planner Processing... Final TakeawayTwo-story square house plans are the silent compilers of daily bandwidth, translating routines into clear flows. Whether you call it a compact footprint or a squared family home, the interface matters more than mere area. Long-tail variations like small two story square designs or modern square layouts prove scale is secondary to logic. In my experience, the smartest homes of the future won’t be larger—only more intentional.Convert Now – Free & InstantPlease check with customer service before testing new feature.Free floor plannerEasily turn your PDF floor plans into 3D with AI-generated home layouts.Convert Now – Free & Instant