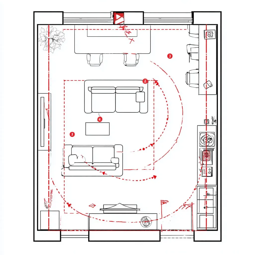
Living room flow ★★★★★ · Austin · 980 sq ft “My husband thought we’d extended the house. It was the same room—just finally working.” The Fix: Main walkway opened, TV moved to structural wall, dining shifted near window. Room feels 1.5× larger. Before Sofa blocked the entry. TV wall too close. Every path squeezed between furniture. After Main walkway opened, dining shifted near window. Room feels 1.5× larger. Flow optimizationTV distance fixSightline clean-up
Family kitchen ★★★★★ · Seattle · 3-person household “Dinner no longer feels like a traffic jam.” The Fix: Island slimmed & rotated, clear line from sink–stove–fridge, kid seating moved to calm zone by the window. Before Island blocked fridge and oven. Cooking triangle broken, kids collided. After Island rotated, clear flow restored, kid seating moved to calm window zone. Kitchen triangleFamily circulationSeating re-zoning
Tiny bedroom ★★★★★ · London · Rental unit “The room stopped feeling like a storage closet.” The Fix: Bed rotated, wardrobe moved to clean wall, niche turned into compact work zone with daylight. Before Wardrobe jammed by the bed, door barely opened. No place for a desk. After Bed rotated, full wardrobe access, compact work zone created with natural light. Small space logicWardrobe placementDesk niche
L Laura K. Flow & space planning Specializes in crowded living rooms and “no entry” apartments where circulation is broken.
J Javier S. Micro apartments Turns under-30m² units into liveable homes using partitions, storage walls, and convertible zones.
A Aisha M. Family layouts Focuses on kid-safe circulation and zones that keep toys and noise under control.
S Sarah C. Hosts & rentals Helps Airbnb hosts increase reviews by fixing “where do we put our stuff?” and “why is this so cramped?”.