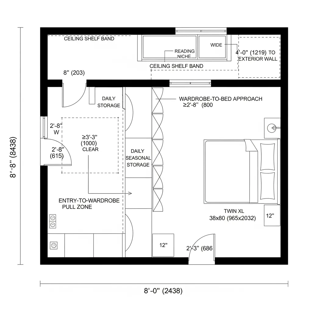
8x8 Bedroom: Micro-Interface, Macro-Life: A compact 64-square-foot bedroom scripted for future livingRhea AnshenApr 25, 2026Table of ContentsCorner Bed + Work RailFloating Wardrobe SpineDiagonal Layout with Soft BufferFinal TakeawayFree floor plannerEasily turn your PDF floor plans into 3D with AI-generated home layouts.Convert Now – Free & InstantThe future presses closer while current homes struggle with bandwidth: sleep, work, and recovery squeezed into tiny grids. AIA reports steady demand for flexible bedrooms across remodels, mirroring how my clients treat small rooms as programmable interfaces. In that frame, an 8x8 bedroom floor plan isn’t a compromise—it’s early code for adaptive living. I see how a tiny square can act like a spatial reasoning toolkit, mapping rest, focus, and storage into one coherent system.Corner Bed + Work RailDesign Logic:Bed pushed to a corner frees a central command lane; a wall-mounted work rail replaces the bulky desk—future Fridays happen in breathable geometry.Flow:Entry → drop zone → rail workspace → sleep corner → window pause; a tight loop keeps latency low.Sightlines:Door sight cuts to the window, bed veiled by a headboard wing; UI layers: access, function, calm.Storage:Under-bed drawers + 8-foot overhead rail shelf = cache that preloads daily gear in predictable tiers.Furniture Fit:Full-size bed 54x75, rail 12" depth, chair tucks at 18"; tolerances read like an API for human movement.Verdict:This script turns 64 sq ft into a responsive module, ready for hybrid work and off-duty reset across the next five years.save pinOpen in 3D Planner Processing... Floating Wardrobe SpineDesign Logic:A slim wardrobe becomes the spine, splitting sleep and storage—future residents need a system, not piles.Flow:Entry → micro-landing → wardrobe pull → bed approach → reading niche; instructions run without collisions.Sightlines:Low wardrobe height preserves the window axis; the eye reads a clean hierarchy: entry, vertical mass, light field.Storage:18" deep wardrobe + ceiling shelf band; cache layers separate daily wear from seasonal archives.Furniture Fit:Twin XL 38x80 for better legroom; side table 12" square; wall lamp frees floor bandwidth.Verdict:The spine tactic future-proofs the 8x8 by stabilizing routines, making small decisions feel like long-term infrastructure.save pinOpen in 3D Planner Processing... Diagonal Layout with Soft BufferDesign Logic:Bed rotated on a soft diagonal breaks the grid, reducing edge friction—future micro-living benefits from graceful angles.Flow:Entry → buffer rug → diagonal bed → window perch; the program feels cinematic and fast to parse.Sightlines:Diagonal sight sweeps light across surfaces, UI reads as motion then rest; no hard stops near the door.Storage:Corner tower + under-bed bins act as tiered cache; capacity scales without noise in the interface.Furniture Fit:Platform bed 48x75 with rounded corners; window bench at 14" depth; clearances tuned to 24" lanes.Verdict:Diagonal coding lifts the 8x8 from utility to experience, a compact room that anticipates fluid, post-linear living.save pinOpen in 3D Planner Processing... Final TakeawayThe 8x8 bedroom floor plan is a tight but intelligent interface, proving that small rooms can host multiple futures without visual clutter. As micro-living, compact bedroom layouts, and minimal sleeping suites accelerate, precision beats square footage. The next wave of small-bedroom planning favors flow logic, calibrated storage, and furniture as API. In my experience, the smartest homes of the future won’t be larger—only more intentional.Convert Now – Free & InstantPlease check with customer service before testing new feature.Free floor plannerEasily turn your PDF floor plans into 3D with AI-generated home layouts.Convert Now – Free & Instant