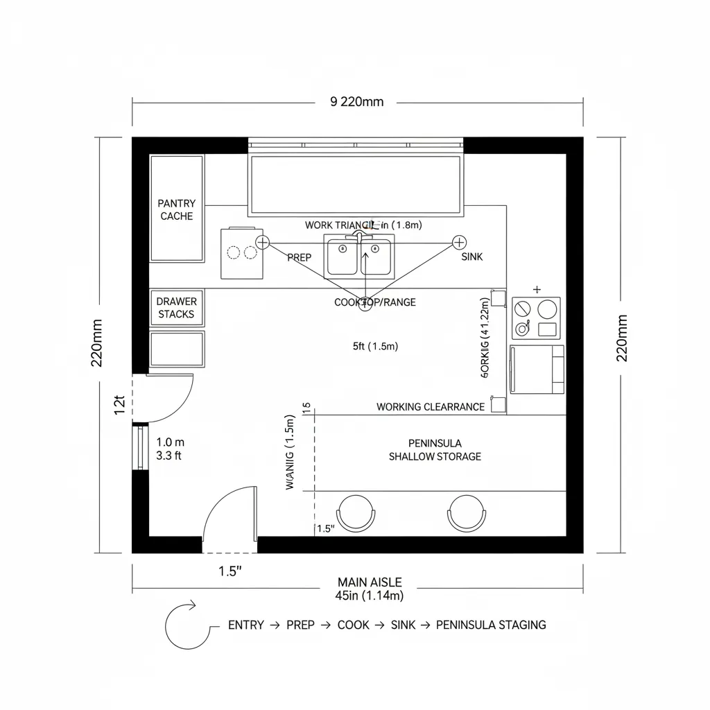
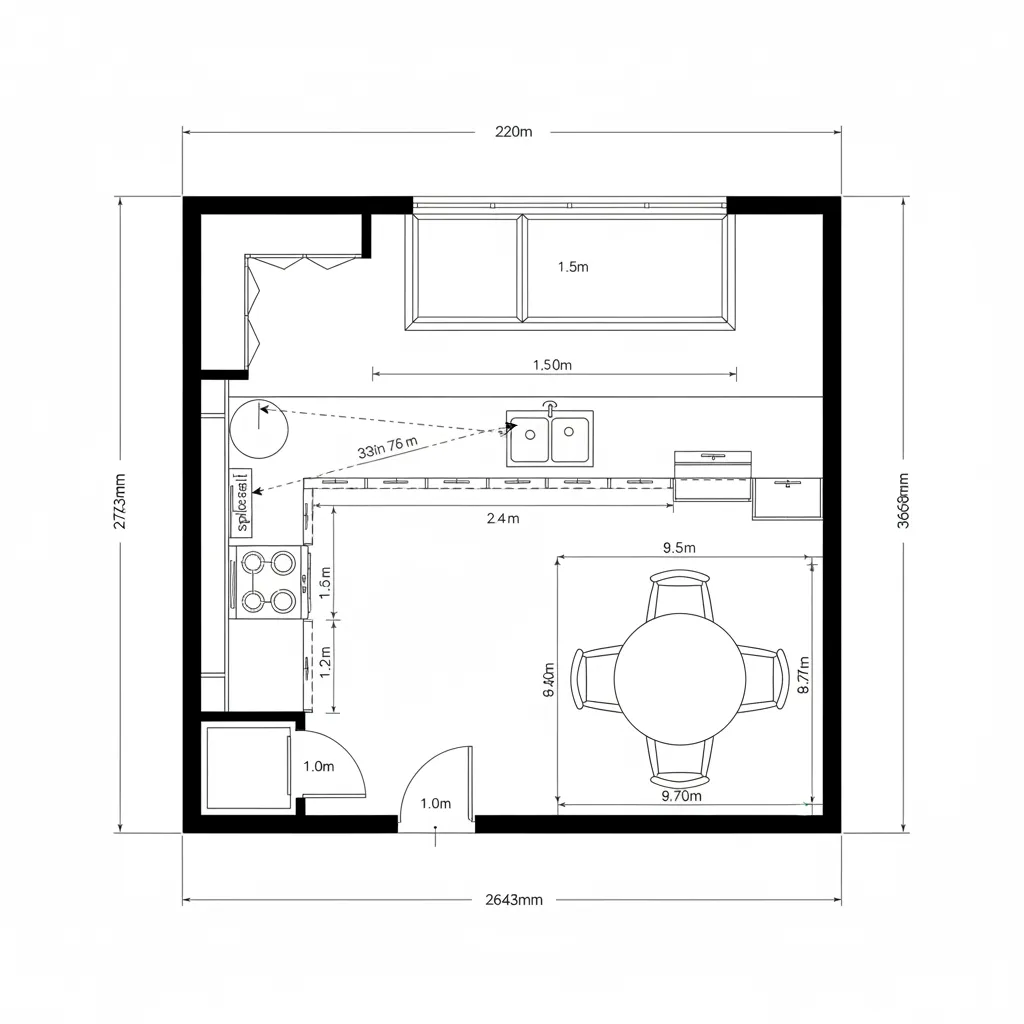
9 x 12 Kitchen Floor Plan—Interface for Daily Rituals: A compact culinary grid tuned for the near futureMiles Nova, Residential FuturistJan 21, 2026Table of ContentsGalley Grid with Parallel EfficiencyL-Shaped Node with Social EdgeU-Form Work Triangle with Peninsula DockFinal TakeawayFree floor plannerEasily turn your PDF floor plans into 3D with AI-generated home layouts.Convert Now – Free & InstantThe future of domestic rituals keeps tightening its feedback loops while today’s kitchens still struggle with congestion, glare, and storage churn; I design as if the next five years are already testing us. AIA reporting shows kitchen remodels consistently lead residential investments, signaling how a 9 x 12 kitchen floor plan becomes a prototype for evolving habits. The future is approaching, and I’m already seeing it map onto small rooms like this—precision over bulk, intention over spectacle. spatial reasoning toolkitGalley Grid with Parallel EfficiencyDesign Logic:Two parallel runs compress the work triangle into a low-latency corridor; future cooking aligns with short reach and repeatable sequences.Flow:Entry → prep run → cook core → sink reset → exit; like a command line, linear tasks stack without collisions.Sightlines:Long axial view to a window at the end; UI layers: bright focal, matte sides, controlled reflection to reduce cognitive noise.Storage:Tall pantry as primary cache, deep drawers as fast-access buffers, overheads limited to zones 2–3 for clean bandwidth.Furniture Fit:24–30" appliances, 36" aisle each side; peninsula stools only if aisle remains ≥36"—APIs must not conflict.Verdict:This pattern suits daily batch-cooking and micro-gatherings; five years on, it still feels nimble, not narrow.save pinOpen in 3D Planner Processing... L-Shaped Node with Social EdgeDesign Logic:An L anchors tasks to two walls, freeing the third for a compact dining node; future kitchens act as collaboration hubs.Flow:Entry → fridge corner → prep span → cook zone → pivot to sink; a loop that prevents bottlenecks when two users run parallel scripts.Sightlines:Diagonal sight to table and window; hierarchy puts heat at the back, conversation at the perimeter—clear signal routing.Storage:Corner carousel as deep cache, toe-kick drawers for stealth capacity, vertical spice rails for micro-indexing.Furniture Fit:30" range, 33" sink, 24" dishwasher; a 48–54" round table fits without clipping the L’s path.Verdict:Good for households that cook-and-talk; it scales with small devices and remains legible as trends shift.save pinOpen in 3D Planner Processing... U-Form Work Triangle with Peninsula DockDesign Logic:A U frames the triangle tightly; the peninsula becomes a docking station for meals, laptops, and future wearable interfaces.Flow:Fridge → prep → cook → sink in a clockwise routine; the peninsula handles staging and handoff, like a queue manager.Sightlines:Low peninsula preserves cross-room vision; task lights layer like notifications over ambient base.Storage:Full-height pantry on one leg, drawer stacks on the other; peninsula houses shallow cache for everyday scripts.Furniture Fit:Peninsula depth 24–30", knee space 12" min; keep clearance ≥42" to avoid API rate limits on movement.Verdict:For power users who meal-prep and host occasionally; it stays adaptive as gadgets proliferate without visual bloat.save pinOpen in 3D Planner Processing... Final TakeawayThe 9 x 12 kitchen floor plan is a compact operating system where intention beats square footage. Variants like a galley or an L-shaped arrangement prove that future-ready cooking depends on flow discipline, cache clarity, and calibrated sightlines. In my work, these small interfaces steadily reshape how families eat, talk, and share energy; and in my experience, the smartest rooms evolve by design, not by size.Convert Now – Free & InstantPlease check with customer service before testing new feature.Free floor plannerEasily turn your PDF floor plans into 3D with AI-generated home layouts.Convert Now – Free & Instant