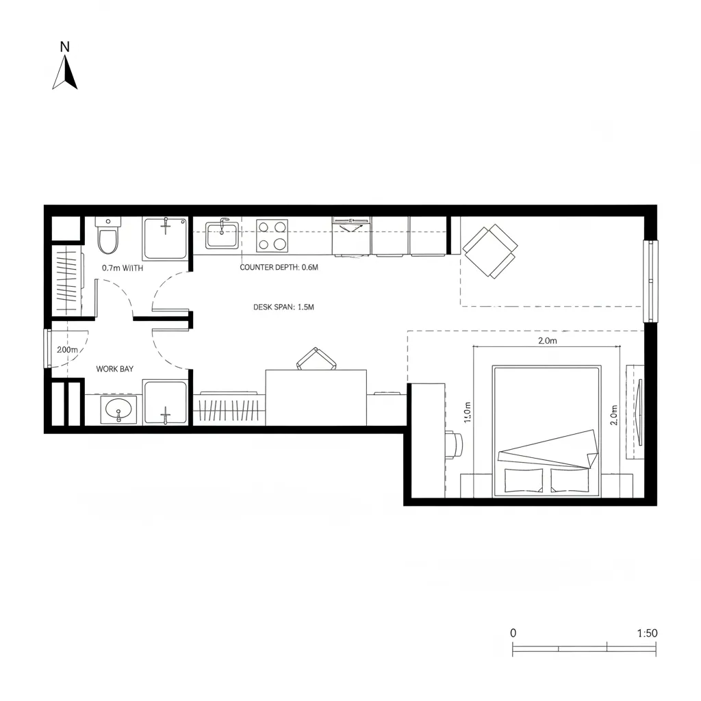
Autocad 2D Simple Floor Plan Exercises: Training your eye and hand for spatial interfaces through minimal 2D sequencingNorth Node StudioApr 25, 2026Table of ContentsStudio Ribbon LayoutOne-Bed Loop GridTwo-Bed Split CoreFinal TakeawayFree floor plannerEasily turn your PDF floor plans into 3D with AI-generated home layouts.Convert Now – Free & InstantCoohom official:Floor Plan Drawings BasicsFuture lifestyles demand quicker spatial decisions while current homes struggle with rigid layouts and storage drag; the training ground is minimalist 2D plans we can iterate fast. According to NAHB, smaller footprints are stabilizing while multi-function rooms rise, which tells me autocad 2d simple floor plan exercises are the new practice arena. The future is pressing in, and I’m already sketching its contours with a spatial reasoning toolkit.Studio Ribbon LayoutDesign Logic: A single-loaded ribbon organizes kitchen–work–sleep so future routines compile cleanly without cross-talk.Flow: Entry to prep, then to desk, then to bed; a straightforward sequence that reads like a linear function.Sightlines: From entry, depth reveals kitchen node, then work bay, with sleep zone veiled by a half-height divider—UI layers stepping down.Storage: Continuous wall rail with 16–18-inch deep modules acts as cache; overflow lives in toe-kick and headboard niches.Furniture Fit: 24-inch counters, 60-inch desk span, 54-inch bed clearance—APIs tuned to human bandwidth.Verdict: This keeps micro living stable for five years, evolving from solo-focus to hybrid work without visual noise.save pinOpen in 3D Planner Processing... One-Bed Loop GridDesign Logic: A compact loop around bath-core and galley creates redundant paths that feel generous in small footprints.Flow: Entry → living node → kitchen rail → bedroom → bath → back to entry; a resilient circuit minimizing friction.Sightlines: Sight anchors at window wall; partial-height storage frames foreground info, leaving deep stack to the glass for calm.Storage: Grid of 30-inch bays caches seasonal items; hall niche becomes quick-access buffer for daily packets.Furniture Fit: 84-inch sofa, 30-inch dining drop-leaf, queen bed with 30-inch lateral clearance—precise endpoints prevent jitter.Verdict: The loop grid supports co-living rhythms, absorbing guests and work calls while staying legible under pressure.save pinOpen in 3D Planner Processing... Two-Bed Split CoreDesign Logic: Split bedrooms flank a wet-core, future-proofing privacy as remote work and staggered schedules intensify.Flow: Shared entry branches to living, then forks to each sleep module; decision tree keeps collisions minimal.Sightlines: Living aligns to the longest window; bedroom doors offset to avoid direct eye conflicts—hierarchy by occlusion.Storage: Dual 24-inch closets plus hall pantry cache; over-door transoms become archival memory for rarely used gear.Furniture Fit: 36-inch dining circle, two 48-inch desks, beds staged with 36-inch egress—human APIs safeguarded.Verdict: This split-core anticipates five years of hybrid living, balancing independence with a shared social kernel.save pinOpen in 3D Planner Processing... Final TakeawayAutocad 2D simple floor plan exercises are more than drafting—they’re rehearsal for interfaces we’ll inhabit. With plan variations, long-tail routines like remote work and micro-hosting find structure in measured flow, sightlines, and cache logic. In my experience, the smartest homes of the future won’t be larger—only more intentional, and what I keep seeing in my projects is that precise dimensions quietly rewrite daily behavior.Convert Now – Free & InstantPlease check with customer service before testing new feature.Free floor plannerEasily turn your PDF floor plans into 3D with AI-generated home layouts.Convert Now – Free & Instant