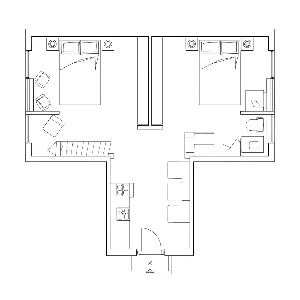
Common Design Mistakes in 660 Sq Ft 2 Bedroom House Plans and How to Fix Them: Smart layout fixes that make very small two bedroom homes feel larger, more functional, and easier to live inDaniel HarrisApr 16, 2026Table of ContentsDirect AnswerQuick TakeawaysIntroductionWhy Small House Layout Mistakes MatterPoor Bedroom Placement in Compact HomesKitchen and Living Room Space ConflictsLack of Storage in 660 Sq Ft DesignsInefficient Bathroom PlacementAnswer BoxSimple Layout Fixes for Better Space FlowFinal SummaryFAQFree floor plannerEasily turn your PDF floor plans into 3D with AI-generated home layouts.Convert Now – Free & InstantDirect AnswerThe most common mistakes in 660 sq ft 2 bedroom house plans come from poor zoning, oversized circulation areas, and misplaced bathrooms or kitchens. In compact homes, even small layout decisions can waste valuable square footage. Fixing these issues usually involves improving room placement, reducing hallway space, and designing multifunctional storage.Quick TakeawaysIn small homes, layout mistakes waste space faster than furniture or decor choices.Bedrooms placed beside the living room often reduce privacy and increase noise.Open kitchens must be carefully sized or they overpower the living area.Most 660 sq ft homes lose space due to unnecessary hallways.Strategic storage planning can recover 8–12% of usable space.IntroductionDesigning a functional 660 sq ft 2 bedroom house plan sounds simple until you actually start mapping the layout. After working on dozens of compact residential projects over the past decade, I can say the biggest problems rarely come from the size of the home. They come from the layout decisions.Small homes amplify mistakes. A hallway that wastes four feet in a 3,000 sq ft home is annoying. In a 660 sq ft home, it can erase an entire closet or workspace.Many homeowners start with inspiration photos, but what really determines success is the floor plan structure. If you're trying to visualize how efficient small layouts actually work, this guide showing realistic small home layout visualization exampleshelps explain how professionals test space flow before construction.In this article I'll break down the most common layout mistakes I see in compact two bedroom homes, why they happen, and practical ways to fix them without increasing the overall footprint.save pinWhy Small House Layout Mistakes MatterKey Insight: In compact homes, layout efficiency matters more than total square footage.When homes shrink below 700 square feet, spatial efficiency becomes the dominant design factor. A poorly arranged 660 sq ft home can feel tighter than a well-designed 500 sq ft apartment.The main reason is circulation space. Hallways, door swings, and awkward corners consume usable area.In many small house plans I review, up to 15% of the total area is lost to unnecessary circulation.Common layout inefficiencies include:Hallways longer than 6 feetBedroom doors opening into narrow corridorsKitchen islands that restrict movementBathrooms located at the end of long corridorsIndustry guidelines from residential planning organizations generally recommend circulation space stay under 10% in compact homes. Exceed that, and the home starts feeling cramped despite adequate square footage.Poor Bedroom Placement in Compact HomesKey Insight: Bedroom placement determines privacy, noise control, and usable living space in small houses.One mistake I repeatedly see in 660 sq ft layouts is bedrooms placed directly beside the living room with thin partition walls. It seems efficient on paper, but it often creates noise problems.In compact homes, bedrooms should be buffered from social areas whenever possible.Better placement strategies include:Position bedrooms on opposite sides of the homeUse a bathroom or closet wall as a sound bufferPlace smaller bedrooms toward quieter exterior wallsAvoid bedroom doors opening directly into the living roomA layout approach I frequently recommend is a "split bedroom" configuration. Even in 660 sq ft homes, separating bedrooms with a shared bathroom dramatically improves privacy.save pinKitchen and Living Room Space ConflictsKey Insight: Oversized kitchens are one of the most common small 2 bedroom house design mistakes.Open kitchens are popular, but in compact homes they can quietly dominate the floor plan.I've seen 660 sq ft houses where the kitchen consumes nearly 40% of the shared living area. The result is a cramped sofa zone and awkward furniture layouts.Better proportions typically follow this guideline:Kitchen footprint: 25–30% of shared spaceLiving area: 50–60%Circulation: under 15%Design improvements that work well:Use single-wall kitchens instead of L-shaped layoutsReplace islands with narrow peninsulasUse compact 24-inch appliancesCombine dining with kitchen countersTools that allow you to experiment with layouts before construction can prevent these issues. Many planners test multiple configurations using interactive tools that simulate furniture placement and traffic flow, like this guide to planning efficient furniture placement in small homes.Lack of Storage in 660 Sq Ft DesignsKey Insight: Storage failures are rarely about quantity but about placement.Most small house floor plans technically include storage, but it's often located in the wrong places.Typical compact home storage mistakes include:No entry storage or coat closetBedrooms without built-in wardrobesKitchen cabinets that stop below ceiling heightUnused space above bathroom doorsSmart storage solutions designers frequently use:Floor-to-ceiling kitchen cabinetryStorage benches near entrancesBuilt-in wardrobes replacing freestanding closetsOver-door storage shelvesBed platforms with drawersIn several of my recent compact home projects, integrating built-ins increased functional storage by nearly 30% without adding any square footage.save pinInefficient Bathroom PlacementKey Insight: The bathroom location often determines the entire plumbing efficiency of a small house.A common 660 sq ft house layout problem is placing the bathroom far from the kitchen or exterior plumbing walls.This creates two issues:Long plumbing runs that increase construction costAwkward circulation paths inside the houseBetter bathroom placement strategies include:Stack plumbing walls with the kitchenPlace the bathroom near the center of the planAllow access without crossing private bedroomsUse sliding doors to reduce clearance spaceBuilders often recommend keeping plumbing fixtures within a 10–12 foot range to simplify installation and maintenance.Answer BoxThe best 660 sq ft 2 bedroom house plans minimize hallway space, separate bedrooms for privacy, balance kitchen size with living space, and place bathrooms near plumbing walls. Most small home layout problems come from inefficient zoning rather than lack of space.Simple Layout Fixes for Better Space FlowKey Insight: Small structural adjustments often solve major compact home planning errors.When homeowners ask how to fix small house layout issues, the solution rarely requires major redesign. Strategic adjustments usually work.Practical improvements include:Replace traditional doors with pocket or sliding doorsMerge hallway space into living areasUse partial walls instead of full partitionsAlign furniture zones with natural circulation pathsIf you're experimenting with layout improvements, it helps to study real compact designs first. This collection of practical small home floor plan examples and layouts shows how professionals structure rooms in limited footprints.Final SummaryMost small home problems come from inefficient layout planning.Bedroom placement strongly affects privacy and noise.Kitchens that are too large reduce living room usability.Strategic built-in storage can dramatically increase usable space.Bathroom location affects both plumbing cost and floor plan flow.FAQWhat is the biggest mistake in 660 sq ft house plans?Oversized kitchens and unnecessary hallways are the most common layout problems. They waste usable space and make small homes feel cramped.Can a 660 sq ft house comfortably fit two bedrooms?Yes. With efficient zoning and minimal hallway space, a 660 sq ft 2 bedroom house plan can comfortably accommodate two small bedrooms and shared living space.How do you make a small two bedroom house feel bigger?Use open layouts, built-in storage, fewer hallways, and larger windows. Multi-functional furniture also helps maximize usable floor space.Should small homes use open floor plans?Usually yes, but the kitchen must remain compact. Oversized open kitchens can overpower living areas in small homes.What bedroom size works best in a 660 sq ft house?Bedrooms between 80–100 square feet typically balance comfort with overall space efficiency.How much space should be used for circulation?In compact homes, circulation space should stay under 10% of the total floor area.Where should the bathroom be placed in a small house?Ideally near the center of the home and close to the kitchen plumbing wall to simplify construction and improve accessibility.What are common mistakes in 2 bedroom house plans?Common mistakes in 2 bedroom house plans include poor bedroom privacy, oversized kitchens, missing storage, and inefficient bathroom placement.Convert Now – Free & InstantPlease check with customer service before testing new feature.Free floor plannerEasily turn your PDF floor plans into 3D with AI-generated home layouts.Convert Now – Free & Instant