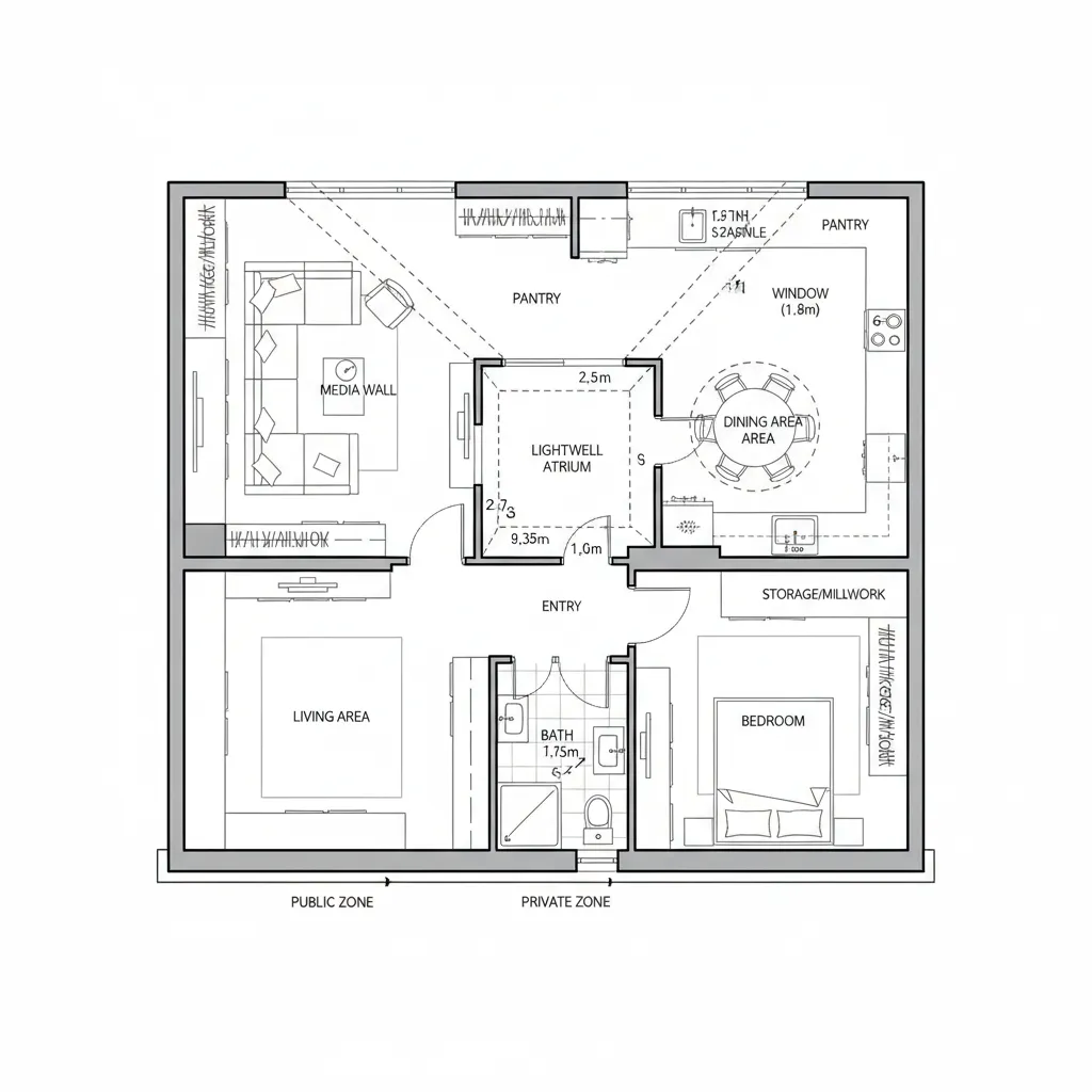
Downtown LA Apartment Floor Plans: Interface-thinking for urban homes where bandwidth, sightlines, and flow shape tomorrow’s routinesField Notes of a Future-Forward PlannerApr 25, 2026Table of ContentsLinear Rail StudioCourtyard Core One-BedSplit-Edge Two-Bed Flex## Final TakeawayFree floor plannerEasily turn your PDF floor plans into 3D with AI-generated home layouts.Convert Now – Free & InstantFuture living is compressing into tighter urban cores while current residents wrestle with noise, storage debt, and fragmented routines. I track how downtown LA apartment floor plans quietly encode behavior—future already pressing in, and I’ve seen the signals. Industry data shows multifamily demand remains strong even as unit sizes trim (NAHB and Zillow trendlines converge on efficient footprints), making downtown LA apartment floor plans the testing ground for the next decade. spatial reasoning toolkitLinear Rail StudioDesign Logic: A single loaded wall acts like a code stack—kitchen, storage, and utilities compiled in sequence, freeing the opposite side for light and living.Flow: Entry → galley → lounge → sleep bay, a deterministic path that reduces cognitive drag and nighttime collisions.Sightlines: Long axial view to the window; secondary nodes framed by partial screens that read like UI breadcrumbs.Storage: Tall pantry, overhead rails, and under-bed cache, organized by frequency-of-use tiers—hot, warm, cold data.Furniture Fit: 72-inch sofa, drop-leaf table, 30-inch clearance lanes—APIs that let guests and groceries coexist.Verdict: Five years out, this stack resists lifestyle entropy; micro-upgrades slot in without rewriting the whole program.save pinOpen in 3D Planner Processing... Courtyard Core One-BedDesign Logic: A central shared atrium or lightwell becomes the processor, distributing daylight and social bandwidth to peripheral rooms.Flow: Entry node forks to kitchen and living; loop closes at bedroom, letting routines iterate without backtracking.Sightlines: Layered frames: kitchen to living to green core, a hierarchy that calms the urban signal noise.Storage: Perimeter millwork as ring buffer, deep wardrobes, and bench drawers—capacity without visual weight.Furniture Fit: 36-inch dining round, modular media wall, queen bed with 24-inch side lanes—precise permissions for daily scripts.Verdict: The core makes small gatherings feel expansive; in future heatwaves, the passive stack buys you comfort without gadgets.save pinOpen in 3D Planner Processing... Split-Edge Two-Bed FlexDesign Logic: Bedrooms anchor opposite edges like mirrored repositories; a central living kernel negotiates work-lounge modes.Flow: Dual entries to private rooms; public zone compiles cooking, meeting, and downtime without race conditions.Sightlines: Diagonal views stitch window to window, creating a visual bus that moves data (light, activity) efficiently.Storage: Two independent caches—household and work—so tax files don’t collide with yoga mats; linen tower as checkpoint.Furniture Fit: 84-inch sectional, island on casters, adjustable desks with 28–30-inch heights—future API for hybrid weeks.Verdict: Over five years, the split-edge plan absorbs roommates, newborns, or studio gear with minimal schema migration.save pinOpen in 3D Planner Processing... ## Final TakeawayDowntown LA apartment floor plans are becoming interfaces—less about square footage, more about orchestrated flow and readable sightlines. Variants like urban studios and flexible two-bed units show how storage works as a cache and furniture as the API of daily life. In my experience, the smartest homes of the future won’t be larger—only more intentional, and what I keep seeing in my projects is that small spatial decisions quietly rewrite the way people live.Convert Now – Free & InstantPlease check with customer service before testing new feature.Free floor plannerEasily turn your PDF floor plans into 3D with AI-generated home layouts.Convert Now – Free & Instant