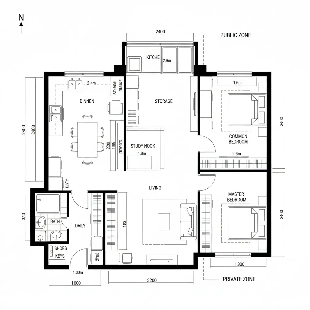
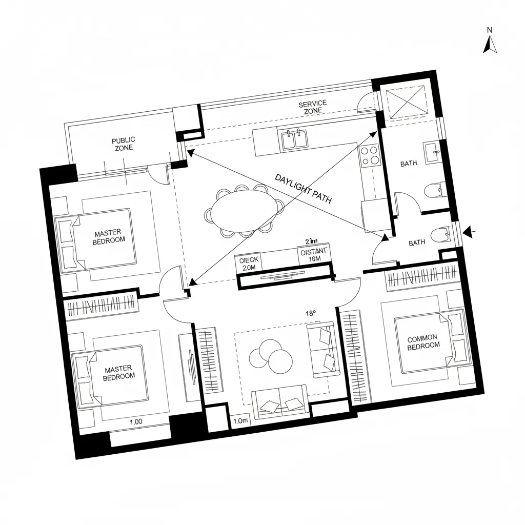
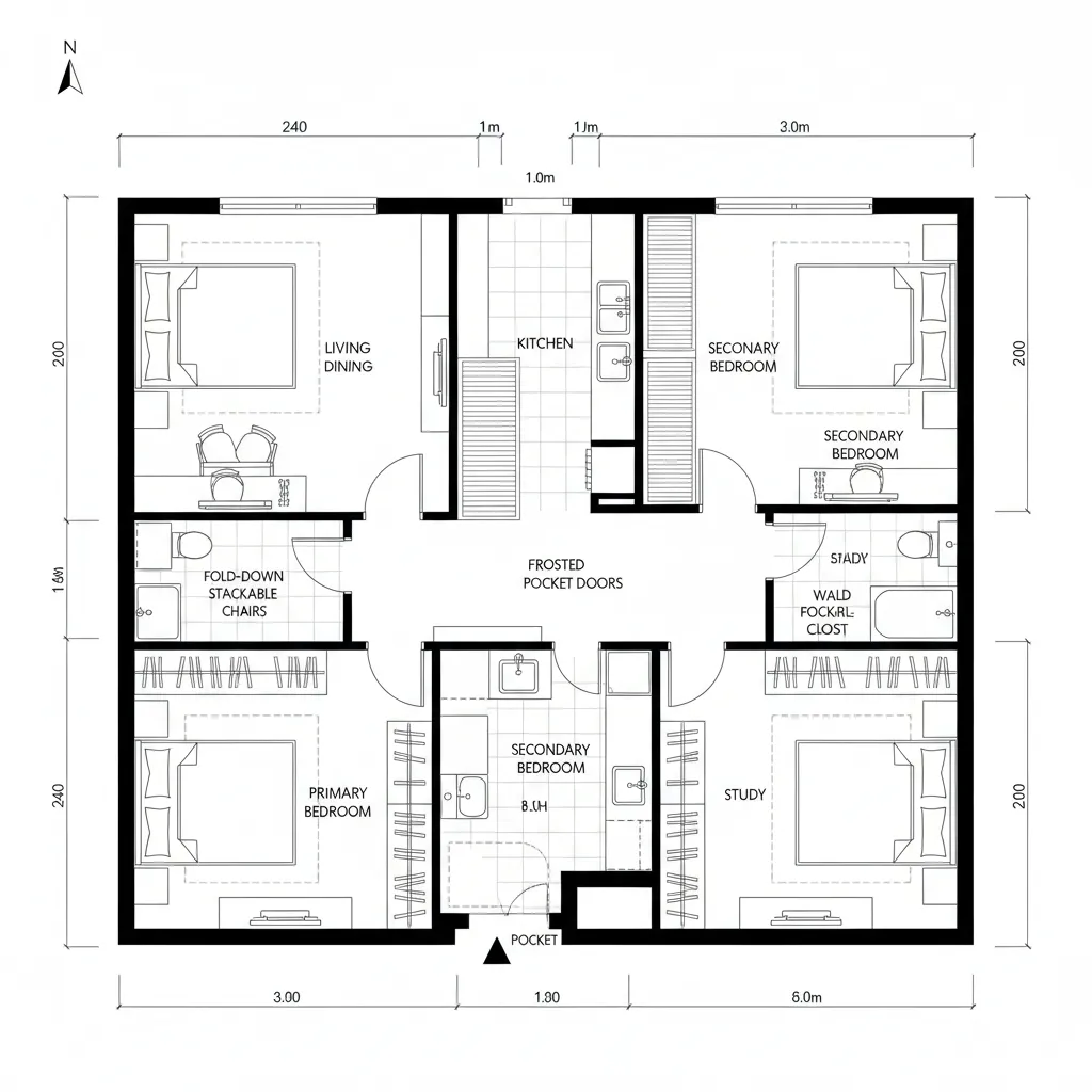
HDB 3-Room, Future-Ready Interface: Rewriting a compact Singapore layout as a living OS for tomorrowKite LumenDec 10, 2025Table of ContentsSplit-Core Gallery SpineDiagonal Light CascadePocket Room MorphologyFinal TakeawayTable of ContentsSplit-Core Gallery SpineDiagonal Light CascadePocket Room MorphologyFinal TakeawayFree floor plannerEasily turn your PDF floor plans into 3D with AI-generated home layouts.Convert Now – Free & InstantThe future leans on compact intelligence while today’s HDB residents juggle storage scarcity, hybrid work, and multigenerational rhythms. I see the HDB 3 room floor plan as early code for a calmer, denser city, validated by NAHB data showing smaller homes trending as households seek efficiency over footage. The interface must compile serenity, bandwidth, and shared autonomy—now, not later. spatial reasoning toolkit sits behind my decisions; tomorrow’s routines already ping the layout.Split-Core Gallery SpineDesign Logic: A central gallery links living, dining, and study like a motherboard trace, keeping private rooms sandboxed yet near. Future hybrid work and elder care prefer soft partitions over hard borders.Flow: Entry → shoes/keys cache → linear kitchen → dining node → study nook → living bay → bedrooms; no backtracking, low latency.Sightlines: From door, a framed axis to windows; semi-opaque study screens layer info like UI tabs—privacy without losing signal.Storage: Full-height wall system along spine with sliding modules; seasonal items deep, daily use shallow—cache tiers.Furniture Fit: 1400–1600 mm dining, 1800 mm sofa, 1200 mm study bench; every API call sized to pass clearances.Verdict: A resilient backbone that can toggle work, meals, and care—stable for five years of shifting schedules.save pinDiagonal Light CascadeDesign Logic: Rotate dining and sofa 15–20° to pull daylight diagonally, expanding perceived width in a narrow shell; future wellness needs circadian clarity.Flow: Entry → angled console → kitchen pass → dining triangle → lounge arc → balcony edge → bedrooms; movement curves like a smooth algorithm.Sightlines: Angled edges create tiered depth: glancing views to green and sky act as UI headers for calm focus.Storage: Corner-wrap banquette with lift-up bays; toe-kick drawers as micro-caches keep surfaces unburdened.Furniture Fit: 900 mm circulation lanes maintained at pinch points; nesting tables act as adaptive APIs for guests.Verdict: Light becomes the operating system; the home feels one size larger without adding bytes.save pinPocket Room MorphologyDesign Logic: Secondary bedroom and study merge via pocket doors; rooms become functions that compile on demand—sleep, zoom, play.Flow: Hall → pocket threshold → expand to studio or compress to two cells; routines switch like modes on a device.Sightlines: When open, a long cross-view stabilizes; when closed, frosted bands preserve luminance while muting noise.Storage: Ceiling track racks, headboard niches, and hallway pantry—distributed cache lowers retrieval time.Furniture Fit: Wall bed at 155–165 kg rating, 600 mm deep; fold desk 1200×600 mm; stackable chairs as burst capacity.Verdict: A morphology that absorbs life’s spikes—guests, projects, care—without fragmenting daily flow.save pinFinal TakeawayThe HDB 3 room floor plan is not a constraint but a protocol for intentional living. With compact zoning, elastic partitions, and cache-smart storage, a small apartment layout becomes a high-bandwidth interface. The next decade favors precision over size, and the best 3-room configurations will feel spacious because they’re fluent. In my experience, the smartest homes of the future won’t be larger—only more intentional.Convert Now – Free & InstantPlease check with customer service before testing new feature.Free floor plannerEasily turn your PDF floor plans into 3D with AI-generated home layouts.Convert Now – Free & Instant