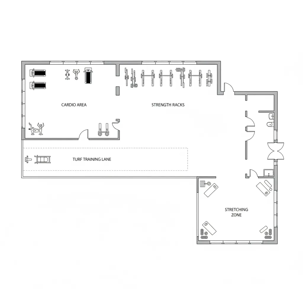
How to Optimize Gym Floor Layout for Safety, Performance, and Aesthetics: A practical guide to organizing gym flooring zones for safer movement, efficient training flow, and a visually balanced fitness space.Daniel HarrisApr 25, 2026Table of ContentsDirect AnswerQuick TakeawaysIntroductionWhy Gym Floor Layout Matters for Training PerformanceHow to Create Workout Zones with Color and Flooring TypesWhat Traffic Flow and Equipment Placement Strategies Work Best?How to Optimize Shock Absorption and Impact ProtectionCombining Design Aesthetics with Safety StandardsAnswer BoxCommon Layout Mistakes in Gym Flooring DesignExample Layouts for Small and Large GymsFinal SummaryFAQFree floor plannerEasily turn your PDF floor plans into 3D with AI-generated home layouts.Convert Now – Free & InstantDirect AnswerOptimizing a gym floor layout means dividing the space into functional zones—such as strength, cardio, mobility, and recovery—while maintaining clear traffic flow and using flooring materials that match the impact level of each activity. A well‑planned layout improves safety, prevents equipment congestion, and allows members to move naturally through workouts.In most gyms, the best layouts combine rubber flooring for heavy lifting, turf for functional training, softer mats for stretching, and visually defined zones that guide movement.Quick TakeawaysSeparate gym zones by training intensity to reduce injury risk and equipment conflicts.Use flooring materials that match activity impact levels.Design clear traffic paths so members never cross lifting or sprint zones.Color and texture changes help users instinctively understand where activities belong.A well‑planned gym floor layout increases usable capacity without expanding the space.IntroductionAfter working on dozens of fitness studio and commercial gym projects, one pattern shows up again and again: equipment usually gets the attention, but the gym floor layout is what actually determines whether the space works.I’ve walked into gyms where expensive machines were packed together so tightly that members couldn’t move safely between them. I’ve also seen smaller gyms feel incredibly spacious simply because the floor layout was organized intelligently.Designing a smart gym floor layout is about more than aesthetics. It directly affects safety, training efficiency, and member experience. A thoughtful floor plan helps people flow naturally from warm‑ups to strength work to recovery without constant interruptions.If you want to visualize how professional designers structure training zones, exploring examples of interactive gym space layouts that show equipment flow and training zonescan make the planning process much clearer.In this guide, I’ll break down the real design strategies we use when organizing gym flooring—what works, what commonly fails, and how to balance performance, safety, and visual design.save pinWhy Gym Floor Layout Matters for Training PerformanceKey Insight: A well‑structured gym floor layout improves workout efficiency by reducing congestion and aligning training zones with natural movement patterns.When members move through a gym, they typically follow a predictable sequence: warm‑up, primary training, accessory work, and recovery. If the layout interrupts that flow, people spend more time navigating the space than actually training.In one commercial gym redesign I worked on, we simply moved the functional training turf closer to the strength racks and relocated stretching mats near the exit corridor. That small change reduced cross‑traffic dramatically.How layout affects performance:Shorter transitions between workout phasesReduced waiting around crowded equipmentLower risk of collisions between membersClear visual organization of training zonesResearch published by the International Health, Racquet & Sportsclub Association highlights that member satisfaction strongly correlates with perceived space and flow—often more than with equipment quantity.How to Create Workout Zones with Color and Flooring TypesKey Insight: Flooring material and color variations can visually organize training zones without building physical barriers.One mistake I frequently see is using a single flooring material across the entire gym. It may look clean at first, but it removes visual cues that help members understand how to use the space.Professional gym design usually relies on a mix of flooring materials:Rubber flooring for strength and free‑weight zonesArtificial turf for sled pushes and functional trainingFoam or mats for mobility and stretchingVinyl or rubber tiles for cardio equipment areasColor is equally powerful. For example:Darker tones for heavy lifting zonesGreen turf for athletic training areasNeutral tones for recovery and stretchingThis approach creates intuitive navigation. Members instinctively understand where certain exercises belong.save pinWhat Traffic Flow and Equipment Placement Strategies Work Best?Key Insight: Gym layouts should prioritize movement corridors before placing equipment.The most overlooked part of gym design is traffic flow. Designers often start by placing machines, but experienced planners begin with circulation paths.A simple rule I follow on projects: imagine the gym at peak capacity. If people can still move safely between zones, the layout works.Core traffic design principles:Main walkways should be at least 4–6 feet wideStrength zones should not intersect with sprint or sled pathsEntry areas should transition into warm‑up zonesCardio areas should face outward or toward windowsIf you're planning a full facility layout, studying visual planning examples that demonstrate clear circulation paths can help you map traffic flow before committing to equipment placement.How to Optimize Shock Absorption and Impact ProtectionKey Insight: Matching flooring thickness to activity intensity is one of the most important safety decisions in gym design.Different workouts generate very different levels of impact. Heavy Olympic lifts can produce forces several times body weight, while stretching or yoga creates minimal impact.Recommended flooring thickness by activity:Weightlifting platforms: 20–40 mm rubberFree‑weight zones: 15–20 mm rubberFunctional training: turf with shock padStretching zones: foam mats or cushioned vinylUsing the wrong flooring doesn’t just increase injury risk—it also shortens equipment lifespan and increases maintenance costs.The American College of Sports Medicine emphasizes proper flooring as a major component of facility safety standards.save pinCombining Design Aesthetics with Safety StandardsKey Insight: The best gym designs make safety features visually appealing rather than purely functional.Many gym owners assume safety requirements limit creativity. In reality, smart visual design can reinforce safety.Examples include:Color borders around lifting platformsContrasting walkways between zonesDirectional turf strips guiding sprint pathsAccent lighting that highlights workout zonesOne trend gaining traction is designing the gym floor almost like a sports court—where colors, lines, and textures subtly organize movement.Answer BoxThe most effective gym floor layouts separate training zones by activity intensity, use specialized flooring materials, and maintain wide circulation paths. When layout design aligns with natural workout flow, gyms become safer, easier to navigate, and more efficient without increasing square footage.Common Layout Mistakes in Gym Flooring DesignKey Insight: The biggest gym layout problems usually come from ignoring movement flow rather than choosing the wrong equipment.After reviewing many underperforming gym layouts, I see the same mistakes repeatedly.Common gym floor planning errors:Placing cardio machines directly in main walkwaysMixing stretching zones inside strength areasToo little space between squat racksNo dedicated functional training areaUsing identical flooring across all zonesThese issues create subtle friction that adds up—members wait longer, workouts feel chaotic, and the space appears smaller than it actually is.save pinExample Layouts for Small and Large GymsKey Insight: Gym floor layouts should scale by prioritizing zones, not equipment quantity.Small gyms succeed when each zone serves multiple purposes, while larger gyms benefit from clearly separated training areas.Example small gym layout (1,500–3,000 sq ft):Entrance mobility and warm‑up areaCentral strength rack zoneSide turf strip for functional trainingCardio machines along perimeter wallsExample large gym layout (10,000+ sq ft):Dedicated powerlifting platformsLarge turf field for conditioningSeparate group training studioExpanded recovery and stretching zonesIf you're experimenting with layouts before committing to construction, many designers test concepts using visual planning tools that simulate gym zoning and equipment spacing.Final SummaryA structured gym floor layout improves safety and workout efficiency.Different training zones require different flooring materials.Clear circulation paths prevent congestion and accidents.Color and texture variations help users navigate spaces naturally.Smart layouts increase usable capacity without expanding space.FAQWhat is the best gym floor layout for safety?The safest gym floor layout separates strength, cardio, and functional training zones while maintaining wide walkways and impact‑appropriate flooring materials.How do you organize gym flooring zones?Group equipment by activity type—strength, cardio, mobility, and conditioning—and use different flooring materials to visually and functionally define each zone.How much space should be between gym equipment?Most guidelines recommend at least 3–4 feet between machines and 6 feet around free‑weight areas for safe movement.What flooring is best for weightlifting areas?High‑density rubber flooring 15–40 mm thick is ideal for absorbing heavy impacts and protecting subfloors.Can gym floor layout improve workout performance?Yes. A well‑designed gym floor layout reduces transition time between exercises and minimizes congestion during peak hours.Should cardio machines face a certain direction?Cardio equipment typically faces windows, screens, or open space to improve user engagement and prevent visual crowding.What is the biggest mistake in gym floor planning?Ignoring traffic flow. Without clear circulation paths, even large gyms can feel cramped and chaotic.How do small gyms maximize floor space?Small gyms benefit from multifunctional zones, wall‑aligned equipment, and compact functional training areas.Convert Now – Free & InstantPlease check with customer service before testing new feature.Free floor plannerEasily turn your PDF floor plans into 3D with AI-generated home layouts.Convert Now – Free & Instant