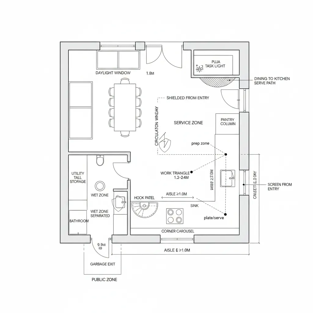
Vastu-Compliant 3-Bedroom Plan: Aligning cosmic intent with American residential pragmatismAtlas KlineJan 21, 2026Table of ContentsEast-Facing Entry with North Living SpineMaster Suite Southwest, Children Northeast, Guest NorthwestKitchen Southeast with Utility South, Puja Northeast NodeFinal TakeawayFree floor plannerEasily turn your PDF floor plans into 3D with AI-generated home layouts.Convert Now – Free & InstantThe future lifestyle is pressurized by hybrid work, elder-friendly homes, and ritual-led calm; current homes still glitch at daylight mapping and privacy routing. AIA reports sustained demand for flex rooms even as footprints stabilize, and I see that as a signal to compile ritual, rest, and work into one spatial language—here, a vastu compliant 3 bedroom plan. The future is arriving fast, and I’ve already sketched its early syntax: spatial reasoning toolkit.East-Facing Entry with North Living SpineDesign Logic:Entry at east, living aligned north-east to harvest morning charge; kitchen to south-east, guarding the fire node. This layout obeys vastu polarity while addressing future circadian health and social bandwidth.Flow:Sequence: threshold → foyer buffer → living spine → dining node → kitchen → service. Bedrooms branch as subroutines, ensuring minimal cross-traffic and predictable packets.Sightlines:From entry, a framed diagonal to the living window, not the kitchen; layered transparency keeps private rooms off the primary UI.Storage:Foyer tall cabinet + dining sideboard + kitchen pantry wall; like cache tiers, quick-grab in front, deep archive behind.Furniture Fit:Sofa 96" floating, 42" dining round, 30" circulation corridors; each piece respects the API of sunlight and movement.Verdict:In five years, this spine will host remote work by day and ritual warmth by dawn, without leaking noise into sleep zones.save pinOpen in 3D Planner Processing... Master Suite Southwest, Children Northeast, Guest NorthwestDesign Logic:Primary bedroom southwest for stability; children toward northeast for learning light; guest room northwest as a controlled gateway. Vastu intent meets developmental rhythms.Flow:Master accessed via a short privacy corridor; kids’ zone loops near study niche; guest room near entry for semi-public handoff.Sightlines:Doors staggered so no bed is directly in a door’s line; windows prioritize east/north, creating calm UI layers for waking.Storage:Wall-to-wall master closet, kids’ modular cubbies, guest wardrobe with linen stack; caches placed on cold walls to preserve thermal logic.Furniture Fit:Master king 76" with 30" clear on flanks; kids’ twins/queen convertible; integrated desk 60" under north window for glare control.Verdict:This zoning stabilizes the household kernel—rest computes reliably while daylight compiles focus for young users.save pinOpen in 3D Planner Processing... Kitchen Southeast with Utility South, Puja Northeast NodeDesign Logic:Fire in the southeast, water in the north; puja reserved to the northeast, a small but high-priority node. Health tech and tradition negotiate without conflict.Flow:L-shaped cook path: prep (north) → cook (SE hob) → plate (east) → serve (north dining). Utility and garbage exit south to keep the main loop clean.Sightlines:Puja alcove visible from dining yet not from entry; kitchen shielded from direct view, reducing cognitive noise.Storage:Pantry column + corner carousel + utility tall; dry goods near east wall, wet storage north—like separating hot and cold threads.Furniture Fit:Counter 25" deep, 36" high; 42" aisle; compact 30" hob; puja niche 24" wide with dedicated task light at 3000K.Verdict:The rituals breathe, the cook performs, and airflow obeys physics and belief—future-proof without superstition’s weight.save pinOpen in 3D Planner Processing... Final TakeawayA vastu compliant 3 bedroom plan is less about dogma and more about compiling light, heat, and ritual into a stable interface. With variants like Vastu-friendly 3BHK layouts and east-facing three-bedroom designs, we sync biology with daily code. The next decade will reward plans that allocate attention like bandwidth, not just square feet; in my experience, the smartest homes stabilize energy first, then everything else follows.Convert Now – Free & InstantPlease check with customer service before testing new feature.Free floor plannerEasily turn your PDF floor plans into 3D with AI-generated home layouts.Convert Now – Free & Instant