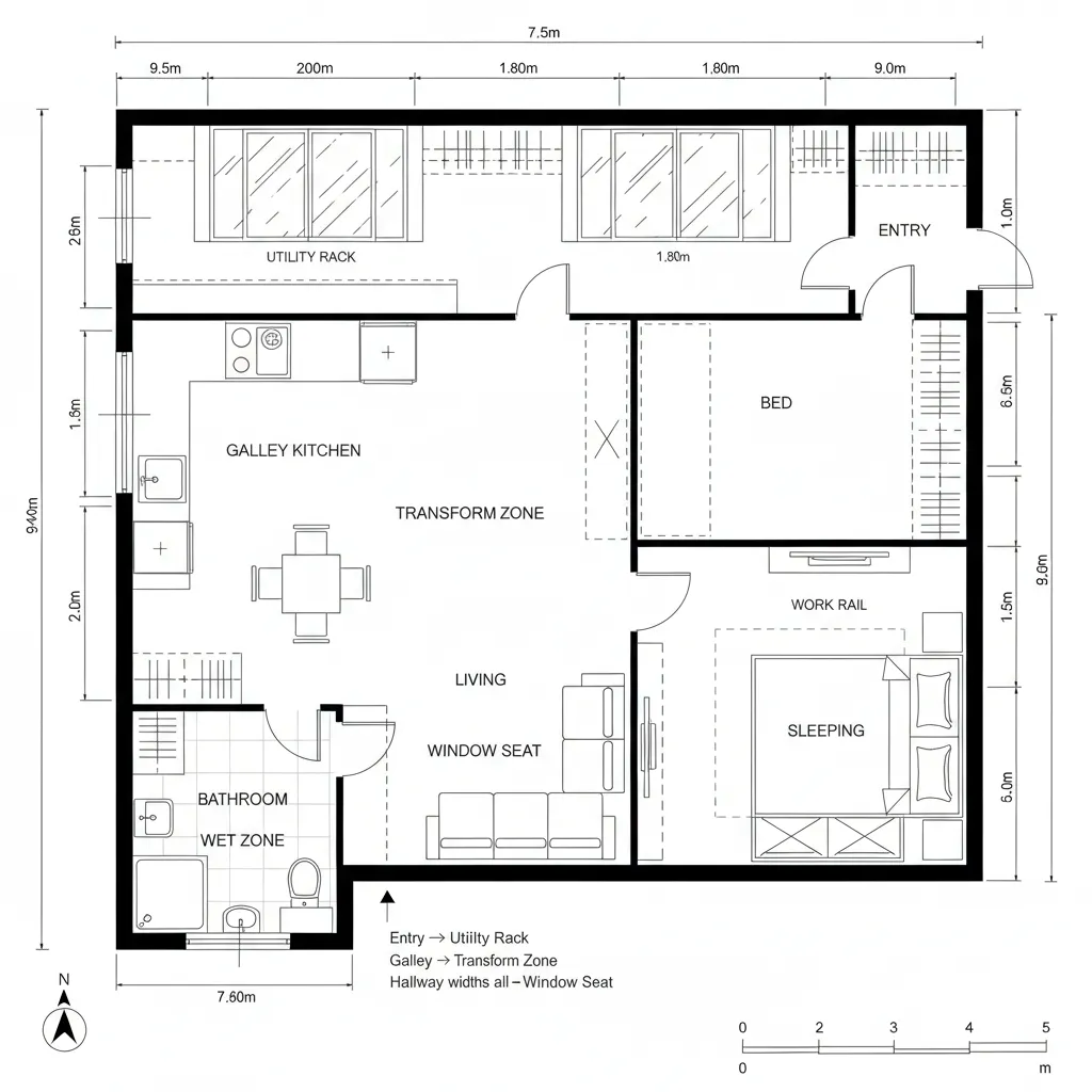
Yorktowne Farms Apartments: Floor Plans as Living Interfaces: Reading tomorrow’s habits through today’s Yorktowne Farms apartments floor plansAtlas MorrowJan 21, 2026Table of ContentsSplit-Edge One-Bed Corridor as Control BusLooping Two-Bed Shared Core, Private NodesConvertible Studio Partition as SoftwareFinal TakeawayFree floor plannerEasily turn your PDF floor plans into 3D with AI-generated home layouts.Convert Now – Free & InstantThe future keeps leaning in while current renters juggle noise bleed, awkward storage, and fragmented routines. As AIA reports continued demand for flexible, wellness-forward layouts, I treat Yorktowne Farms apartments floor plans as early code for what’s next—an interface that compiles daily life. Here’s my spatial reasoning toolkit for translating this plan into livable bandwidth.Split-Edge One-Bed: Corridor as Control BusDesign Logic:Primary suite and living edge are split, giving privacy while keeping a central spine for utilities—future-proof for hybrid work and sleep hygiene. Flow:Entry → drop zone → kitchen node → living hub → balcony; bedroom branches off like an isolated thread for quiet cycles. Sightlines:From door, sight grazes window, not bed; UI tiers are foyer (low signal), kitchen (process), view (reward). Storage:Wall-length pantry + bed-wall wardrobes act as cache; overflow hidden in a bench-bay near the balcony. Furniture Fit:72–78" sofa, 36" round table, queen bed with 24" clear both sides—API constraints keep latency low. Verdict:This plan absorbs future noise—video calls by day, recovery by night—without packet loss.save pinOpen in 3D Planner Processing... Looping Two-Bed: Shared Core, Private NodesDesign Logic:Two suites flank a shared core; the kernel is kitchen-living, optimized for roommates or multigenerational rhythms. Flow:Dual entries converge to the island, then radiate to rooms; a loop path reduces collisions during peak routines. Sightlines:Island aligns with glazing; bedrooms defocus; the view carries attention like a header across the page. Storage:Opposed closets balance load; a utility wall holds vac, bikes, seasonal bins—structured like tiered memory. Furniture Fit:84" sectional max, 9–10' rug, two full/queen frames; 30" clearances keep the loop executable. Verdict:It scales from co-living to young family without rewriting the whole codebase.save pinOpen in 3D Planner Processing... Convertible Studio: Partition as SoftwareDesign Logic:One volume behaves like many via operable partitions—future asks for rooms that clock in and out. Flow:Entry → utility rack → galley → transform zone → window seat; each step is a subroutine you can re-order. Sightlines:Sliding screen keeps the bed as background process; living and window UI stay foreground for mental clarity. Storage:Ceiling-height grid, under-platform drawers, and a 24" deep “work rail” act as L1/L2 cache for daily items. Furniture Fit:60–65" sofa, drop-leaf 30"×36", full-size platform; micro-dimensions that still run big tasks. Verdict:This studio compiles wellness and work without memory leaks.save pinOpen in 3D Planner Processing... Final TakeawayYorktowne Farms apartments floor plans are less boxes and more interfaces—protocols for attention, recovery, and social bandwidth. With flexible one-bed, two-bed, and convertible studio logic, the plan behaves like software that updates itself. In my experience, the smartest apartments won’t get larger, only more intentional—and I keep designing them that way.Convert Now – Free & InstantPlease check with customer service before testing new feature.Free floor plannerEasily turn your PDF floor plans into 3D with AI-generated home layouts.Convert Now – Free & Instant